DIY Sanitärinstallation: klassische Schaltpläne und Installationsanweisungen
Möchten Sie die Wohnung ernsthaft reparieren und renovieren? Dann wird es nicht schaden herauszufinden, dass eine der grundlegendsten Phasen der Überholung von Wohngebäuden der Ersatz alter Rohrleitungen und Rohre durch neue ist. Darüber hinaus ist dies der beeindruckendste Ausgabenposten im Budget, der für diese Arbeiten bereitgestellt wird.
Die ohnehin schon beeindruckenden Kosten zu senken, ist der normale Wunsch eines jeden umsichtigen Eigentümers. Stimmen Sie zu Es ist durchaus möglich, sie zu reduzieren: Hilfe bei der Installation zum Selbermachen. Wir erklären Ihnen, wie Sie Verkabelungen herstellen, wie Sie Sanitärgeräte übertragen und anschließen, welche Werkzeuge und Materialien benötigt werden.
Sie lernen, wie Sie die Rohre im Badezimmer unabhängig voneinander wechseln und die Armaturen anschließen. Um das Reparaturproblem besser verstehen zu können, enthält der Artikel thematische Fotoanleitungen und Videoanweisungen.
Der Inhalt des Artikels:
Projektentwicklung und Zeichnung
Typische Entwürfe von Hochhäusern sind nicht für jeden geeignet, und die Eigentümer der Wohnung versuchen, die Sanitäranlagen nach ihren Wünschen neu zu gestalten. Diese Arbeiten sind sehr mühsam und zeitaufwändig. Wenn Sie jedoch die theoretische Seite des Problems gut studieren und die Anweisungen genau befolgen, können die meisten Arbeiten (wenn nicht alle) unabhängig voneinander ausgeführt werden.
Erstellen Sie detailliert Rohrleitungsschemata - Ein wichtiger Teil der Reparatur eines selbst kleinsten Badezimmers. Mit Hilfe des abgeschlossenen Projekts kann nicht einmal ein Spezialist alle Vor- und Nachteile des neuen Standorts von Sanitärarmaturen bewerten.
Mit einer vereinfachten Entwurfsoption können Sie die am besten geeignete Art der Rohrverlegung bestimmen, eine Liste der erforderlichen Materialien in der richtigen Menge erstellen und Werkzeuge aufnehmen.

Basierend auf diesen Aufzeichnungen können Sie die ungefähren Materialkosten berechnen, eine Art Kostenvoranschlag erstellen und alles, was Sie benötigen, ein- oder zweimal kaufen.
Es ist am bequemsten und einfachsten, ein Diagramm in mehreren Schritten zu erstellen. Zuerst müssen Sie einen Plan des Badezimmers mit einem Hinweis auf die Türöffnung zeichnen.
In diesem Fall müssen Sie die Größe des Raums nicht schrittweise oder mit dem Auge messen, um die Position der Armaturen ungefähr anzugeben. Dafür gibt es Roulette. Ihr Komfort bei der Verwendung eines Sanitärgeräts hängt davon ab, wie genau die Messungen durchgeführt werden.
Geben Sie als nächstes in den Zeichnungen die Position aller Armaturen unter Berücksichtigung des Maßstabs an. Es ist sehr wichtig, die Installation richtig zu arrangieren. Sie können sich hier nicht beeilen und müssen alles gut durchdenken. Alle Geräte müssen so positioniert werden, dass neben jedem genügend Platz vorhanden ist.
Der Einfachheit halber können Sie herkömmliche Bilder von Geräten aus einem Karton ausschneiden und gemäß den Zeichnungen verschieben, wobei Sie den besten Ort auswählen.
Eine detaillierte Entwicklung des Kommunikationsprojekts und dessen anschließende Umsetzung ist unter folgenden Bedingungen möglich:
Was ist besser: Serien- oder Kollektorschaltung?
Heute werden zwei häufig verwendet Schaltpläne - sequentiell und Sammler.
Ein sequentielles System (oder auch Klempner-Tee-System genannt) gilt als klassisch. Es wird in allen typischen Mehrfamilienhäusern und Privathäusern mit kleinen Badezimmern verwendet.
Das System ist sehr einfach: Von den zentralen Steigleitungen, über die der Wohnung heißes und kaltes Wasser zugeführt wird, wird es unter einem Hauptrohr verlegt, von dem aus jede Sanitärarmatur in der Wohnung mit Strom versorgt wird.

Der Aufwand für die Installation von Sanitärinstallationen für das Badezimmer mit eigenen Händen ist ebenfalls nicht sehr groß. Dort enden jedoch die Vorteile einer sequentiellen Schaltung.Der Hauptnachteil dieser Art von Verbindung besteht darin, dass alle Geräte über eine Leitung mit Strom versorgt werden. Wenn ein Gerät arbeitet, sinkt der Druck in allen anderen.
Das heißt, wenn die Waschmaschine Wasser pumpt, ist der Druck im Küchenhahn sehr schwach und umgekehrt.
Ein weiterer Nachteil ist die Abschaltmethode. Wenn eine Armatur kaputt geht, müssen Sie das Wasser in der Wohnung vollständig abstellen, um sie zu reparieren. Das Sammelsystem wird in Häusern eingesetzt, in denen das Wasserversorgungssystem stark belastet ist. In diesem Fall sind alle Installationspunkte mit dem Kollektor verbunden.

Meistens ist der Sammler aus ästhetischen Gründen in einem speziellen Schrank oder einer geschlossenen Nische versteckt. Jede Armatur ist separat über einen persönlichen Wasserhahn mit dem Kollektor verbunden. Bei dieser Verbindungsmethode ist eine große Anzahl von Rohren erforderlich, und die Installationsarbeiten nehmen viel Zeit in Anspruch.
Obwohl Sie mit dem Anschließen eines solchen Systems basteln müssen, liegt der Vorteil auf der Hand: Der Druck in allen Sanitärgeräten ist unter jeder Betriebsart der Wasserversorgung stabil.
Außerdem kann jedes Gerät bei Bedarf ausgeschaltet oder entfernt werden. Das Wasser muss nicht vollständig abgestellt werden - stellen Sie einfach den Wasserhahn am rechten Wasserhahn ab.
Badverdrahtungsgerät
Als sie selbst Rohrführung im Bad im großen Maßstab unterscheidet sich nicht, so dass Sie auf professionelle Berechnungen verzichten können, um die Durchmesser der Rohre zu bestimmen. Steigleitungen zur Wasserversorgung bestehen meist aus einem Zollrohr oder einem Rohr mit einem Durchmesser von einem Zoll und einem Viertel. Die Verkabelung erfolgt normalerweise mit Rohren mit einem Durchmesser von einem halben Zoll.
Für die Kanalisation muss für die Verkabelung ein Rohr DN 100 verwendet werden - DN 50. Es ist zu beachten, dass das Kanalrohr in horizontaler Position mit einer leichten Neigung zum Steigrohr verlegt werden muss - dies beträgt 5 mm bis 3 cm pro Meterlänge je nach Durchmesser.
Schritt 1. Auswählen einer Pipeline-Installationsmethode
Der schnellste und einfachste Weg zu legen ist offen. In diesem Fall bleiben alle Rohre in Sicht. Es ist jedoch nicht für Personen geeignet, die die Gestaltung des Badezimmers ernst nehmen. In diesem Fall müssen Sie versteckte Rohre verlegen. Bei dieser Methode wird das Rohr in einem speziell angefertigten Kanal (Tor) verlegt, der in die Wand verlegt wird.

Hinsichtlich AbwasserrohrAnschließend wird es in einen speziellen Kanal gelegt, der dann geschlossen und mit Keramikfliesen ausgekleidet wird. Natürlich werden mit einer versteckten Verlegemethode die Anforderungen an die Qualität von Rohren und deren Verbindungen stark erhöht.

Im Folgenden erfahren Sie, welche Rohre zum Verlegen innerhalb der Wände verwendet werden können und welche nicht. Stellen Sie die Geräte so auf, dass die Hauptwände nicht beschädigt werden, da dies mit den Bauvorschriften und -regeln verboten ist.
Schritt 2. Demontage alter Rohre
Mit modernen Werkzeugen ist es nicht schwierig, alte Rohre zu zerlegen. Wenn sie in den Wänden versteckt sind, müssen sie mit einem Schlag geöffnet werden. Als nächstes schneiden wir die Rohre mit einer Mühle ab.
Durch den Abbau der alten Wasserleitungen vor dem Austauschmüssen Sie die Sicherheitsvorkehrungen beachten. Zum Beispiel kann ein Schneidrad an einer Schleifmaschine vor einer unachtsamen Bewegung mit einem Werkzeug platzen und mit hoher Geschwindigkeit einen unglücklichen Meister direkt ins Gesicht fliegen.
Wenn Sie mit einem solchen Elektrowerkzeug arbeiten, benötigen Sie daher eine spezielle Brille oder ein transparentes Visier aus Plexiglas und mindestens ein einfaches, billiges Atemschutzgerät zum Schutz vor Staub.

Im Allgemeinen erfolgt der Abbau der alten Pipeline wie folgt:
- Wasserversorgung vollständig abstellen.
- Schneiden oder schrauben Sie die Wurzelhähne ab, wenn sie gewechselt werden müssen.
- Installieren Sie neue Krane an den Zweigen der Steigleitungen (in diesem Fall ist es besser, Kugelhähne zu verwenden).
- Wasserversorgung wieder aufnehmen.
- Wenn möglich, lassen Sie das Wasser ab.
- Alle Armaturen sind vom Wasserversorgungs- und Abwassersystem getrennt.
- Rohre abwickeln oder schneiden.
Wenn die alten Rohre auf den Dübeln ruhen, reicht es aus, die Dübelköpfe abzuschneiden, damit sie das Finish nicht beeinträchtigen. Vor dem Abschneiden alter Teile bei neuen, gerade installierten Kranen müssen dichte Plastiktüten aufgesetzt werden. Pakete werden fest mit Spitze oder Klebeband umwickelt.
Dies ist erforderlich, um die neuen Absperrventile vor Staub und Schmutz zu schützen, die beim Abgraben von Wänden und beim Abbau alter Geräte in Hülle und Fülle auftreten.
Schritt 3. Rohrauswahl
Metallrohr, das bis vor kurzem wo immer möglich verwendet wurde, wird heute selten verwendet. Dies erklärt sich aus den Materialmängeln: der Komplexität der Installation (die Notwendigkeit, einen professionellen Schweißer zu beauftragen), der Veranlagung zur Korrosion, der Ablagerung von Salzen und Zunder auf der Innenseite der Rohre und infolgedessen einer Verringerung des Durchsatzes.
Es sollte auch ziemlich beträchtliche Kosten für ein Metallrohr hinzufügen.

Heute für Wasserleitungen Bei der Installation von Sanitärinstallationen im Badezimmer werden hauptsächlich Polymerrohre (Kunststoffrohre) verwendet. Sie weisen keine Mängel auf, die Metallprodukten inhärent sind, und sind ihnen nur in Bezug auf Festigkeit und Schmelzpunkt unterlegen, was in diesem Fall keine wichtige Rolle spielt.
Wir listen die Pfeifen auf, beginnend mit den billigsten.
Polypropylen (PP). Sehr leichtes, korrosionsbeständiges Material. Die Oberfläche des Rohrs ist glatt, wodurch ein geringer hydraulischer Widerstand erreicht wird.
Polypropylenrohr ist in zwei Varianten erhältlich:
- PN 10 und PN 16 - sind nur für kaltes Wasser vorgesehen und für einen Druck von 10 bzw. 16 Atmosphären ausgelegt.
- PN 20, PN 25 - zur Installation des Heizsystems zur Warmwasserversorgung für einen Druck von 20 und 25 Atmosphären.
Diese Typen haben eine spezielle Verstärkung aus Aluminium oder Glasfaser, um eine Ausdehnung unter Temperatureinfluss zu verhindern. Das Hauptmerkmal des Polypropylenrohrs sind dicke Wände bzw. große Verbindungsstücke. Aber alle Teile sind ziemlich billig und sehr einfach zu installieren.

Polyethylenrohr. Es gibt verschiedene Variationen:
- HDPE (hergestellt aus Niederdruckpolyethylen);
- PEX-A, PEX-B, PEX-S - vernetztes Polyethylen (alle oben genannten Qualitäten werden auf unterschiedliche Weise hergestellt);
- PE-RT - Polyethylen mit molekularer Versiegelung.
Am häufigsten wird ein Polyethylenrohr für die externe Verkabelung verwendet.

Kunststoffrohr. Die Wände dieses Rohrs bestehen, wie der Name schon sagt, aus verschiedenen Materialien - aus mehreren Schichten Polyethylen und einer Aluminiumschicht. Kunststoffrohr und Armaturen sind teurer als Polypropylen und Polyethylen. Sie gelten jedoch als langlebiger und haben gleichzeitig eine bescheidene Größe. Das Rohr selbst biegt sich sehr gut und behält seine Form.

Etwas höher haben wir die verlegte Rohrführung erwähnt. Für diese Methode sind nur Polypropylenrohre geeignet, da sie bei der Installation der Rohrleitungen mit eigenen Händen zu einer monolithischen Struktur verschweißt werden und die Möglichkeit einer Leckage hier praktisch ausgeschlossen ist.
Schritt 4. Installation der Polypropylenverkabelung
Hauptvorteil PP-Rohre liegt in ihrer starken Verbindung. Hierzu wird ein spezieller Lötkolben verwendet, der die Rohrenden fast auf die Schmelztemperatur erwärmt. Nach dem Aufwärmen werden die Teile fest gegeneinander gedrückt und anschließend fest miteinander verbunden - es entsteht eine monolithische Struktur.
Verwenden Sie eine spezielle Verschraubung mit Metallgewinde im Inneren, um einen Verbinder oder einen Übergang zu einem Metallrohr herzustellen. Ein Rohrlötkolben ist ein ziemlich einfaches und kostengünstiges Gerät, das in jedem Fachgeschäft gekauft werden kann. Düsen für Rohre mit unterschiedlichen Durchmessern werden in der Regel mit einem Lötkolben verkauft.

Der beliebte Name ist "Eisen" Ausrüstung zum Löten von PP-Rohren erhalten aufgrund äußerer Ähnlichkeit mit einem traditionellen Haushaltsgerät zum Bügeln. Zum Schneiden von Polypropylenrohren wird eine spezielle Schere benötigt, da sonst der Schnitt ungleichmäßig und ungenau ist.

Wenn das Polypropylenrohr eine Verstärkung aus Aluminiumfolie hat, muss der Schnitt mit einem Spezialwerkzeug - einem Schaber - gereinigt werden. Wenn nicht, kaufen Sie ein Rohr mit Glasfaserverstärkung. Eine Scheibe eines solchen Rohrs muss nicht gereinigt werden. Das gleiche kann gemacht werden, wenn Sie ein Rohr von einem unbekannten Hersteller kaufen.
Tatsache ist, dass die Glasfaserverstärkung kostengünstig ist, sodass die Wahrscheinlichkeit, fehlerhafte Waren zu kaufen, viel geringer ist.
Beim Verlegen einer verborgenen Verkabelung muss eine spezielle Isolierung aus geschäumtem Polyethylen auf das Polypropylenrohr aufgebracht werden. Auf diese Weise haben Sie den Raum, der erforderlich ist, um das Polypropylen unter dem Einfluss der Temperatur zu expandieren.
Die folgende Fotogalerie macht Sie mit der Reihenfolge der Montage und Installation des Wasserversorgungssystems vertraut:
Die Montage der Rohrleitung aus Polypropylenrohren hat ihre eigenen Tricks, die genau überwacht werden sollten:
Wie schließe ich ein normales Waschbecken an?
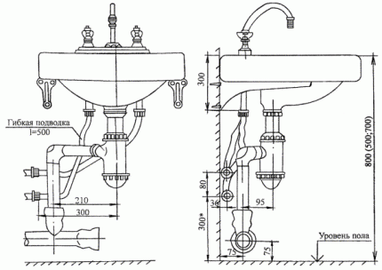
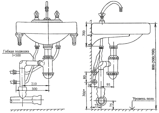
Zuerst müssen Sie die Höhe berechnen Installation der Spüle. In den meisten Fällen sind es nicht mehr als 80 cm. Wenn das Haus jedoch kleine Kinder hat, kann das Waschbecken etwas abgesenkt werden. Nachdem die Höhe bestimmt wurde, markieren Sie die Wand.
Wenn wir uns darauf konzentrieren, markieren wir eine horizontale Linie auf der Oberfläche der Wand. Danach müssen Sie die Breite der Rückwand des Waschbeckens messen und diesen Abstand von der Markierung verringern.

Bevor Sie die Halterungen an der Wand befestigen, müssen Sie den Abstand zwischen ihnen genau berechnen. Das ist nicht schwer: Wir drehen das Waschbecken um und setzen die Halterungen so auf, dass sie in spezielle Rillen fallen. Messen Sie als nächstes den Abstand zwischen den Klammern und übertragen Sie ihn an die Wand.
Jetzt können Sie Löcher bohren, Dübel schlagen und die Schrauben festziehen. Als nächstes müssen Sie einen Mischer an der Spüle installieren, ihn dann mit Schrauben und Unterlegscheiben befestigen, die Position der Spüle nach Niveau überprüfen und mit Muttern befestigen.
Wir installieren eine Gummidichtung am Abflussloch und montieren den Abfluss, verbinden ihn mit dem Siphon. Mit dem Adapter verbinden wir das Abflussrohr des Siphons mit dem Abwasserkanal. Mit flexiblen Schlauchspitzen verbinden wir heißes und kaltes Wasser mit dem Mischer.
Wie installiere ich ein Waschbecken auf einem Sockel?
In diesem Fall ist es sehr wichtig, das Markup korrekt zu erstellen. Wir stellen ein Podest auf, oben installieren wir ein Waschbecken so, dass sich der Abfluss genau in der Mitte des Ständers befindet. Wir überprüfen den Standort anhand der Gebäudeebene.

Markieren Sie danach sorgfältig die Befestigungsstellen für die Schüssel an der angrenzenden Wand. Die gesamte Struktur kann vorübergehend zerlegt werden, um Löcher in die Wand zu bohren. Danach schlagen wir die Dübel, drehen die Schrauben, setzen die Dichtungsmuttern auf.
Jetzt muss das Waschbecken noch an der Wand befestigt werden. Die Hauptsache hier ist, es nicht zu übertreiben, da Keramik reißen kann, wenn Sie die Muttern zu fest anziehen. Im Sockel müssen Sie einen Siphon installieren und an das Waschbecken und das Abflussrohr an den Abwasserkanal anschließen.
Um den Installationsprozess der Spüle mit einem Sockel zu visualisieren, empfehlen wir Ihnen, sich mit der folgenden Auswahl an Fotos vertraut zu machen:
Empfehlungen für die Installation der Toilette
Das beliebteste Toilettenmodell ist der Boden. Wenn der Badezimmerboden mit Keramikfliesen verkleidet ist, müssen Sie etwas Weiches unter die Toilette legen - zum Beispiel ein Stück Linoleum oder Gummi. Zum Verbinden Toilette in die Kanalisationmüssen Sie eine spezielle Manschette verwenden. Ein Ende ist mit der Toilette und das andere mit dem Abwasserrohr verbunden.
Die Toilette wird mit speziellen Stiften am Boden befestigt, die in Dübel eingesetzt werden, die in vorgefertigten Löchern befestigt sind.

In einigen Fällen haftet die Toilette mit Epoxidkleber am Boden. In diesem Fall sollte die Toilette ungefähr 12 Stunden lang nicht benutzt werden, bis der Kleber vollständig ausgehärtet ist.
Schlussfolgerungen und nützliches Video zum Thema
Tipps zu Verkabelungsgeräten und zur Selbstinstallation von Sanitärgeräten finden Sie in den folgenden Videos.
Video # 1. So verdrahten Sie PP-Rohre:
Video # 2. Nützliche Tipps zum Schweißen von PP-Rohren und zum Installieren von Rohrleitungen:
Im Rahmen dieser Veröffentlichung haben wir nur allgemeine Informationen zum Austausch von Rohrleitungen und Rohrleitungen bereitgestellt. Dieses Thema ist zu umfangreich, um in einem Artikel vollständig behandelt zu werden. Wir hoffen jedoch, dass dieses Material Ihnen bei der Planung und Durchführung von Reparaturen im Badezimmer, der Auswahl von Materialien und dem Austausch von Armaturen hilft.
Bitte schreiben Sie Kommentare in den Block unten. Wir interessieren uns für Ihre Geschichten über persönliche Erfahrungen bei der Selbstinstallation von Sanitärarmaturen. Wir warten auf Nachrichten mit nützlichen Fakten und Fragen zu interessanten Punkten.

Ich habe das Heizsystem auch selbst installiert. Die Verkabelung ist im Wesentlichen der Wasserversorgung sehr ähnlich. Ich möchte den Moment bei der Auswahl der Rohre separat notieren.Alle wählen hauptsächlich Metall-Kunststoff. Sie sind widerstandsfähiger gegen hohe und instabile Temperaturen, aber gleichzeitig viel teurer als Polypropylen. Wenn das finanzielle Problem dringend ist und ich die Temperatur auf einem Niveau von 90-100 Grad halten möchte, kann ich verstärktes Polypropylen empfehlen: Es wird zu einem Preis überraschen und sich nicht durch Erhitzen verbiegen.
Jetzt werde nur ich die Klempnerarbeiten ins Badezimmer stellen! Bereits einmal vertrauten „Profis“ - so gelang es ihnen, ein Waschbecken OHNE Siphon mit einem gewöhnlichen Wellrohr zu installieren! Sie waren motiviert von der Tatsache, dass „Ihre Maschine sonst nicht unter die Spüle kommt“. Einen Monat später war das Wellrohr komplett verstopft, ich musste die Waschmaschine ausbauen und alles wiederholen. Es ist besser, das Problem zu untersuchen und, wenn die Hände vom richtigen Ort sind, alles selbst zu tun, als darauf zu stoßen.