Moving a gas boiler in a private house: steps to obtain permission and implement a project
In our housing, we can make repairs as much as we like, rearrange furniture, household appliances. However, such a conversion as moving a gas boiler in a private house can cause certain problems with the gas service. In addition, disagreements will necessarily arise with the local self-government bodies of the city / town / district, resolved in court.
You must agree that it is better to foresee and do everything officially than to wander around the courts later, pay fines and change everything back. But how to carry out the transfer correctly - with minimal loss of time and nerve damage?
We will tell you all about this difficult procedure. Let us examine whether it is possible at all to move gas equipment in a suburban private property and in a city apartment. We will show you where and with whom to coordinate the reorganization, as well as what documents need to be collected.
The content of the article:
Regulatory boiler transfer
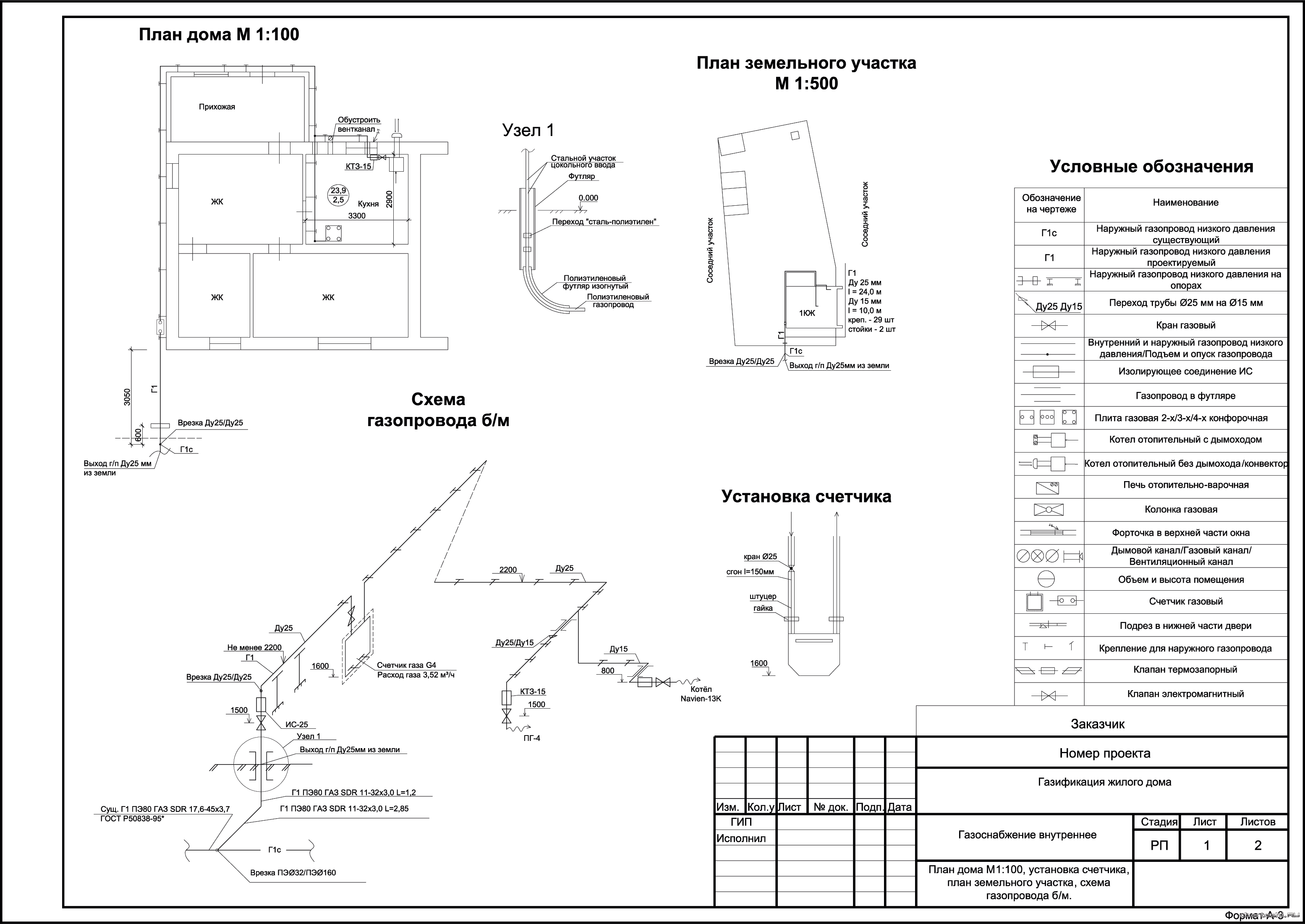
An internal gasification project is a document containing detailed schematic information of a floor plan of a residential building with the definition of technical points for the location of gas-using equipment on a scale of 1: 100.
That is, moving the gas-using heat generator to another place is a violation of the design documentation and requires changes to it.

Let’s analyze if it is possible to transfer a gas boiler to another place at all. And if possible, then with what regulatory documents is this approved and where is it recorded?
"Housing issue" for the transfer of a gas boiler and other equipment in the apartment, determine a number of articles of the LCD (Housing Code) under the number 25-29. And this process is called reorganization. All the information on the approval of the procedure, the possible refusal and its appeal, the consequences of an unauthorized transfer, and so on, are detailed in the normative collection.
These articles of the code of housing standards relate specifically to the premises of multi-apartment buildings, i.e. regulate measures and standards for gas pipe transfer, counters, boilers within the apartments. However, this does not mean that no rules apply to private homes.
According to the resolution of the Gosstroy of the Russian Federation of September 27, 2003, paragraph 1.7., Only after obtaining permission it is allowed to re-equip premises for any purpose. In this case, the transfer of gas appliances falls within this definition.
Moreover, self-installation and gas heat generator replacement It is not prohibited, but its admission to operation and connection should be carried out by employees of the gas supply company with the appropriate license.
In addition, the transfer of gas wiring will have to be coordinated, metering device and other gas equipment at home. For uncoordinated actions, you may be required to return all gas equipment to its original place. In this case, it will be necessary to pay considerable fines for each of the moved devices even after a reverse installation.
Administrative responsibility for the unauthorized transfer of the boiler is determined according to the type and severity of the violation. There are penalties, obligations to return appliances to their original place, and even shut off the gas supply. It is almost impossible to challenge sanctions in court, because you will in fact violate the provisions of the housing code.

The punishment is justified, because unprofessional installation of equipment, as well as changing the project, is a gross neglect of fire safety requirements, a threat to the life and health of people living in the building, a violation of the gas supply engineering scheme.
How to arrange a boiler transfer in a private house?
Coordination of the movement of gas-powered equipment and gas wiring is carried out with representatives of the resource-supplying organization. The application is filled out in the form approved by Decree of the Government of the Russian Federation No. 266.
You should have a package of the following documents with you when you visit the gas service:
- Passport of the applicant (owner of the dwelling).
- Home gas supply project.
- Technical passport for residential premises.
- Passport for a gas-using device.
- Consent of all other homeowners, if the house is in shared ownership (representative of the interests of minor owners).
The exact list of documents should first be clarified during a call or visit.
You will receive a commission decision on a separate form by mail or in person.

In practice, there are practically no failures. They can be connected only with the non-compliance of the new boiler room with the established standards, the absence of documents on the object confirming the rights of the owner. Gas workers do not care how many times and where you will carry the boiler.
If you want to speed up and simplify the procedure, try to use the services of the gas service, offering to perform all types of turnkey work. Some organizations provide a similar service and all you need to do is write a statement and conclude a contract.
Representatives of the company will come to the facility, draw up the protocols for the replacement and transfer of all the required equipment, will carry out coordination and installation work from the installation and grounding gas boiler before its launch and configuration.
Important points for boiler transfer
First of all, note that the transfer is possible only in the officially registered premises. That is, newly built extensions, which are not in the technical plan of the house, will not be allowed to be used for the boiler room.
If you are transferring a boiler with a change in the project, be prepared that you will have to do this for the new joint venture, which entered into force in July 2019. Normative acts of 1989, 2003, 2011 are not valid.

SP 402.1325800.2018 “Residential buildings. Rules for the design of gas consumption systems "is slightly different from the old standards and at the same time it is mandatory for use according to the order of the Ministry of Construction.
Consider the main nuances of gas engineering, taking into account the old and new rules:
- The room in which you transfer the boiler must be non-residential and included in the plan of the house.
- The ceiling height in a room with a boiler having an open combustion chamber should be at least 2.2 m.
- The volume of the room (kitchen, kitchen, dining room, corridor) with a gas stove should be at least 8 cubic meters for a device with 2 burners, each subsequent burner increases the volume by 3 cubic meters. meter.
- A room with a gas stove and a heat generator with an open combustion chamber should be at least 6 cubic meters. meters more than in paragraph number 3, but not less than 15 cubic meters. meters.
- The heat generator can be installed in the basement or basement, but it is prohibited to place it in the bathroom and sanitary facilities.
- It is necessary to equip a natural hood with three times air exchange per hour, while the inflow should be in the hood + air for combustion. For accurate calculations, technical calculations are carried out.
- In kitchens, dining rooms provide exhaust ducts in a single air exchange per hour + 100 cubic meters. meters.
- The door to the room opens out
- The socket for volatile boilers must be no further than 0.5 m from the appliance
Other important nuances that you may find useful when transferring the boiler can also be found in SP 62.13330.2011 and SP 402.1325800.2018.

It is rather difficult to follow the rules in terms of constructive arrangement. If you are just building a new boiler house, consider the entire list of requirements during the design of the room.
How much does a gas boiler transfer cost?
It is difficult to answer how much it will cost you to transfer the gas boiler to another place.
It depends on many factors:
- Transit distance.
- Replacing shut-off and control valves, inlet hoses.
- Possibilities and the need to transfer other equipment.
- Replace or make changes to the project.
- The difficulty of completing the task.
- Local price list for similar types of services.
Before implementing the plan, it is best to calculate everything and make sure of your financial capabilities. It is also worth rounding the resulting figure, as unforeseen expenses may arise in the process. On average, the final estimate starts at least 8 thousand rubles, but the figure can be many times higher.
How does the equipment transfer?
The procedure for changing the installation location is not as complicated as it might seem. You take the package of documents to the local branch of the GorGaz company and write a statement. At the same time, it is important to indicate a new installation location with the specification of dimensions and other features. The easiest way to use the registration certificate at home.
Gas workers come to you and draw up project documentation for the transfer, one copy is given to the owner of the house for review.

Then the transfer of the heating system and gas distribution complex takes place, and then the start-up of the heat generator. If everything goes well, the performers draw up an act according to which the owner of the house goes to the gas organization to register the installation activities.
To ensure that all work is completed faster, pre-prepare a place for the installation of the boiler, if you are sure that it is suitable for all standards.
You will need:
- Remove flammable objects from the room.
- Move the door if it previously opened inward.
- Install the outlet in accordance with the regulations.
- To bring gas and water pipes, as well as electric wires to the places required by the regulations.
- Hang a shield of non-combustible material at the installation site of the mounted boiler and attach the brackets; for the floor unit, form a level base that complies with fire safety standards.
- Install a hole for the chimney.
At the end, it will be necessary to check the exhaust openings and make sure that the passage to the unit installed in a new place is clear.
The free space around the gas boiler is necessary for personally monitoring the equipment, as well as for performing inspections and maintenance by employees of the company with which you contract signed to monitor the status of the device and the supply of blue fuel.
Conclusions and useful video on the topic
Video: What is the danger of installing gas equipment:
Transferring gas equipment to a more convenient place in a private house is a complicated procedure, but it is quite feasible. However, it is strongly discouraged to conduct it without coordination and services of the gas company. If you arrange everything correctly and save the received acts of work, you will not have any problems with the supervisory structures.
Want to talk about how you received permission to transfer a gas unit in your house / apartment? Do you have useful information on the topic of the article? Please write comments in the block below, share valuable information, ask questions.
