Review of septic tanks “Mole”: device, advantages and disadvantages, comparison with competitors
If you need a cheap, reliable and non-volatile autonomous sewage system, then the Krot septic tank should be considered as its main working element. Such devices appeared on the market relatively recently, but have already gained some popularity, which continues to grow.
We will talk about the demanded positions in the model range of sewage treatment systems with the Mole logo. Let's get acquainted with the pros and cons, design features and the cleaning scheme. We will give valuable recommendations to those wishing to equip an autonomous sewage system using the specified treatment facility.
The content of the article:
The model range of the brand “Mole”
The device is represented by three different models, allowing to meet the needs for drainage for a small summer cottage, and for a private house in a couple of floors.
The septic tank manufacturer “Mole” offers customers:
- Mole horizontal model 1.17
- Mole vertical model 1.18
- Mole vertical model 3.6
All products are made of durable low-pressure plastic (HDPE), the thickness of which varies between 7-14 mm.
The material has high frost resistance. To give the structure additional strength, 15-centimeter stiffeners are used.
The Mole 1.17 model is a single-chamber structure, which is used mainly as a drive. The volume of the device is 1170 liters, which is enough to service a small summer cottage. But the owners of large cottages, the acquisition of this device can be very interesting.
Several of these containers, connected in series, can be turned into a two- or three-chamber septic tank of significant volume.
The relatively low price of the device and simple installation, as well as the ability to equip the device with additional options, depending on the wishes of the customer, turn Krot 1.17 into a worthy alternative to a septic tank made of concrete rings or expensive VOC models.

Due to the lack of other chambers, this septic tank works mainly as a storage tank, in which effluents are naturally processed. The clarified and purified as a result of sedimentation of water are discharged to filtration fieldwhere additional cleaning is carried out using a gravel-sand filter.

About once a year, the device must be cleaned with a drainage machine. In case there is no such possibility, it is possible to pump out the contents of the septic tank on your own in some capacity of a suitable volume in order to dispose of the waste later.
The inlet and outlet pipes of the septic tank are equipped with transitional couplings that allow the device to dock with sewer communications.

In the standard version, the neck of the septic tank has a diameter of 50 cm and a height of 44 cm, but at the request of the customer these parameters can be changed. In addition to the main lid, the tank is equipped with an additional lid made of foamed polyethylene.
The presence of this useful element eliminates the need to additionally insulate the device in the winter. Connection place sewer pipe to the septic tank is made in such a way that when clogged it was not difficult to clean.

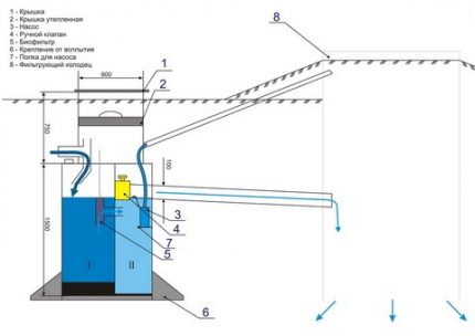
The Mole 1.8 model consists of two cameras, although it can also be delivered in a single-chamber design. The body of the product is made in the form of a cylinder, the working chambers are arranged vertically.
The height of the product is 225 cm, while the first camera accounts for 150 cm. The diameter of the case can be 136 or 186 cm. This model weighs only 105 kg, the volume of the device is 1800 liters.
Mole 3.6 model with a capacity of 3600 liters is available with both three and two cameras, which are also located vertically relative to each other. The body of the product has an ellipsoidal configuration.
The height of the tank is the same as that of the model 1.8 - 150 cm for the first camera and 225 cm in general. Width and length are 190 × 240 cm, product weight - 170 kg. The neck height is 75 cm and its diameter is 90 cm, but at the request of the customer, these sizes can be changed.

An interesting option of these two models is the ability to divert the so-called “gray” drains not into the first, but immediately into the second septic tank. “Gray” refers to drains coming from a washing machine and / or dishwasher. They have a low degree of pollution and do not need long-term settling.
To move such wastewater into the second chamber of the septic tank, an additional pipe with a diameter of 50 mm is installed with an appropriate adapter for connection to the feed sewer pipe.
Like the Mole 1.17 model, these two devices have an additional cover made of foamed polyethylene. Inside the septic tank, biofilters are installed between the first and second chambers, which improve the quality of cleaning. If necessary, the complete set of the device can be supplemented with a manual non-return valve, which will protect the device from flooding with groundwater.
The septic “Mole” can be changed to make them more suitable for specific conditions. For example, if the buyer cannot determine in advance the depth of the sewer pipe connection, instead of the neck, a 160 mm pipe with an adapter sleeve can be supplied.
Then a standard sewer pipe is attached to this adapter, with which they connect.
All models of the device are made with ascent protection in areas with normal groundwater levels. Where the water is shallow, it is recommended to use an additional mount that protects the structure from floating. This element is fixed directly to the septic tank and does not require attachment to a concrete slab.

If there is a danger of septic tank overflow, you can use drainage or fecal pump. In this case, it is necessary to order an additional option - a special shelf or tank for the pump. In addition, a 50 mm diameter outlet is installed on the neck of the septic tank.
Device and principle of operation
If we talk about the principle of operation of the septic tank “Mole” in a simplified way, then it can be considered an advanced sedimentation tank. Sewage enters the device through a sewer pipe, accumulates and is slowly processed under the influence of anaerobic microorganisms.

As it is processed, the contents of the septic tank decompose into partially purified water, neutral sludge and non-biodegradable waste.
Water, if necessary, is discharged through a drain pipe into absorbing well or to the filtration field, and other contents are removed using a suction pump. If the volume of the septic tank is calculated correctly, then the call of the scavengers and the cleaning procedure can be carried out only once a year.
If we are talking about a two- or three-chamber septic tank, then the sections in such a device are separated by sealed walls, so the contents of different departments are not mixed.
The movement of effluents from one chamber to another is carried out through special overflow openings. As already mentioned, part of the sewage waste - gray drains - can immediately be brought to the second chamber of the septic tank.
The septic tank is cleaned through inspection hatches. To improve the quality of cleaning, biofilters are installed in the second chamber.These elements look like cylindrical brushes. Gradually solid particles of waste accumulate on their bristles, so the filters must be cleaned periodically.

The biofilters are installed in the septic tank so that they are easy to get out and put back into place. Therefore, cleaning the filters comes down to a number of simple steps: you need to remove the brush from the septic tank, gently brush off the dirt back into the container and put the cleaned filter in place.
Such a simple principle of operation and a simple construction of the septic tank “Mole” allow achieving very modest results. The degree of wastewater treatment here reaches only 60%, which is noticeably lower than that of more technologically advanced VOCs, which demonstrate almost 98% purification.
Nevertheless, this is noticeably higher than the quality of wastewater treatment in an ordinary cesspool with overflow. If there is a desire to improve the quality of waste processing, you can add a mole septic tank with a compressor.
This will allow aeration of wastewater inside the septic tank and the efficient use of aerobic bacteria along with anaerobic microorganisms for wastewater treatment. The manufacturer completes the septic tank with such a device and provides a place for their installation in the design.
Another interesting addition to the “Mole” septic tank is the so-called composting module or K-module. It is installed in the first chamber of vertical septic tank models and serves to collect the insoluble part of the effluent, which can be further composted, i.e. use as fertilizer.
The contents of the K-module must be periodically removed and buried in the ground, where this waste will be recycled naturally. The K-module is produced as two separate sections of 29 and 50 liters or as one large capacity of 150 liters. In the first case, the K-module should be removed and washed out of the hose manually.
The large K-module does not need to be removed from the septic tank for cleaning. Its contents are pumped out using a pump; there is no need for flushing. If a septic tank is used by a family of three to four people, it is necessary to clean the K-module approximately once every three months.

Advantages and disadvantages for comparison
Speaking about the advantages and disadvantages of the “Mole” septic tanks, first of all, buyers note its extremely low price for this type of device.
If you compare the “Mole” with more expensive autonomous treatment facilitiesIt is worth mentioning another important fact - this device is non-volatile, i.e. for its operation it is not necessary to connect a septic tank to electricity. Of course, except when the kit is complemented by a compressor.
Almost all septic tanks that use aerobic bacteria and the aeration necessary for their normal functioning should be constantly connected to the power supply. In areas where power outages occur frequently, this fact can cause many problems.
If the mole is installed on the site, you just don’t have to worry about it. The manufacturer willingly supplies the device with additional options that allow you to adapt the septic tank to specific operating conditions.
The possibility of installing a non-return valve, a drainage pump for forced removal of treated water, shelves for installing this device, another inlet pipe into a second chamber for gray drains, protection against flooding, etc., has already been mentioned.

If you decide to install such a septic tank, it makes sense to think through these points and discuss the option of additional equipment with the supplier. The price of the product as a result, of course, will increase, but with analogues the septic tank continues to compete in this area very confidently.
The next fact that speaks in favor of the “Mole” is a simple installation. Only a foundation pit is needed, no concreting or other “wet” work is necessary, and even a concrete slab at the bottom to fix the septic tank is also not required. Although it should be remembered that the foundation pit for the vertical model will need a fairly deep, horizontal septic tank is even easier to install.
Strength is another plus. And the material itself, and the welds that connect the structure, and stiffeners - all this is done at a high quality level. The service life of the tank is estimated at 40-50 years, which is very decent for such an inexpensive device.
Septic “Mole” is often characterized as not pop-up. What does it mean? The design of the device is thought out in such a way that after installation it is effective to resist both ground pressure and groundwater, even with a noticeable increase in their level of penetration.
In areas where this indicator is consistently high, it is strongly recommended to use a special protective guard against ascent. The word “fastening” in the name of this element is associated with the process of attaching the device to the concrete slab at the bottom of the pit.
In fact, this weighting element is designed to be installed directly on the device. The weight of the case increases, which prevents the ascent of the septic tank. According to reviews, the solution found by the manufacturer turned out to be quite effective, despite the fact that the device is not connected to any static object.
The maintenance of the septic tank is as simplified as possible. The design provides access to the inlet and outlet pipes so that they can be quickly cleaned in case of clogging.
The process of cleaning biofilters has already been described above and is also extremely simple. If the cleaning efficiency has decreased, the biofilters can simply be washed in clean water to correct the situation. The annual removal of silt deposits is not a big problem.

At the same time, the buyer does not have to rely on a high degree of effluent treatment. Even when installing the compressor the manufacturer does not guarantee any high result. Therefore, the contents of the septic tank after processing can not be used immediately as fertilizer.
It is recommended to remove it or put it in compost heaps for further processing. Water obtained as a result of sedimentation and treatment of wastewater will also not be clean enough to irrigate or satisfy technical needs on the site.
In addition, the design does not provide for a separate storage tank for purified water, therefore, when installing the Krot septic tank, an absorption well or a filtration field is created without fail to purify and remove water to the ground.
Features of the installation of these septic tanks
Installing a septic tank “Mole” in comparison with more expensive counterparts looks quite simple. The dimensions of the device are small, so choosing a suitable place will not be difficult. After that, you need to mark the pit and dig it. The length, width and depth of the pit should exceed the similar parameters of the tank by about 20 cm.
After the pit is ready, its bottom is leveled and a sand pillow 15-20 cm thick is laid on top. Now you can gently lower the septic tank inside and connect the sewer pipes from the house to it and from it to the filtration field.
In small areas of the construction of the field for soil tertiary treatment is most often impossible. In such situations, another device should be separately made - a drainage well, which is also absorbing or filtering.
Sand is laid at the bottom of this structure, then crushed stone and / or gravel. The total capacity of the filling is at least 1 m. This is a filter for the post-treatment of water discharged from the septic tank.
From the house to the septic tank and from the septic tank to the drainage well conduct trenches for laying sewer pipes. If a separate pipe is used to drain gray drains, another trench can be made for it. It is recommended to insulate the pipes to prevent them from freezing in the winter.
Communications should have a slight slope so that the fluid moves along them by gravity. The size of the slope is 2 - 3 cm per each linear meter.
Sewer and drainage pipe are connected to the corresponding pipes of the septic tank. Installation of additional elements, for example, a drainage pump, can be performed both before installing the septic tank in the pit, and after it.

Now you need to sprinkle the device with sand.It is not necessary to add cement and other binders to the sand. First, the container is filled with water to compensate for external pressure. Then fill the free spaces around the body with sand. After filling, the water is removed from the tank, the septic tank is closed with a lid and its operation is checked.
The space around the cover is covered with soil. If desired, the cover can be decorated to improve the condition of the landscape on the site. But it should be remembered that the internal contents of the septic tank need free access for regular maintenance of the device and the necessary repairs.

With a full range of works on the construction of an autonomous sewage system in a suburban area next article, in which all stages are analyzed in detail.
Conclusions and useful video on the topic
This video demonstrates the installation process of a vertical septic tank “Mole” with a volume of 2400 l and five infiltrators for the removal of purified water:
Here you can see the installation procedure of the horizontal septic tank “Mole”:
And this small video demonstrates the resistance of the mole septic tank to ascent:
Septic tank “Mole” is a reliable and relatively inexpensive device that will become a real find for many private households. Of course, its efficiency is much lower than that of some popular VOCs, but an almost 100% degree of purification is far from always necessary.
A simple design and high-quality performance minimizes possible breakdowns and ensures stable operation of the autonomous sewage system created on its basis.
Want to talk about how they installed the septic tank Krot or a similar treatment plant in your own suburban area? Do you have information that will be useful for site visitors? Please write comments in the block below, ask questions and post photos on the topic of the article.

Something I did not understand, what material is it made of? It seems that there are hints that steel, but it would not hurt to immediately illuminate this issue, so as not to seek out.
Good afternoon, Stepan. From polymers with stiffening ribs. Believe me, this is quite enough to maintain integrity and original form.
Honestly, I don’t remember which modern septic tank models are made of steel.
Do I understand correctly that this is a fully prepared septic tank that is ready for work? That is, I can perform the installation myself, connect and use everything? Or are there any difficulties?
Hello Oleg. Yes, you can install the Mole septic tank yourself. This is a completely ready-to-use equipment, but you must follow the rules for installing a septic tank. The most difficult thing is connecting communications and starting up pumping equipment.
The article contains basic material that will help you during installation, also do not forget about the insulation of a septic tank, communications and equipment. Pay particular attention to installing the pump inside the septic tank. The site also has other articles on the installation of a septic tank. If you still have questions, please contact.