Comment construire un poêle russe: maçonnerie à faire soi-même, les meilleurs ordres et schémas
La construction d'un poêle dans une maison privée est un événement responsable et exigeant en compétences, dont la réalisation est recommandée sous la direction d'un cuisinier expérimenté. Lui seul sait construire un poêle russe: choisissez le bon schéma de maçonnerie, choisissez une brique, préparez une solution.
Même de petites erreurs de calcul dans la commande peuvent se transformer en un résultat déplorable, vous devez donc suivre les règles de travail et les exigences réglementaires de la construction.
Le contenu de l'article:
L'appareil du poêle russe
La taille, la forme et les caractéristiques de conception des poêles russes peuvent varier. Selon l'une des définitions, il s'agit d'une installation de chauffage et de cuisson avec 2 foyers, qui, en plus des fonctions de chauffage, est également destinée à préparer des plats typiques et à cuire du pain.
Le processus de combustion du bois dans le foyer principal se déroule comme suit: les gaz générés lors de la combustion des bûches pénètrent dans la 1 section de la sous-chambre, puis à travers des trous spéciaux - les sous-couches pénètrent dans la 2 section. Après cela, ils se déplacent vers la chambre de cuisson supérieure, d'où au canal de collecte et au tuyau.

Lors de la combustion du bois dans un petit foyer, les gaz de combustion pénètrent d'abord dans le foyer principal, de celui-ci dans le tuyau. Ici, vous pouvez utiliser non seulement des bûches sèches, mais aussi de l'écorce, des copeaux de bois, des branches et d'autres déchets.

La fondation de la construction est une fondation, généralement 0,1 m plus grande que le fond du poêle russe. Voici, ci-dessous, l'espace libre de sous-remplissage pour stocker le poker, l'adhérence, les omoplates et autres équipements.

Pour la maçonnerie de la chambre de cuisson, et en particulier pour l'arc, les briques sélectionnées les plus résistantes au feu sont sélectionnées. L'épaisseur des murs détermine la durée de la chaleur.
Les parois minces de la chambre de cuisson chauffent très rapidement, mais se refroidissent aussi rapidement. L'épaisseur standard est de 1 ou ¾ de brique. La paroi avant est plus mince - ½ brique, tout comme la cloison devant le four.
Au bas de la chambre de cuisson se trouve en dessous, pour lequel une brique lisse durable convient. Souvent, il est posé à sec, sans utiliser de solution, sur un remblai de sable grossier, dans lequel sont ajoutés de la pierre concassée, du gravier ou du verre brisé. Le plancher du foyer est fait avec une pente de 3-5 cm vers la bouche.
La forme de l'arche affecte le degré de chauffe et la complexité de la maçonnerie.

Les arcs plats sont plus difficiles à poser, pour la répartition de la charge, il est nécessaire d'utiliser des chapes en acier. Cependant, avec cette conception, le dessous se réchauffe davantage.
La technologie de maçonnerie de l'arche du poêle russe peut varier, mais observez souvent la règle suivante: disposez-la simultanément sur 2 côtés et terminez au milieu. Une brique de château est posée au centre, pour le revêtement duquel une solution d'argile est utilisée.

S'ils font du pain, ils le nettoient sous - ils déterrent les cendres et en balaient les restes.
Il y a toujours un moyen de cuire le pain sans feuilles ni formes de cuisson, lorsqu'il est placé sur une pelle spéciale, légèrement saupoudré de farine, puis «mis au four» - simplement jeté avec un mouvement brusque sur le dessous.
Construction: préparation et pose
Pour vous protéger contre toutes sortes de risques liés à l'incendie, ainsi que contre les réclamations de l'inspection incendie, nous vous recommandons d'utiliser les règles et réglementations énoncées dans la documentation légale lors de l'érection d'une structure:
- SNiP 41-01-2003 - section sur le chauffage;
- SNiP 23-02-2003 - sur la protection thermique;
- SNiP 3-01-01-85 - codes généraux du bâtiment.
Les matériaux pour la construction du four doivent également être conformes aux normes de sécurité et aux réglementations anti-incendie.
Choisir un endroit pour la maçonnerie
Traditionnellement, une disposition de four est choisie de sorte que la bouche soit face à la fenêtre et soit bien éclairée. Le bâtiment peut être situé au centre de la pièce, et contre le mur, dans le coin.
Si les murs sont en bois, ils doivent être protégés avec des matériaux incombustibles - par exemple, des tôles d'acier ou des panneaux d'amiante. Dans ce cas, la maçonnerie ne doit pas être placée à moins de 0,2 m.

Parfois, le bâtiment est placé dans un mur entre deux pièces. Pour protéger le mur ou la cloison, vous pouvez utiliser de la maçonnerie d'une épaisseur d'environ 0,2 m ou une doublure en matériau incombustible.

Vous pouvez utiliser cette option, lorsqu'un grand foyer va dans la cuisine, un petit - dans la pièce voisine. Il était pratiqué dans des maisons à cinq murs avec une cabane «d'été», dans lesquelles la chambre de combustion d'un grand poêle avec un banc de poêle n'était pas utilisée pendant une saison chaude.
Préparation d'outils et de matériaux
Les appareils et les outils de maçonnerie sont préparés à l'avance pour ne pas être distraits et se précipiter pour les rechercher au moment le plus inopportun.
L'outil principal du stoveman:
Un fil à plomb et un cordon de construction peuvent également être utiles - pour un réglage précis des coins et des murs de la structure verticalement, la règle consiste à niveler la fondation, un mètre pliant en acier pour le marquage et le nivellement. Pour des raisons de sécurité, nous vous recommandons de porter des vêtements de protection, des chaussures confortables et des gants avant le travail.
Les matériaux et leur quantité dépendent du modèle de four choisi - avec un panneau chauffant, un banc de poêle ou une plaque de cuisson.
Le tableau des matériaux nécessaires peut ressembler à ceci:

L'avantage de la fonte sur l'acier est évident: elle ne rouille pas, ne brûle pas, ne se déforme pratiquement pas sous l'influence des températures élevées et conserve la chaleur pendant longtemps.
Lors de l'achat de portes et robinets-vannes, assurez-vous que les premiers se ferment en douceur et hermétiquement, tandis que les seconds glissent facilement dans la toile. Auparavant, les dimensions des appareils étaient soumises à des normes, par exemple, les portes propres avaient des dimensions 112 * 150 mm. Aujourd'hui, vous pouvez trouver des équipements de différentes formes, longueurs et largeurs.
Comment préparer une solution?
Selon le matériau principal, les solutions sont divisées en argile, ciment, chaux.

Lors de la désignation, le composant liant est en premier lieu, l'agrégat en second lieu, par exemple 1: 1 ou 1: 2. Les solutions complexes sont indiquées en trois parties, par exemple 1: 2: 6, avec deux liants en premier lieu, le dernier espace réservé. La marque de mortier de ciment dépend de la marque de ciment utilisée.
La solution finie doit avoir les qualités suivantes:
- plasticité, pratique pour le dessin et la distribution;
- suffisamment épais pour empêcher l'étalement;
- densité normale, ni maigre ni gras.
Ici, les règles générales s'appliquent: les solutions trop minces sont considérées comme faibles et de courte durée et les graisses se fissurent après séchage.

La partie la plus difficile dans la préparation d'une solution d'argile est de trouver une qualité d'argile appropriée. Il doit être huileux, pour que la composition se révèle élastique, pratique pour la pose et la création de coutures nettes et uniformes. Il faut parfois des années pour sélectionner les bonnes proportions - c'est une autre raison de travailler sous la direction d'un artisan expérimenté.
Les débutants choisissent empiriquement la composition de la solution. Tout d'abord, l'argile est nettoyée des impuretés avant le pétrissage, puis trempée dans l'eau pendant 24 heures.
Les mêmes portions d'argile sont mélangées à différentes portions de sable, forment des gâteaux et leur permettent de sécher pendant 2-3 jours. Par la suite, les proportions qui donnent le moins de fissures sont utilisées pour préparer la solution.
Pour donner à la masse d'argile une texture et une uniformité appropriées, elle est trempée puis essuyée à travers une maille avec une maille de 5 mm.
Lors de l'installation d'un four, au lieu de sable, il est nécessaire d'ajouter de la poudre d'argile réfractaire 1: 3 ou 1: 4 à l'argile réfractaire. Vous pouvez utiliser un composé de maçonnerie préparé en usine.
Pour la pose de cheminées et de rotors de cheminée dans la maison, un mélange chaux-ciment ou chaux-sable est utilisé. Dans la construction du tuyau au-dessus du toit, un mortier de ciment ou une composition de chaux-ciment est utilisé.
Principes de base de la maçonnerie ordinale
Pour l'appareil du four russe, il est recommandé d'utiliser des briques réfractaires solides sans fissures ni éclats. L'épaisseur des espaces entre les rangées adjacentes remplies d'une solution est de 0,5 à 0,8 cm.
Différentes sections du four peuvent être réalisées en posant en brique entière, posée sur une nervure ou à plat, ainsi qu'en ½ (égal à la largeur) ou ¼ (égal au bord) de la brique.

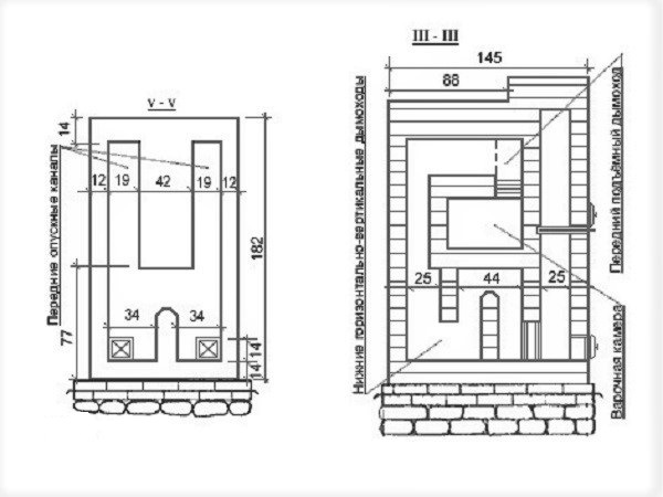
Nous vous suggérons d'utiliser des schémas et des descriptions pour vous familiariser avec la maçonnerie ordinale du poêle russe. Les dimensions de l'option proposée sont de 1,45 * 1,28 m (soit 6 briques dans une teinture et 5 - de largeur).

La fondation est posée dans le sol, dont dépend la construction de la structure. À une profondeur de 12 cm du sol, il y avait une imperméabilisation à deux couches (par exemple, 2 morceaux de toiture).

La première couche de la maçonnerie du four est également constituée de briques posées à plat.
1-4 rangées disposer selon les schémas ci-dessous, alors qu'au 4ème rang il faudra fixer des bandes d'acier et des portes de soufflerie (3 pièces).
5 rangs diffère par l'installation d'une grille, qui est nécessaire pour éliminer les cendres du four de cuisson dans l'ouverture du ventilateur. Le dessous ne doit être disposé qu'à partir de briques réfractaires.
Schéma 5 lignes et schéma 6-11 lignes:
6-11 rangées réparties selon un schéma avec quelques différences:
6 rangs - installation de la porte principale du four,
10 rangs - installation d'une porte de soufflage pour un petit foyer,
11 rangées - grille pour enlever les cendres d'une petite chambre de combustion.
12-17 rangées - travaux d'installation supplémentaires:
12 rangs - porte d'un petit foyer,
13 rangs - plaque de cuisson 2 feux en fonte (0,71 * 0,41 m), matériau - brique réfractaire et bandes d'acier pour le renforcement. Après cela, disposez les ouvertures cintrées de l'intérieur, puis les chambres de cuisson extérieures,
15 rangées - briques réfractaires mises en place sur le bord, définissez la porte de la chambre de cuisson (0,45 * 0,45 avec un verrou), le reste des briques sont posées à plat, en alternance avec des bandes d'acier.
17e rangée - disposer de briques plates posées, puis 5 rangées - un tuyau, tandis qu'une feuille d'amiante est posée entre la dernière rangée et le plafond.
Diagrammes de lignes de 12 à 17 (3-3), de 17 à 22 (4-4), du 22 au 27 (5-5):
Au-dessus de la structure principale du four passe un tuyau tapissé de 5 briques (position plate). Pour plus de solidité, il est relié au pansement. Ainsi, 32 lignes sont obtenues.
Le four avec une chaudière et un banc de poêle
En plus de la version la plus simple avec deux chambres à feu, des poêles russes complexes sont construits de leurs propres mains avec un banc de poêle, une chaudière pour chauffer l'eau, avec un sous-plancher ou une cheminée. Considérez l'ordre des solutions populaires qui peuvent être utilisées pour l'auto-construction.
La commande simplifie considérablement la maçonnerie, car l'image graphique et la description de chaque rangée montrent exactement comment la rangée précédente diffère de la suivante, quels éléments sont nécessaires à toutes les étapes.
Considérons les schémas de construction Poêle russe avec chaudièrecréé dans un programme informatique.
1 rangée définit l'emplacement de toute la structure, elle est faite de briques réfractaires posées à plat.

2 rangs - Le début de la construction des compartiments.

3 rangs - la conception de deux chambres, nettoyage et soufflage.

4 rangs - fermeture du foyer.

5 rangs - grille.

6 rangs - réservoir d'eau chaude.

7 rangs - renforcement de la paroi latérale.

8 et 9 rangées - canaux de sortie.

10 rangs - l'union des arcades des chambres de combustion principale et petite.

11 rang - installation de la table de cuisson.

12-13 rang - la conception des parois de la table de cuisson.

14 rangs - entrée au tuyau.

15 rangs - voûte de la chambre de cuisson

16 rangs - renforcement des murs.

17 rangs - installation de pièces métalliques.

18 rangs - l'arche du four.

19 rangs - renforcement de la cloison interne.

20 rangs - remblayage avec du sable.

21 rang - la base du canapé.

22 rang - installation d'une pièce métallique dans la cheminée.

23 rangs - porte de cheminée.

24 rangs - installation de l'obturateur.

25-26 rang - rétrécissement de la maçonnerie.

27-29 rang - raccordement d'un espace annulaire et d'une cheminée.

La cheminée est dirigée à travers le grenier vers le toit, une loutre y est disposée et la zone adjacente est imperméabilisée de sorte qu'il n'y ait pas d'espace entre le tuyau et le matériau de toiture.
L'essentiel pendant la construction est d'observer l'ordre du poêle russe et de contrôler la qualité des matériaux utilisés.
Recommandations de fonctionnement
L'efficacité de la combustion du combustible et l'état général du four dépendent du respect des règles de fonctionnement, qui ne doivent pas être respectées de temps en temps, mais régulièrement.
La brique, comme le mortier, fait référence aux matériaux "vivants", qui peuvent se déformer avec le temps à cause des températures extrêmes. Par conséquent, il sera nécessaire non seulement de nettoyer, mais également de couvrir les fissures afin que la condensation ne se forme pas et que la capacité thermique de la structure ne diminue pas.
C'est très simple, voici un exemple: avec le temps, un espace de seulement 2 mm de large s'est formé autour de la valve. Il s'avère qu'en une heure, il passe jusqu'à 15 m³ d'air chauffé à une température de 90-100 ° C, soit environ 10% de toute la chaleur provenant du four.

La réparation et le nettoyage des poêles sont effectués une fois par an, avant la saison de chauffage. Mais les cheminées doivent être nettoyées plus souvent - environ 2 à 3 fois par saison. Avant de démarrer le four, les cendres sont retirées de la grille pour assurer un accès libre à l'air pour une combustion efficace.
Le carburant est préparé à l'avance, car les bûches doivent sécher. Pour ce faire, ils sont empilés dans des tas de bois sous un auvent et laissés pendant au moins un an. Le bois de chauffage brut n'est pas recommandé, car l'humidité s'évaporant se dépose sur les murs et se mélange à la suie.

En règle générale, le processus du four prend de 1,5 à 2 heures.
Le bois de chauffage est empilé dans une chambre de four en rangées ou dans une cage, avec une petite distance entre les bûches. Il est important qu'ils brûlent en même temps, car la chaleur sera plus importante.
Pendant longtemps, il n'est pas recommandé de chauffer le four pour augmenter le chauffage. Ainsi, vous pouvez provoquer l'apparition de fissures, à la suite de quoi vous aurez besoin d'abord de cosmétique, puis de révision - pose à nouveau.

Dès que le bois de chauffage s'enflamme, le four est fermé et le ventilateur est ouvert. Le tirage est régulé par la position de la vanne ou de la vue.
Quelques recommandations plus utiles:
- Des flammes rouge vif et une fumée noire indiquent un manque d'air - le débit doit être augmenté.
- Flamme blanche et bourdonnement dans le tuyau - excès d'air, il vaut mieux couvrir un peu le souffle.
- Il est possible de remuer les bûches uniquement après avoir complètement brûlé et formé des friches qui laissent passer l'air.
- Les brandons sont poussés au centre des charbons ardents pour qu'ils brûlent rapidement.
- Dès que les charbons cessent de brûler avec une flamme bleue, ils sont répartis le long du foyer, se rapprochant de la bouche.
- Pour une assurance contre la fumée de monoxyde de carbone, le tuyau n'est pas fermé pendant 10 minutes supplémentaires pour empêcher le monoxyde de carbone de pénétrer dans la pièce.
Si le four est chauffé au charbon, il est recommandé de le faire fondre avec du bois de chauffage.
Lors de la finition des murs extérieurs, n'oubliez pas qu'un beau revêtement peut réduire partiellement le flux de chaleur dans la pièce.
Conclusions et vidéo utile sur le sujet
Présentation vidéo du poêle russe avec la commande:
Le processus de démontage de l'ancien et de construction d'un nouveau four:
Une des variantes du poêle russe avec la commande:
Si vous construisez correctement le poêle russe, vous pouvez immédiatement obtenir presque un appareil de chauffage «éternel» et un excellent équipement de cuisine pour cuisiner. Cependant, pour cela, l'appareil doit être entièrement conforme à la commande, et la technologie de pose des briques et de mélange du mortier doit être conforme aux normes généralement admises.
Et avant de faire un projet de poêle russe, il est préférable de consulter des cuisiniers qualifiés.
Veuillez écrire des commentaires dans le bloc ci-dessous. Dites-nous comment vous avez construit un poêle russe dans votre maison de campagne ou dans une maison de campagne. Posez des questions, partagez des informations utiles pour les visiteurs de sujets intéressés sur le site, publiez des photos thématiques.




Le matériau le plus intelligible sur la maçonnerie du poêle russe, que j'ai vu sur Internet. Et à quel prix ça va approximativement?
Si vous commandez le master, il sortira en 150-180 tr Si vous le faites vous-même, alors 50-60 tr pour les matériaux. Bien que dans différentes régions, le prix peut varier.
Oleg, les gens jettent de l'argile lorsqu'ils drainent des trous de creusement et ne savent pas comment s'en débarrasser. Le sable sur la carrière peut être tapé, si vous en avez dans la région.
Le four n'est pas construit rapidement, plusieurs rangées par jour, il est tout à fait possible de transporter un peu même sur une voiture de tourisme. Encore une fois, une brique, s'il y a une pose de talon, dans les villages, ils cassent les fours, en raison de la gazéification, vous pouvez en convenir, prenez-en une bonne pour un sou. Pas de blagues, il n'y a pas tellement de bruit et les économies sont déjà substantielles sur ces détails. Soit dit en passant, nous avons acheté des accessoires, par exemple, au même endroit, nous avons eu de la chance - les gens ont cassé un four presque inutilisé.
Et un autre hack de vie. Aux points de collecte de ferraille, au prix du métal à livrer, vous pouvez également trouver des renforts. En magasin, ce sera 50 fois plus cher. Les gens cassent le poêle, louent. Cela peut être une réticence à s'embêter comme ça, mais en fait, il n'y a que quelques heures sur Internet pour s'asseoir et aller à quelques endroits pour le découvrir.
C'est vrai, un cuisinier / fabricant de cheminée, alors il a construit 4 poêles et 3 cheminées pour les gens. Vers 9 ans, ils sont déjà aux côtés des gens, ils ne se plaignent pas. L'essentiel est de mieux sélectionner le matériau.