Installation de la colonne de gaz à faire soi-même dans un appartement: exigences et normes techniques d'installation
Les chauffe-eau à gaz à écoulement sont un attribut traditionnel des anciennes habitations. Ce type d'équipement est peu connu des propriétaires d'appartements dans des immeubles de grande hauteur avec une alimentation en eau chaude centralisée. Cependant, les propriétaires des Khrouchtchevs continuent de l'exploiter activement. Tous ne savent pas installer une colonne de gaz dans un appartement.
D'accord, cette question nécessite une analyse approfondie. L'installation analphabète d'une unité de traitement du gaz entraînera une menace sérieuse. Éliminer les moindres risques aidera les informations présentées dans notre article très utile. Nous vous familiariserons avec toutes les subtilités et les détails du processus d'installation.
Les informations soigneusement vérifiées et systématisées que nous présentons sont soutenues par des collections de photos et des vidéos. Avec nous, vous recevrez des réponses complètes à toutes les questions possibles qui se posent lors de la connexion des unités de gaz.
Le contenu de l'article:
- Si un chauffe-eau à gaz n'est pas fourni
- Si la colonne a déjà été installée
- Exigences pour une pièce avec équipement au gaz
- Exigences de ventilation et de cheminée
- Dispositif de cheminée dans un appartement avec des murs en bois
- Règles de disposition des colonnes
- Spécificités de l'installation de gaz
- Test d'étanchéité au gaz
- Analyse des erreurs d'installation les plus courantes
- Responsabilité pour une installation non autorisée
- Conclusions et vidéo utile sur le sujet
Si un chauffe-eau à gaz n'est pas fourni
Dans une maison où l'équipement au gaz tel qu'un poêle est autorisé, l'installation d'un haut-parleur peut être interdite. Cette restriction s'applique aux maisons de plus de 11 étages. Aucune autorité de contrôle ne délivrera un permis pour installer une colonne dans un tel appartement, car cela est dangereux pour les résidents.
En plus du nombre d'étages, la raison du refus peut être le réaménagement. Les studios ne sont pas adaptés à l'installation d'équipements à gaz, car les appareils doivent être installés dans des locaux non résidentiels.
Si la cuisine est combinée avec le salon, cela rend l'utilisation d'appareils à gaz illégale. Avant le réaménagement, ces limites doivent être prises en compte. La même chose peut être attribuée aux appartements où la cuisine est absente ou commune.
Si la maison ne relève pas de ces restrictions, il est nécessaire de récupérer un paquet de documents pour l'enregistrement de l'appareil.
La procédure est la suivante:
- Écrivez une déclaration à la société de distribution de gaz.
- Obtenez un plan de BTI ou Rosreestr.
- Fournissez un extrait de Rosreestr confirmant la propriété.
- Contactez l'organisation concernée pour rédiger le projet.
- Trouvez des spécialistes certifiés d'une organisation qui a accès aux travaux de gaz.
Après cela, les spécialistes feront un insert dans le tuyau de gaz, connecteront l'appareil et mettront en marche le chauffe-eau.

Il est fortement recommandé de faire l'installation vous-même colonne de gaz contourner la loi. Ces actions entraînent non seulement des sanctions, mais mettent également en danger la vie des gens.

Si la colonne a déjà été installée
Lors du remplacement d'un chauffe-eau en cas de dysfonctionnement, le passeport de l'appareil doit être remplacé. Si vous installez indépendamment une colonne de gaz, alors dans le passeport du nouvel appareil, il n'y aura aucune marque sur la mise en service et les inspections.

Après réception des commentaires, il sera nécessaire de reconnecter la colonne, en invitant des spécialistes certifiés.
Leurs fonctions comprennent l'inspection système de ventilation. Dans les vieilles maisons, ils peuvent être obstrués par des ordures. Il est dangereux d'utiliser des conduits de ventilation obstrués. Cela peut provoquer une intoxication mortelle au monoxyde de carbone. Si la décision d'auto-installation du chauffe-eau est prise, vous devez d'abord vérifier la ventilation.
Exigences pour une pièce avec équipement au gaz
L'endroit où le chauffe-eau à gaz sera installé devrait être plus d'une capacité cubique de plus de 7,5 m3. La hauteur dans la pièce ne doit pas être inférieure à 2,0 mètres. Cette hauteur selon les normes est suffisante pour un geyser. La pièce doit être vitrée.
La fenêtre ne doit pas être terne, il doit être possible de ventiler en cas de fuite. La surface vitrée totale (sans cadre) est déterminée par la formule:
C = O * 0,03,
Où:
C est le domaine du vitrage.
O est le volume d'air dans la pièce.
La fenêtre doit laisser entrer l'air pour une ventilation d'urgence. La cuisine ordinaire satisfait pleinement à ces exigences si elle est équipée d'une porte. S'il n'y a pas de porte dans la cuisine, elle doit être installée.

Installation intérieure souhaitée analyseur de gaz. Cela aidera à détecter une fuite de gaz. Cet appareil est facultatif, mais permet de suivre le fonctionnement des appareils à gaz. Il réagit à l'excès de propane dans l'air, puis le signale par un signal.
Exigences de ventilation et de cheminée
Pour créer une circulation d'air dans la pièce, un trou de ventilation est nécessaire. Il ne doit pas être obstrué, l'air doit le traverser calmement. Si vous négligez cette règle, en cas de fuite de gaz, les locataires de l'appartement recevront un empoisonnement avec de graves conséquences.
Le risque de détonation de gaz domestique augmentera considérablement s'il n'est pas éliminé naturellement, car une fuite peut se produire la nuit, lorsqu'une personne n'est pas en mesure de la détecter.
Pour le fonctionnement normal de la colonne de gaz, vous devez en plus tenir une cheminée. Il peut être affiché dans un système de maison commun ou directement dans la rue. Lors de la construction de la cheminée, il faut tenir compte du fait qu'elle ne peut pas avoir plus de deux coudes à un angle de 90 degrés.
La longueur totale de la cheminée ne doit pas dépasser trois mètres. Trois options pour l'emplacement de la cheminée sont autorisées.

Le tuyau doit avoir une section verticale au point de raccordement au chauffe-eau. La longueur de la section verticale doit être supérieure ou égale à 50 cm et la longueur de la section horizontale du tuyau ne doit pas dépasser deux mètres.
Une cheminée peut être fabriquée à partir d'un tuyau ondulé flexible, mais il est nécessaire d'éliminer son affaissement, qui peut bloquer l'élimination des produits de combustion.

Si l'appareil de la colonne n'implique pas de cheminée, vous ne pouvez pas vous limiter au trou de ventilation dans le mur.Il est nécessaire d'établir une hotte d'échappement à part entière, mais même dans ce cas, le service de gaz aura des questions sur un système d'échappement de monoxyde de carbone similaire.
Dispositif de cheminée dans un appartement avec des murs en bois
Dans les maisons en bois, l'utilisation d'un chauffe-eau à combustible bleu est autorisée, mais les normes de prévention des incendies pour l'installation d'une colonne de gaz doivent être respectées. La cheminée ne peut pas entrer en contact avec l'arbre; des matériaux incombustibles doivent être placés entre eux.
Comme isolation thermique, du basalte ou de la laine minérale peut être utilisé. L'utilisation de mousse de polyuréthane résistant à la chaleur est autorisée.
Ceci est nécessaire pour éviter les incendies en cas de fort échauffement de la cheminée. En règle générale, les cheminées ne sont pas prévues dans les vieilles maisons en bois, ou elles sont conçues pour le chauffage au poêle. Dans les maisons d'urgence, l'installation d'équipements à gaz est interdite.
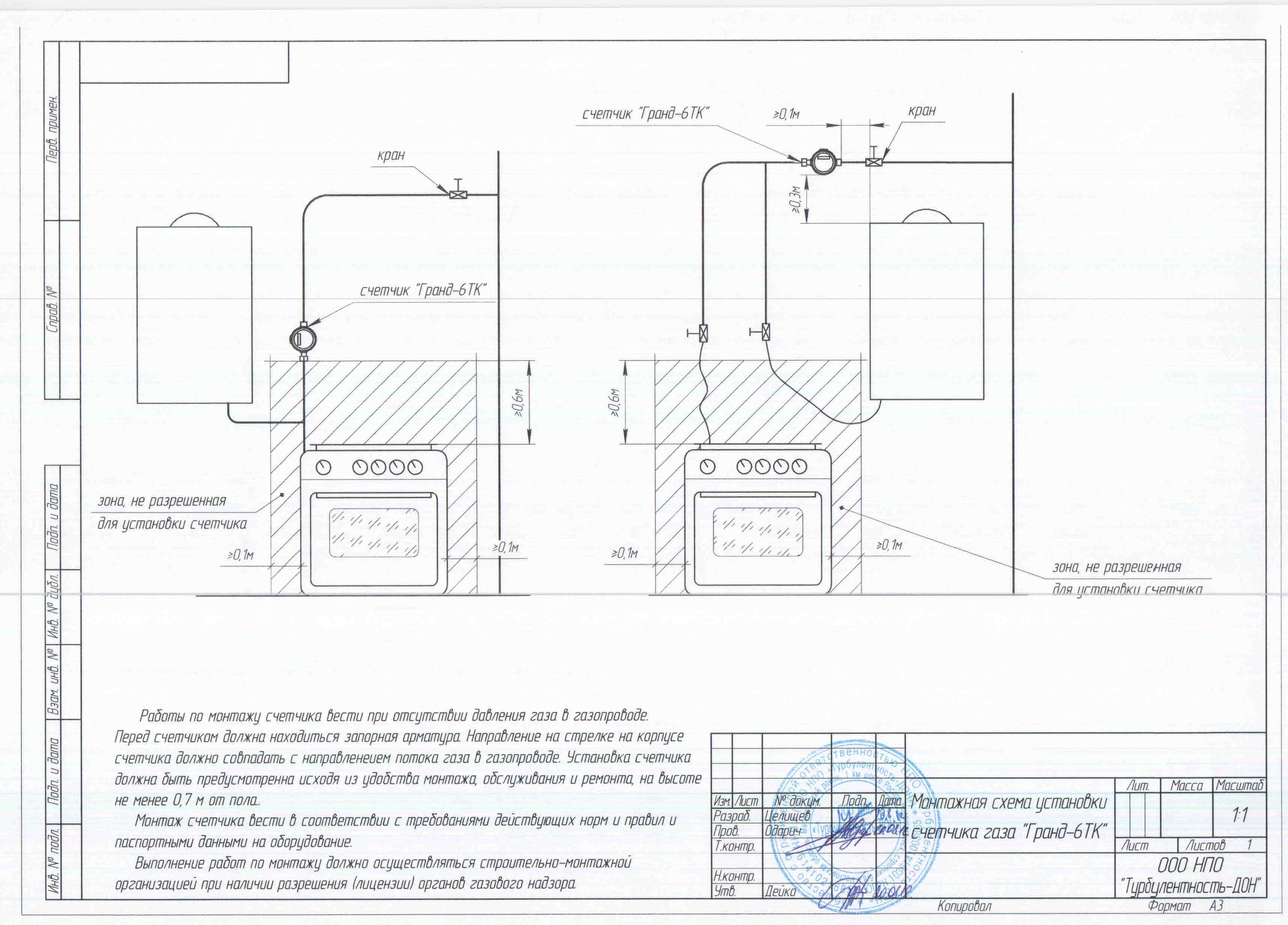
Règles de disposition des colonnes
Le chauffe-eau ne peut pas être situé sur le mur porteur du bâtiment. Ceci est expressément interdit par les exigences d'installation des chauffe-eau à gaz. En cas d'explosion, cela peut entraîner des dommages au bâtiment ou sa destruction partielle.
Pour clarifier la possibilité d'installer l'appareil, vous devez prendre les informations du passeport cadastral de l'appartement et du plan général de la maison. Ces informations peuvent être clarifiées en appelant des spécialistes.
Les exigences d'espace sont présentées de la colonne elle-même au mur opposé. La distance ne doit pas être inférieure à un mètre. Cela est nécessaire pour un accès gratuit à l'appareil pour sa maintenance et son inspection. De plus, les tuyaux d'alimentation en gaz des murs ne peuvent pas être montés.
Cela rend difficile l'inspection des communications et la recherche de fuites de gaz dans l'appartement. Si cette violation est détectée, un ordre d'élimination sera émis et des informations sur la façon d'installer correctement la colonne de gaz et où aller seront expliquées.

La colonne doit être à plus de 10 cm du mur et il est interdit d'installer un chauffe-eau à gaz sur un mur en bois sans préparation préalable. Une plaque d'acier doit être installée sur le site d'installation, égale ou supérieure à la paroi arrière de l'appareil.
Il n'est pas autorisé d'installer la colonne au-dessus de la cuisinière à gaz.Ces appareils doivent être distants d'au moins 1 mètre. Ne peut pas non plus être utilisé hotte comme rejet de produits de combustion. N'utilisez pas une seule cheminée pour la hotte et la colonne de gaz. Ceci est expressément interdit par les normes de sécurité.
Spécificités de l'installation de gaz
Les tuyaux de l'appartement sont la propriété de son propriétaire, mais vous ne pouvez pas effectuer de modification non autorisée du système d'alimentation en gaz. Pour tout changement, vous devez obtenir la permission du service de gaz, sinon une amende sera émise.
Si chauffe-eau à gaz déjà installé à cet endroit, il n'entraînera pas de modifications importantes du projet. Il suffit de fermer le robinet de gaz sur le tuyau et de le remplacer. Si le chauffe-eau est installé pour la première fois, vous devez faire le câblage.

Lors de l'installation des tuyaux vous-même, les règles suivantes doivent être respectées:
- Bloquez le gaz avant de commencer le travail.
- Effectuez les travaux avec une fenêtre ouverte.
- Éliminez les débris des tuyaux survenant pendant l'installation.
- Ne faites pas passer les tuyaux par les ouvertures des portes et fenêtres.
- N'utilisez pas la gaine de ventilation pour la pose de tuyaux.
- Ne montez pas le tuyau de gaz dans le mur.
- N'utilisez pas de tuyaux flexibles de plus de 3 mètres.
- Peignez les tuyaux métalliques.
Une attention particulière doit être accordée à l'étanchéité des éléments de raccordement du gazoduc. Pour ce faire, utilisez un scellant et un scellant. Une fois le câblage terminé, vous pouvez procéder à l'installation de l'appareil.
Test d'étanchéité au gaz
Après avoir installé le chauffe-eau, vérifiez les tuyaux de gaz pour les fuites. S'il y a analyseur de gazCela simplifie considérablement la procédure et améliore la qualité du contrôle. Si cet appareil est manquant, vous pouvez utiliser l'ancienne méthode.
Pour ce faire, vous avez besoin d'un savon ordinaire, d'un pot et d'une brosse. Le savon est dissous dans un pot à l'état d'émulsion liquide. Ensuite, successivement, à l'aide d'un pinceau, l'émulsion est appliquée sur les joints des tuyaux. Au fur et à mesure que vous appliquez, vous devez surveiller l'apparition de bulles dans les zones traitées. S'ils apparaissent, il est nécessaire d'éliminer la fuite.

En aucun cas, vous ne devez vérifier la fuite de gaz par le feu. Ceci est dangereux et peut provoquer une explosion. Ne risquez pas votre vie et celle des voisins.
Les équipements à gaz nécessitent une inspection régulière et un nettoyage périodique. Colonne propre vous pouvez le faire vous-même, mais s'il n'y a absolument aucune expérience dans l'entretien de tels systèmes, il est préférable de contacter la société qui a conclu un accord avec vous pour la fourniture de combustible gazeux et la maintenance des appareils impliqués.
Analyse des erreurs d'installation les plus courantes
L'erreur la plus courante consiste à installer un geyser dans la salle de bain. Dans cette pièce, en règle générale, il n'y a pas de fenêtre. Il est particulièrement dangereux d'installer des enceintes sans cheminée.Il existe des modèles de chauffe-eau dans lesquels le monoxyde de carbone sort par les ouvertures, et son retrait des locaux se fait par un évent dans le mur.
La deuxième erreur la plus courante est le désir de cacher l'appareil afin qu'il ne sorte pas visuellement de l'intérieur. Souvent, un geyser est installé dans une armoire. Cela conduit à une violation du bon fonctionnement de la colonne de gaz.

La troisième erreur souvent rencontrée est la connexion confuse du tuyau de gaz dans la colonne. Cela fait entrer de l'eau dans le pipeline. Le liquide y arrive par la colonne de gaz puis descend dans les tuyaux. Ainsi, l'eau pénètre dans l'équipement à gaz des voisins par le bas, la désactivant complètement.

Il est impossible d'empêcher les employés de GORGAZ de fermer. En cas de refus, une brigade de police sera appelée car elle est en danger de mort.
Responsabilité pour une installation non autorisée
Si l'insert dans le tuyau de raccordement de la colonne est contourné par le compteur, un tel acte relève de l'art. 7.19 AK de la Fédération de Russie. Pour cela, la responsabilité administrative est prévue sous forme de sanctions.
Pour les particuliers, les amendes varient de un an et demi à deux mille roubles. Il s'agit de la plus petite mesure possible pour se connecter illégalement au système de gaz. Le raccordement officiel au gazoduc centralisé est décrit en détail. dans le prochain article, dont nous vous conseillons de vous familiariser.
Outre le code administratif, l'insertion et l'installation non autorisées d'équipements à gaz sont soumises à la loi fédérale n ° 69 sur la sécurité incendie. Selon le texte du document, le propriétaire du bien porte une responsabilité administrative ou pénale, selon la gravité des conséquences.
Si les actions portent préjudice à des tiers, le propriétaire sera tenu de l'indemniser intégralement. En outre, une amende de 80 000 roubles peut être infligée pour violation. Si des dommages importants ont été causés à la santé des voisins, le propriétaire peut être placé en détention provisoire et privé de liberté pour une durée maximale de deux ans.
Conclusions et vidéo utile sur le sujet
Extrait n ° 1. Comment connecter et sceller les tuyaux:
Extrait n ° 2. Quel est le danger de connecter l'enceinte sans respecter les réglementations anti-incendie:
S'il a été décidé d'installer un chauffe-eau dans l'appartement par vous-même, il est nécessaire d'installer conformément à toutes les règles. Il est strictement interdit d'économiser sur le matériel d'installation. C'est le cas lorsqu'il vaut mieux se couvrir et surpayer. Sinon, les conséquences peuvent être tragiques. Il vaut mieux inviter un spécialiste et effectuer un paiement une fois, que de payer constamment des amendes du service du gaz.
Vous avez des questions sur le sujet de l'article, trouvez des défauts ou y a-t-il des informations précieuses que vous souhaitez partager avec d'autres visiteurs du site? Veuillez écrire un commentaire dans la case ci-dessous.

La dernière vidéo (dans la salle de bain!) Était particulièrement ravie, exactement le contraire de ce qui est écrit ci-dessus!
Oui, vous avez raison, l'éditeur a un peu raté la vidéo 🙂 La vidéo a été remplacée, merci.
Installer une colonne de gaz par vous-même est une étape sérieuse! La sécurité joue ici un rôle important, il vaut donc la peine de vérifier à nouveau les détails lors de l'installation. Récemment, j'ai installé la colonne moi-même et j'ai fait plusieurs erreurs qui pourraient avoir des conséquences très graves. Je pense qu'il faudrait accorder plus d'attention à la sécurité.
Tout dépend de la capacité mentale du connecteur. Avec normal, et connecté et réparé, faites-le parfaitement vous-même. Sans ingénieurs d'extorsion! Le gaz n'est pas plus dangereux que tout autre équipement domestique. L'électricité sans cervelle peut être beaucoup plus dangereuse. Combien ont cuisiné dans les salles de bain, car ils ont décidé de chauffer leur eau avec une chaudière? Le gaz tombe rarement en panne ... il se trouve juste qu'il résonne, mais ... l'électricité tue chaque année beaucoup plus ... ..
Le bois doit être monté sur du fer, avec un joint en amiante, d'au moins 3 mm d'épaisseur. La fixation de la feuille de protection doit être en dehors des dimensions de la colonne de gaz. Du fer galvanisé est utilisé, il peut être peint avec une PEINTURE NON BRÛLABLE! Pigment de la couleur désirée, diluer avec du verre liquide. J'ai utilisé de l'argent. Une telle peinture résiste à des températures allant jusqu'à 800 degrés et ... ne brûle pas! Elle ne doit pas peindre un arbre - elle ne supporte pas un feu puissant. Et une feuille d'amiante sans fer ne peut pas être utilisée - de la poussière nocive se forme. Par conséquent, après l'installation, les bords de la protection doivent être traités avec du verre liquide. Min.vatu, et similaires, dans des locaux résidentiels à appliquer - c'est IMPOSSIBLE. Il est encore plus nocif pour les poumons avec des microparticules de poussière. Meilleur amiante avec verre liquide. Bonne chance aux artisans.
Oui, et n'oubliez pas de bien rincer les composés, pour la qualité - ne manque-t-il pas où l'affaire? Toutes les connexions sont lavées sans exception! Si vous vérifiez vous-même vos plaques périodiquement, vous n'aurez aucun problème! L'essentiel est la précision et le soin.
Bien sûr, je suis partiellement d'accord avec vous, mais je suis par exemple électricien, bien qu'en même temps, en ce qui concerne les équipements à gaz (la même colonne), je fais confiance aux professionnels pour se connecter. Vous venez donc de décrire vous-même beaucoup de subtilités que je ne pouvais en aucune façon connaître. Oui, je ne conteste pas, vous pouvez vous fier à ces informations, ainsi qu'à ce qui se trouve dans les sources officielles et vous pouvez tout connecter vous-même. Mais voici une situation légèrement différente.
Vous écrivez et demandez donc que l'électricité tue plus de personnes que le gaz, en comparant les statistiques. Oui, plus de personnes meurent de chocs électriques, y compris celles qui, par manque de connaissances, ont décidé de chauffer l'eau de la salle de bain avec une chaudière. Le gaz n'est peut-être pas si dangereux, mais il ne pardonne pas les erreurs! Et si, par stupidité, une seule personne est tuée par un courant électrique, alors une erreur dans l'installation d'une colonne de gaz peut coûter la vie de toute l'entrée!
À quelle distance la sortie doit-elle se tenir du geyser?
Bonjour Nous regardons dans la coentreprise 402.1325800.2018 immeubles résidentiels. Règles de conception des systèmes de consommation de gaz:
“La prise de raccordement de l'équipement alimenté au gaz doit être faite avec un contact de mise à la terre et située dans un endroit facilement accessible à la portée de la longueur du câble d'alimentation de l'équipement alimenté au gaz à une distance ne dépassant pas 0,5 m de l'équipement lui-même pour pouvoir déconnecter rapidement l'équipement alimenté au gaz du secteur si nécessaire.“.
L'article est une contradiction totale. L'un d'eux: la distance au poêle est de 1 m, et sur la photo, ils recommandent 10 cm.
Bonjour SP 402.1325800.2018 - “la distance horizontale à la lumière des parties saillantes de l'équipement de chauffage au poêle à gaz domestique doit être d'au moins 10 cm“.
Merci pour l'article! Je voulais poser des questions sur la cheminée. Nous pensons à recoudre le tuyau (fermez-le avec une «boîte») afin qu'il n'attire pas visuellement le regard. Cela peut-il être fait? Et si oui, y a-t-il des exigences?
Bonjour Ici ici dans le chapitre «Méthodes de masquage de la communication» lire.