Desenho de um banheiro rural: esquemas populares de construção para um projeto independente
Você não se atreve a construir um banheiro completo no país, mas decidiu limitar-se às comodidades do quintal? Concordo, seria ótimo se esse prédio fosse conveniente e parecesse decente, e não apenas durante a visita, ele não pingou na cabeça? Mas no caminho para a implementação do plano, é necessário um desenho, mas você não sabe como executá-lo corretamente?
Vamos dizer-lhe como fazer um banheiro confortável a partir de um banheiro rural comum. Para isso, vale a pena construir não "a olho nu", mas de acordo com um projeto desenvolvido anteriormente. No artigo, selecionamos as soluções mais simples, fornecendo diagramas e desenhos detalhados. Também examinamos as variedades populares de armários para casas de campo de verão, suas características e tipos de materiais usados na construção.
De fato, não é necessário fazer um desenho de um banheiro do país, você pode usar as soluções prontas fornecidas em nosso artigo. Decida sobre os principais recursos do banheiro, como os materiais usados e a presença de uma fossa, e depois escolha o modelo de banheiro que você gosta. Para ajudar o designer iniciante, demos um vídeo detalhado sobre a criação de um desenho.
O conteúdo do artigo:
Características do desenho
Um banheiro rural não é um projeto tão simples, como muitos construtores iniciantes tendem a pensar. Há vários recursos importantes a serem considerados ao desenvolver um projeto e construir desenhos.

Regras para o design do banheiro:
- Dimensões. Considere o tamanho do interior do banheiro. A área mínima permitida é de 1 x 1 m.Se você economizar dinheiro e diminuir a cabine, será inconveniente usá-la. Além disso, atenção especial deve ser dada à escolha banheiro do país.
- Altura. Há também um limite de altura. É indesejável construir um banheiro com menos de 2 m de altura. Ao entrar, curvou-se, muito em breve cansado.
- Inclinação do telhado. Quando um telhado de passo único é instalado, a parede traseira é projetada um pouco mais baixa que a frente. Isso é feito para formar uma inclinação do telhado e escoamento da água da chuva para a construção.
- Iluminação. Se você não planeja executar iluminação elétrica, verifique se a luz do dia entra no banheiro, mesmo com a porta fechada. Se você não quiser mexer nas janelas, corte pelo menos um pequeno orifício na parte superior da porta.
- Ventilação. Banheiro do país - prédio mal ventilado. Para consertar isso, um tubo de ventilação é lançado ao longo da parede traseira.
- Sombra. Para que no banheiro rural não estivesse abafado no verão, coloque-o em um local com sombra.
- Localização do lote. Outra dica para escolher um local de construção: evite a proximidade de uma fossa séptica ou fossa de fontes de entrada de água, poços e furos. Isso é feito por razões sanitárias.
Se você levar em conta todas essas recomendações, será muito mais fácil elaborar um banheiro do país.
Escolhendo o tipo certo de projeto
Para criar um desenho, você precisa determinar o tipo de banheiro. Pode ser um banheiro com uma fossa ou sem ela. Além disso, a fossa pode ser usada com lucro para a família e compostada.
Construir com um contêiner selado em vez de uma fossa será apropriado na área em que a água subterrânea estiver muito próxima da superfície da terra.
No. 1 - um banheiro clássico do país com uma fossa
O design mais comum e familiar de um banheiro simples para uma residência de verão é um modelo com fossa. O princípio deste projeto é elementar: todo o resíduo cai em um buraco profundo, localizado diretamente embaixo da cabine do vaso sanitário.
Se a fossa estiver cheia, eles chamam um limpador, que bombeia todo o esgoto, e o banheiro pode ser usado ainda mais.

Como um banho no país é tão necessário quanto um banheiro, alguns tentam combinar esses dois projetos em um.
Se você construir um chuveiro externo em uma parte do terreno e um banheiro na outra, terá que trabalhar bastante com uma pá, porque em ambos os casos é necessário um poço de esgoto.
Ao combinar as comodidades, você pode reduzir significativamente os custos de mão-de-obra para terraplenagem e a quantidade de materiais necessários.
No. 2 - lavabo ou banheiro sem furo
Uma maneira fácil de fazer um desenho de um vaso sanitário para uma cabana de verão é projetá-lo com base no princípio do armário de pó.
Este tipo de vaso sanitário não implica a existência de uma fossa, todos os resíduos entram no tanque diretamente sob o assento do vaso sanitário. Pode ser um tanque ou balde de plástico ou metal.
Como o principal problema desses banheiros é um cheiro desagradável, o esgoto é polvilhado (polvilhado) com substâncias absorventes que protegem o banheiro do aparecimento de um “âmbar” específico.

Como o adsorvente usado cinza de madeira, turfa, serragem, areia. Em geral, o armário de pó com turfa é uma variação caseira de armários secos prontos para produção industrial, que usam a mesma turfa como carga.
No. 3 - vaso sanitário com poço de compostagem
Outra opção, ideal para uma cabana de verão, é um banheiro que produz adubo. Como você sabe, o composto é um excelente fertilizante orgânico para as plantas.
O fertilizante natural nunca será supérfluo, e a tecnologia especial permite que você o produza em um ritmo acelerado a partir de quase nada.

O banheiro está equipado com um poço de compostagem. É melhor se houver dois deles, para que seja possível usá-los alternadamente, enquanto o composto amadurece.
Os caroços são projetados de tal maneira que é possível extrair facilmente o fertilizante acabado. Essa funcionalidade adicional atrairá aqueles que se preocupam com o meio ambiente.
Sutilezas da escolha dos materiais de construção
Quando a decisão sobre o tipo de design do banheiro é tomada, você precisa escolher o material que será usado na construção. A escolha do material de construção é importante, mesmo na fase de desenvolvimento do desenho.
Mais frequentemente usado:
- uma arvore;
- tijolo;
- metal
Estes são materiais familiares para um residente de verão, com o qual quase todo mundo sabe como lidar.
Opção 1 - um banheiro de madeira simples e confiável
Quando se trata de construção de chalés de verão, são apresentados vários edifícios de madeira.
Tábuas e madeira de madeira macia de baixo custo, mas fortes o suficiente e duráveis são fáceis de obter, e equipamentos complexos não são necessários para o trabalho. Em casos extremos, você pode trabalhar com madeira, mesmo sem o uso de uma ferramenta elétrica.

Se você deseja tornar o banheiro não apenas prático e funcional, mas também um elemento decorativo completo em sua casa de campo, tente construí-lo a partir de uma casa de madeira. Você precisa mexer por muito mais tempo, mas o resultado vale a pena.
Um banheiro rural não é o ambiente mais favorável. Uma árvore pode apodrecer e desmoronar se não for tratada com ferramentas especiais. A impregnação anti-séptica é um pré-requisito para a construção de um lavatório a partir de madeira.
A construção de uma casa de banho usando a tecnologia de estrutura inclui vários estágios tradicionais:
Opção 2 - construção de capital de tijolos
As vantagens dos edifícios de tijolos sobre os de madeira são conhecidas por todos, desde a história de três leitões.
Além da durabilidade, o banheiro de tijolos tem baixa condutividade térmica, o que é importante se você for ao chalé na estação fria. O banheiro de tijolos parece uma casa com um telhado único ou de duas águas. Windows pode ser projetado.

O design desse banheiro inclui não apenas um desenho da parte aérea do banheiro, mas também a fundação. Nesse caso, não será possível ficar sem uma fundação, pois o peso morto de um prédio de tijolos é bastante grande.
Sem apoio, o solo logo será compactado e ceder, o que causará rachaduras nas paredes do vaso sanitário.
Opção # 3 - vaso sanitário de metal
O metal é um material com um alto coeficiente de condutividade térmica. Em um armário de chapas de metal, será insuportavelmente quente no verão e muito frio no inverno.
Sem o uso de materiais de isolamento térmico, um banheiro de ferro no país só pode ser um projeto temporário - até a construção do banheiro principal.

É difícil conseguir o aperto das juntas de um material tão fino e flexível. Haverá lacunas nos cantos através dos quais a casa soprará vento, o que também não agrega conforto.
Se você aplicar a tecnologia moderna e usar um painel sanduíche como material de parede, poderá obter um banheiro completamente confortável. Como aquecedor, é montada espuma ou lã mineral.
Também recomendamos que você estude nosso material sobre como construir banheiro no país faça você mesmo.
Desenhos prontos e esquemas de um vaso sanitário de madeira
Quando você decidir o material da parte aérea da casa de banho, você precisará desenvolver desenhos para descobrir quanto material é necessário. É importante detalhar todo o elemento para não perder nada de importante. Para não reinventar a roda, você pode encontrar um desenho pronto.
Na maioria das vezes eles usam esses modelos de casas para o banheiro:
- cabana;
- elesok;
- casa de passarinho.
O esquema de construção de um banheiro de madeira no país é selecionado com base em considerações práticas.
No. 1 - esquema da "cabana" com dimensões e descrição
Uma cabana de lavabo é um projeto compacto e econômico. Todos os elementos estruturais têm uma forma geométrica simples, que acelera o processo de construção e simplifica a construção do desenho.

Comece com a fachada e a parede traseira do banheiro. Eles fazem uma moldura em forma de triângulo com vários reforços de altura. O comprimento da viga transversal é de 150 cm, a largura das hastes verticais é de 15 cm, o passo entre as hastes intermediárias é de 30 a 40 cm.
A altura dos postes de canto é 177 cm, o intermediário - 287 cm. Os elementos inclinados neste desenho são selecionados com 312 cm de comprimento.

O desenho da parede frontal é caracterizado por as colunas verticais estarem a uma distância maior uma da outra. Isso ocorre devido à necessidade de instalar a porta da frente.
A distância entre as barras verticais dependerá do design da porta. Uma abertura de 70 cm de largura é geralmente adequada e um teto é instalado na parte superior da abertura, a uma altura de 2 m 15 cm.
As demais dimensões geométricas do próprio quadro coincidem com as dimensões do desenho da parede traseira.

As paredes são conectadas por vigas longitudinais, cada uma com 122 cm de comprimento. Outra viga de 150 cm de comprimento é colocada no meio e o projeto da estrutura principal de suporte está pronto.
Prossiga para o dispositivo do pedestal. Sua altura é selecionada de acordo com os desejos do residente de verão. O tamanho médio adequado na maioria dos casos é de 50 cm.
Instale 2 postes verticais de meio metro no nível dos postes intermediários verticais da parede traseira. Conecte os elementos verticais com barras transversais. Seu tamanho também é de 50 cm.

Esses tamanhos são adequados para banheiros de tamanho médio. Vale ressaltar que a altura útil do interior é de 2,15 M. Nesse caso, a altura total do edifício será de 3,5 m.
Isso se deve ao fato de as inclinações do telhado serem conectadas em um ângulo muito agudo. A uma altura de 2,15 m, o teto é costurado, para que o banheiro fique mais quente e confortável. Leia mais sobre o processo de construção desse banheiro. além disso.
No. 2 - um desenho de uma "casa de passarinho" com uma mesa cortada
Uma forma arquitetônica mais complexa é um vaso sanitário de campo. Esta opção é mais comum.Os desenhos mostram que as paredes laterais têm a forma de trapézios retangulares e as partes traseira e dianteira são retângulos.

Para que a árvore não se molhe e não se deteriore com o contato constante com o solo, recomenda-se que o banheiro seja levemente levantado.
Coloque corrediças especiais para a base, com cerca de 12 a 15 cm de altura.O desenho mostra que a parede traseira é mais curta que a frente. Na parte de trás, a altura do banheiro é de 2,08 m, e na frente, de 2,78 m.

Assim, com um comprimento de construção de 1,72 m, a inclinação do telhado será de cerca de 22 graus. A largura da "casa de passarinho", construída de acordo com este desenho, será de 1,45 m.
Solução de projeto com isolamento:

Cada parede é projetada e fabricada separadamente e, em seguida, elas são interconectadas em um modelo espacial do banheiro. Cada uma das paredes é retratada em detalhes em folhas separadas do desenho.
Uma nuance muito importante é o plano para cortar tábuas. Esta adição simplifica bastante a construção.

Atenção particular às dimensões de elementos individuais:

Parede oposta sem janela:

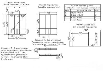
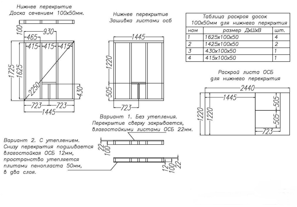
Além das paredes, você precisa cuidar do teto. Nesse caso, apenas um andar é usado - no fundo do vaso sanitário. O desenho mostra a moldura deste elemento e as tábuas de corte de mesa.
Além disso, existe um plano para cortar uma folha OSB padrão com a qual o piso possa ser costurado.

É necessário considerar o isolamento:

Desenho do sistema de vigas:

A tabela de materiais ajuda a fazer uma estimativa.

A tabela de materiais demonstra que o banheiro do país no projeto será finalizado com tapume do lado de fora. A cobertura é a critério do cliente. Muitas vezes usado ardósia ou papelão ondulado, bem como material de telhado ou telha.
Projetando um banheiro de tijolos com desenhos
A base para um vaso sanitário de tijolos pode ser um meio-fio de concreto armado mais fundo, ou blocos de concreto localizados nos cantos da estrutura.
Uma pequena cabine padrão com uma área de parede de 8 quadrados exigirá cerca de 300 tijolos para construir. O cálculo é aproximado e muito exagerado, mas para uma compreensão geral do processo, essas informações são suficientes.

Para esse volume de alvenaria, é necessário projetar cerca de 60 kg de cimento para preparar a argamassa. As dimensões do vaso sanitário de tijolos podem ser obtidas a partir do desenho do banheiro da casa de pássaros.
Se as paredes de madeira são feitas separadamente, uma casa de verão com tijolos é arrumada em ordem em todo o perímetro.
Argamassa de cimento leva tempo para ganhar força. Se você dispor todas as fileiras de alvenaria de cada vez, as inferiores terão uma grande carga, sob a ação da qual a solução não curada simplesmente se espremerá de todas as costuras.
Para evitar que isso aconteça, a alvenaria é realizada em várias etapas. Idealmente - 4-5 linhas por dia. A construção será adiada, mas o resultado será muito melhor.

O telhado pode ter um tom único, como no caso de uma latrina de casa de pássaros de madeira e empena. Dependendo disso, o layout da malha do caibro muda. Eles cobrem o banheiro com a mesma lousa, papelão ondulado ou outros materiais de revestimento.
Além dos tipos listados de armários, há um artigo em nosso site sobre como projetar e construir banheiro com chuveiro. Isto é especialmente verdade se o território da área suburbana não for muito grande.
Conclusões e vídeo útil sobre o tema
Como projetar um banheiro de madeira no SketchUp:
O desenvolvimento do projeto e dos desenhos do banheiro do país não é uma tarefa fácil, apesar do tamanho modesto do edifício.
Siga as instruções acima e construir uma cabana de verão de qualquer complexidade parecerá mais fácil do que nabos no vapor. O principal é abordar o trabalho com responsabilidade e uma parcela de entusiasmo saudável.
Se você já conseguiu montar um armário sozinho em uma cabana de verão, compartilhe sua experiência com nossos leitores. Para comentários, você pode anexar fotos de desenhos, cálculos e construções concluídas. Também no bloco com comentários, você pode fazer suas perguntas sobre o tópico do artigo.

Na construção de uma instalação tão importante, aconselho você a não economizar. Inicialmente, ele deve ser usado apenas no verão. De fato, será útil no inverno, como, por exemplo, conosco, porque muitas vezes eles começaram a ir ao país o ano todo. Por isso, construí um banheiro de tijolos: não é tão frio como em uma estrutura de madeira. Temos uma fossa, e bastante profunda (porque será problemático conduzi-la e esvaziá-la).
Eu aconselho você a decidir sobre o local antes da construção, o banheiro deve estar localizado a uma distância do poço ou do poço de água. Além disso, você precisa pensar sobre o design da fossa e como esvaziá-la. Bem, planeje com base no gosto e na carteira. Eu construí um vaso sanitário de madeira em forma de cabana em uma casa de campo, depois de abrir um poço impressionante.
Curiosamente, esse teórico que forneceu os desenhos com o corte - ele construiu pelo menos um desenho? Em todos os lugares há uma placa de 5 cm de espessura! Resta aconselhar o material - carvalho. E então, idealmente, a implementação do conselho não é para salvar ... O que, a polegada usual, que é amplamente usada para isso, não é suficiente ?! Deve haver racionalidade em tudo, mas em uma extensão como aqui ... Bem, sim, agora você pode inventar muitas bobagens - é mais forte, ainda mais quente, mais confiável que não desmorona.
Nas aldeias não há nenhum tipo e não havia. Onde você viu as duas seções "M" e "F"? ) Na aldeia - uma necessidade)