DIY kablolama: elektrik işlerinin düzgün yapılması
Anahtarın değiştirilmesi veya prizin günlük yaşamda bağlanması çoğu kez yeterlidir, bu nedenle herkesin ev elektrik sistemine bakım yapma konusunda en az asgari becerilere sahip olması gerekir.
Elektrik kablolarının kurulumunu kendi elinizle nasıl yapacağınızı, PUE kurallarına odaklanarak ve güvenlik önlemlerini gözlemleyerek anlamaya çalışacağız. Ayrıca bu makalede, bir proje tasarlamanın özelliklerini, bir eve elektrik getirme kurallarını ve güvenilir bir tel bağlantısının inceliklerini ele alacağız.
Makalenin içeriği:
Bir ev kablolama cihazı için ne gereklidir?
Her şeyden önce, elektrik şebekesinin yapısını anlamalısınız. Birbirine ve çeşitli kablo ve tellerin güç hattına, elektrik cihazlarına, koruyucu cihazlara ve devre kesicilere ve toprak döngüsüne bağlı elektrik noktalarından oluşur.
Telleri ve kabloları karıştırmayın. Birincisi, tek ve çok çekirdekli olabilen dahili kablolama iletkenleri, ikincisi ortak bir koruyucu kılıfla bağlanan birkaç teldir.

Kablolar yere, su altına, beton yapılara monte edilebilir; güçlü cihazlar veya özel koruma bağlamanız gerekiyorsa, elektrikli ev cihazları için de kullanılırlar.

Tel teller elektriği iyi ileten metallerden oluşur: bakır ve alüminyum.
Bakır, çeşitli nedenlerden dolayı daha değerli bir malzeme olarak kabul edilir:
- yüksek akım yoğunluğuna sahiptir;
- aşınma direnci ve kırılma tokluğunda farklılık gösterir;
- oksidasyona karşı daha az direnç gösterir;
- Alüminyum gibi büzülmez, bu nedenle eklemlerde boşluk oluşturmaz.
Dahili sabit kablolama için, çok çekirdekli analoglardan daha güçlü ve daha güvenilir olan tek çekirdekli bakır kabloların kullanılması önerilir.

Elektrik işleri için kablo ve tel çeşitleri:
- VVG (1,5 mm² ila 10 mm² arası) ve analogları NYM - her ikisi de çok işlevlidir;
- PVA - bağlantı elemanlarını bağlamak için;
- PV1 - elektrik panoları için;
- PV3(6 mm²) - kontrol sisteminin montajı için.
VVG çeşitleri de yararlı olabilir: VVG-P (Düz) VVGng (A), VVGng (A) -LS ve diğerleri
Kablo veya kablo seçimine ek olarak, elektrikli cihazların güvenli kullanımını garanti eden topraklama sistemlerini anlamak önemlidir. Özel bir evde, bir topraklama döngüsünün kurulumu zorunludur; kentsel dairelerde, bir küvet ve ev aletleri genellikle topraklanır.
Birkaç katı kural vardır: örneğin, topraklama kablolarını metal iletişimlere bağlayamaz veya elektrik panelinde bağımsız çalışma yapamazsınız.
RCD'lerin ve devre kesicilerin montajı ve elektrik panosundaki herhangi bir kurulum işi, en iyi onayları olan kalifiye elektrik teknisyenlerine devredilir. Yükü doğru bir şekilde belirleyebilecek ve alma devre kesici.
Kablolama Yönergeleri
Daire içi veya ev içi kablo tesisatı tasarlamak, yeterlilik gerektiren sorumlu ve karmaşık bir konudur. Kabloları, anahtarları ve soketleri takmak için birçok ilke ve norm vardır.
İşte bunlardan sadece birkaçı:
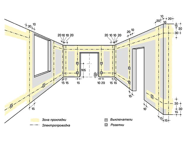
- kablolamayı gruplara ayırmak daha iyidir - prizler, aydınlatma, vb., güçlü elektrik mühendisliği için bireysel hatları vurgulamak;
- çizimde güçlü enerji tüketicilerinin (fırın, klima, çamaşır makinesi) güç noktalarını ve kurulum yerlerini belirtmek gerekir;
- çıkışların yeri yerden 0,3 m ila 1 m arasındadır;
- anahtarların optimum montaj yüksekliği yerden 0.8-1 m'dir;
- daha fazla prizden daha iyi - uzatma kablosu gerekmez;
- ayrı bir proje - düşük akım sistemi için (parazitlere karşı korumak için, kablolar güç hatlarından ayrı olarak en az 0,5 m girintiyle çekilir);
- banyo anahtarları koridor vb.
Kabloların kendisini doğru şekilde döşemek çok önemlidir - iç veya dış (açık / kapalı tip). Kendinizi tanımanızı öneririz elektrik tasarım kuralları özel bir evde.

Bağlantı şeması saklanmalıdır, onarım çalışmaları sırasında kullanışlı olacaktır.
Kendi deneyiminiz veya becerileriniz hakkında şüpheleriniz varsa, uzman elektrikçilerle iletişime geçmek daha iyidir. Basit bir layman'ın deneyimsizliği nedeniyle dikkate alamadığı birçok küçük ama önemli nüansa aşinadırlar.
Deneyimli bir tasarımcı yetkin bir şekilde bir bağlantı şeması çizecek, ÇYP'nin standartlarını ve gereksinimlerini dikkate alacak, hesaplamalar yapacak, uygun nominal değere sahip ekipmanı seçecek ve sonunda tüm sorumluluğu üstlenecektir. Bağımsız tasarım ve kurulumda, sahibin hatalara cevap vermesi gerekecektir.
Güç tüketimi önemli mi?
Tasarıma ek olarak, evde tüketilen güç gibi bir anı hesaba katmak gerekir.
Çok katlı bir apartmanda, genellikle standartlaştırılmıştır, ancak ayrı bir kulübede, belgeleri onaylamadan önce, elektrik tedarikçisinden ne tür bir tahsis kapasitesi talep edeceğinizi bilmeniz gerekecektir.

Toplam güç tüketiminin bireysel kapasitelerin toplamı olduğunu varsaymak bir hatadır. Ağdaki tüm cihazların eşzamanlı olarak dahil edilmesi aslında gerçekleşmez, bu nedenle hesaplanırken eşzamanlılık katsayısı gibi bir değerin kullanılması gerekir.
Soketler için maksimum 0,2'dir, yani aynı zamanda genellikle güç noktalarının% 20'sinden fazlası dahil değildir.
Eve elektrik girme kuralları
Özel hanehalkları için, elektriğin eve girmesi gibi bir konu önemlidir. Genellikle kendi kendini destekleyen bir SIP kablosu kullanılarak gerçekleştirilir.
İletim hattı desteği evden 25 metreden daha az yer alıyorsa, destek için ek direkler gerekmeyecektir.

Giriş Gereksinimleri:
- 25 m'den daha uzun bir tel uzunluğuyla, ek destekler gereklidir (eve en yakın direğe, bir kalkan takılabilir ve toprağa yakın bir topraklama devresi derinleştirilebilir);
- destekler arasındaki tel gerginliği - yerden en az 2 m yukarıda;
- tel bina yapılarını geçerse, koruyucu bir boruya monte edilir;
- binanın bağlantı noktası için yerden minimum mesafe 2.75 m'dir;
- telin kontrol odasından yeraltındaki eve uzatılması planlanıyorsa, koruyucu bir kılıf içine ve daha sonra en az 0.7 m derinliğe sahip bir hendekte yerleştirilmelidir.
Bir yeraltı kurulumunu seçerken, inşaat sürecinde doğrudan binaya girişin öngörülmesi gerektiği açıktır.
Kablo Bağlantı Kuralları
Pratik nokta tellerin bağlantısıdır. Bağlantı / montaj kutuları veya doğrudan terminaller veya bükülme yoluyla gerçekleştirilir.

Alçı veya duvar kağıdının altındaki dağıtım kutularını gizlemek risklidir - onarımlar için astarı çıkarmanız gerekecektir. Bu bağlamda, bazı elektrikçiler, soket ve anahtarlar için montaj kutuları ile kabloları bağlamak için başka bir yöntem uygulamaktadır.
Bu yöntemin avantajı, artan kablo tüketiminin çıkarılmasıyla bağlantı noktalarına serbest erişimdir.
Isı büzüşmesi, aydınlatma hattının montajı için çıkış hattındaki telleri bağlamak için kullanılır - Wago terminalleri yay mekanizması ile.
Buna ek olarak, birçok kullanım klemensler, sıkma ve geleneksel lehimleme.
Kollu sıkma prosedürünü düşünün:
Bu, pres penseleri, manşonları ebatları, bir brülör ve ısıyla büzüşen malzeme gerektiren tellerin kendinden montajının en basit ve en etkili yollarından biridir.
Telleri bağlama yöntemlerinin ayrıntılı bir analizi burada incelendi.
Kurulum Talimatları
Elektrik işlerinin çoğunu kendiniz yapabileceğiniz seçeneklerden birini düşünün. En zor konular için uzmanlarla iletişime geçmeniz gerekecek, ancak kablolama için kanallardan bağımsız olarak yudumlayabilir veya soketleri anahtarlarla bağlayabilirsiniz.
Aşama # 1 - Elektrik tesisatı
Proje zaten bir merdiven, seviye (lazer veya kabarcık), inşaat şerit ölçüsü, işaretlemeler yaptığımız işaret yardımıyla tamamlandı - doğrudan karayollarının döşeneceği sıva / beton levha üzerine yatay ve dikey çizgiler çiziyoruz.

"Temiz zemin seviyesi" olarak adlandırılan yatay seviyeyi, yani bitiş zemin kaplaması olan zemini yenerek başlamalısınız. Priz ve anahtarlara olan mesafe ölçülür.
Enerji hattı tavandan yaklaşık 0,3 m uzağa döşenmiştir, düşük akım hattı yarım metre altına yerleştirilebilir. Kurulumun sövelerin yanına planlanması önerilmez.

Güçlü elektrikli cihazların kurulum yerlerini (tercihen ana özelliklerle), shtrob'un genişliğini işaretlediğinizden emin olun, geçiş yerlerini bina yapılarından geçirin.
İşaretleme işlemlerinin sonunda, odalardaki duvarlar, zeminler ve tavanlar parlak ve net işaretlerle orijinal çizimlere dönüşmelidir.
Aşama # 2 - Duvar yontma
Düz kaplamanın başarısının yarısı doğru araçtır:
- elektrikli süpürge ile donatılmış shtroborez;
- darbeli matkap (darbe enerjisinin en az 15 J olması arzu edilir), aynı üreticinin matkapları, kuronları, matkapları;
- taşlama, beton tekerlekleri;
- keski;
- bir çekiç.
El aletleri ulaşılması zor alanlarda ve mücevher hassasiyetinin gerekli olduğu yerlerde kullanışlıdır.
Sonra, işaretlemeyi takip ederek, kapıyı yapıyoruz:
Aleti uzak tutmadan, çakmaların kablonun kalınlığına uygun olup olmadığını ve kesik soketlerin montaj cihazlarının boyutlarına uygun olup olmadığını kontrol ederiz.
Her şey yolundaysa, tüm girintileri ve nişleri fırça ve fırçalarla temizler, kalıntıları temizler, tozu siler ve çalışma yüzeyini derin bir penetrasyon bileşiği ile astarlarız.
Aşama # 3 - Montaj işi
Elektrik kablolarını takmak için biraz daha fazla araca ihtiyacınız var: striptizci, pense, tel kesiciler, kabloları kesmek için özel bir bıçak, dielektrik saplı tornavidalar, tel sıkma için maşa, gösterge tornavida, lehim saç kurutma makinesi, test cihazı, tornavida, macun bıçağı ve alçı kabı.

Ardından, kalkana en yakın olanlardan başlayarak gövdeyi döşeyin. Kabloların uzunluğunu hesaplarken, 0,2 m'lik montaj ve dağıtım kutularındaki serbest bırakmaları dikkate almayı unutmayın.
Kabloların bir kısmı, tasarımda belirtilmişse, koruyucu oluklu tüplere yerleştirilir. İç stresi kışkırtmamak için telleri bükmeye çalışıyoruz.

Daha sonra, alabaster çözeltisi (alçıtaşı) ile sabitlenir, ancak tüm uzunluk boyunca değil, noktasal olarak sabitlenirler. Montaj fikstürlerinin aralığı 0,5 m, ancak virajlarda ve köşelerde - virajdan 0,1 m.
Kabloyu tavana döşemek için her zaman oluklu bir boru kullanılır ve özel klipslere monte edilir (süspansiyon yapısının sonraki kurulumunu dikkate alarak).
Aşama # 4 - Montaj kutularının montajı
Temel prensipler, aşağıdaki sırayla gerçekleştirilen tek bir montaj kutusu takma örneği ile anlaşılabilir:
- bağlantı “kulaklarını” bir bıçakla çıkarın;
- boyutların uygunluğunu kontrol ediyoruz;
- oluklu tel ile kutudaki istenen deliğe yerleştirin (delikli olarak kesilmiş);
- küçük bir uç (1 cm) bırakarak aşırı oluklamayı kesin;
- kutuyu alçıta sabitliyoruz: girintiyi su ile nemlendiriyoruz, hızla alçı uyguluyoruz, kutuyu yerleştiriyoruz ve düz bir nesne ile (örneğin seviye) bir süre tutuyoruz;
- Kutuya giren alçıları ıslak bir parmakla çıkarın.
2 ila 5 montaj kutusu monte edildiğinde, sağlamlık ve muntazam dağıtım için sert bir çerçeve, örneğin bir alüminyum köşe kullanılır.
Aşama # 5 - Çıkışların Bağlanması
Kabloları ve kutuları monte ettikten sonra, soketleri sırayla bağlarız. Anahtarlarla çalışma, bir aydınlatma sistemi tasarlama sürecinde gerçekleştirilir.
Topraklama olmadan tek bir prize bağlama örneği:
2 veya daha fazla çıkış varsa ne yapmalı? Kesinlikle aşağıdaki şemaya göre bağlanıyoruz:

Mantıksızlık nedeniyle bir loopback bağlantısının - bir prizden diğerine - çıkarılması önerilir.
Çıkışları çeşitli şekillerde bağlamak için ayrıntılı talimatlarımız var. Bunlar aşağıdaki makalelerde tartışılmaktadır:
- Soketlerin seri ve paralel bağlantısı: bir halka ve bir yıldız
- Çift çıkış nasıl bağlanır: bir sokete çift çıkış takma
- Bir muhafazada anahtarlı bir soket: anahtarlı bir soket nasıl bağlanır
Aşama # 6 - aydınlatma sisteminin kurulumu
Aydınlatma sistemi telleri asma tavanların montajından önce veya montajı sırasında monte edilir.
Aşağıdakileri yapmanız gerekir:
- güç hattına bir, iki, üç anahtarlı anahtar bağlayın (amaca ve işlevlere bağlı olarak);
- gerekirse, anahtarları monte edin ve içinden geçirin;
- lambaları (spot ışıkları, aplikler, avizeler, vb.) takın ve anahtarlara bağlayın.
Anahtarı takmak için, genellikle arka duvarda bulunan devre şemasını ve kablolar için genel olarak kabul edilen renk kodlarını kullanmanızı öneririz.

İki tuşlu anahtar arasındaki temel fark, biri ortak, diğeri ayrı olan 3 bağlantıya sahip olmasıdır. Yani, bağlandığında, iki telli bir tel çalışmaz, sadece üç telli bir tel. Bu durumda, ortak kontağa bir faz bağlanır.
Aşama # 7 - Elektrik panosu cihazı
Bir elektrik panelini monte etmek için bir uzman kiralamak daha iyidir, çünkü deneyim ve bilgi gerektiren karmaşık bir çalışmadır. Devre kesiciler ve RCD'ler, anma gücü sadece profesyonel bir elektrikçi tarafından hesaplanabilen, panonun metal kasasında bulunur.
Sadece tüm elektrik sisteminin doğru çalışması değil, aynı zamanda dairenin kiracılarının güvenliği de doğru montaja bağlıdır. Elektrik panosunun montajı hakkında ayrıntılı bir brifing düşünülmektedir. bu makalede.

Ortak panelleri olan apartman binalarında bağımsız olarak bakım işleri de dahil olmak üzere elektrik işleri yapmak kesinlikle yasaktır, bu yönetim şirketinden uzmanlar tarafından yapılır. Ölçüm cihazlarının çalışmasını kontrol ederler.
Kablolama sırasında güvenlik önlemleri
Kendinizi ve kazara yakın olanları korumak için, elektrik işleri sırasında aşağıdaki kurallara uyulmalıdır:
- Yalnızca servis yapılabilen ekipman kullanın - elektrikli aletler, el aletleri, uzatma kabloları.
- Çalışmaya başlamadan önce, otomatik makineleri ve RCD'leri kullanarak güç kaynağını kapattığınızdan emin olun. Sahadaki voltajın yanlışlıkla açılmasını önlemek için bir işaret asabilir veya komşuları uyarabilirsiniz.
- Sigorta için test cihazları ve gösterge tornavidaları kullanın.
- Alet saplarındaki yalıtımın düzgün olduğundan emin olun.
- Yalnız çalışmamaya çalışın - her zaman iş yerinde veya tıbbi yardıma ihtiyacınız olabilir.
Darbeli matkap, kovalayan veya güçlü bir matkapla çalışmak için ayrı kurallar geçerlidir. Koruyucu giysilere ek olarak, eldivenler (izole bir el ile) ve bir maske (solunum cihazı) gereklidir. Ayakkabılar ayakların etrafına sıkıca oturmalı ve kaymamalıdır.
Tavan altındaki kablolar sadece platformdan yapılmalıdır: sandalyeler veya masalar kategorik olarak uygun değildir.
Her profesyonel elektrikçi elektrik çarpması için ilk yardım kurallarına aşinadır, ancak maalesef sıradan insanlar her zaman doğru davranmazlar.

İdeal olarak, elektrik işlerinin yapıldığı herhangi bir odada, elinizde bir yangın söndürücü bulundurmak gerekir. Kıvılcım veya kıvılcım telleri suyla doldurulmamalıdır.
Konu hakkında sonuçlar ve faydalı video
Yararlı bir video izleyerek araçlar, teller ve çeşitli elektrikli cihazlarla nasıl çalışacağınızı ve planlı çalışmayı öğrenebilirsiniz.
Duvar yontma ve tavan montajı:
Kablolama ve koruma hakkında ilginç bir teori:
Çıkış bloğunun montajı:
Teller bağlandığında ve maskelenirken, bağlantı kutuları kapaklarla kaplandığında ve elektrik panosu tam donanımlı olduğunda elektrik işi tamamlanmış kabul edilir. Soketi değiştirebilir veya herhangi bir zamanda bir avize kurabilirsiniz - aydınlatma cihazlarının ve dekoratif elemanların montajı çoğunlukla işi bitirdikten sonra yapılır.
Ancak elektrikçi ile herhangi bir manipülasyonda, en önemli şeyi hatırlayın - insan yaşamının güvenliği.
Elektrik işlerini yapma konusunda önemli deneyime sahip misiniz ve evde elektrik kablolarının tasarımına ve kurulumuna bağımsız olarak dahil oldunuz mu? Tarafımızca verilen talimatlarda hata veya yanlışlıklar fark ederseniz, lütfen bu makalenin altındaki bloğa yorum bırakarak bize bildirin.
Yoksa sadece kurulum kurallarını mı okuyorsunuz ve bazı nüansları açıklığa kavuşturmak mı istiyorsunuz? Sorularınızı sorun - size yardımcı olmaya çalışacağız.

İlk şekil, tellerin yanlış bağlantısını gösterir - alüminyum, bükülerek bakıra bağlanır. Bakır ve alüminyum doğru bir şekilde kelepçe konektörleri veya dişli bir kelepçe ile bağlanır. Aksi takdirde, bu iki metal reaksiyona girmeye ve oksitlenmeye başlar ve zamanla temas yüzer hale gelir. Ve güçlü tüketicilerle (ev tipi bir kaynakçı) parıldamaya başlayacak, sonuç olarak temas yakında yanacak.
Ve resmin altındaki açıklamayı okumadınız mı? Böyle bağlanamayacağınızı söylüyor ...
Ayrıca gereksiz durumlardan kaçınmak için her zaman bakır ve alüminyum kabloları yalnızca terminallerden bağlayın. Elektrikli cihazların güç tüketimine ilişkin iyi bir tablo tuttum, elektrikli süpürgenin çok fazla enerji tükettiğini düşünmedim. Avizeyi, kablonun tavana geçtiği yere monte ederken, montajı kurarken içine girmemek için bir şekilde belirlemek mümkün mü?
İyi günler, Dmitry.
Soruyu cevaplıyorum, evin tuğla olduğunu varsayıyorum. Bu evlerde, plakanın alt düzlemi ile tellerin lambalara döşendiği silindirik boşluklar arasındaki mesafenin, avizelerin 30 milimetredir (plakanın kesitinin ekli ekran görüntüsü) olan zemin plakaları kullanılır. Bu parametre detaya inip delik açmayacağınızı belirlemenize yardımcı olur. Değilse, cihazı satın almanız gerekmez.
Aksi takdirde, ADA Wall Scanner 50'yi satın alın. Son basamak, canlı kablolamanın tespit edildiği derinlik sınırıdır. Bu arada, aynı zamanda bağlantı parçaları da buluyor. Hafif, sesli bir göstergeye sahiptir.
Ve yine de - telin amaçlanan alanına taşınan transistör alıcısının anteni, gerilimi "algılar" - alıcı karakteristik bir ses çıkarır.
MerhabaVasily ile hemfikirim, sadece bir avize için bir dedektör satın almak gerekli değildir, sadece herhangi bir elektrikçiyi arayın (zaman zaman resmi olmayan bir şekilde daha ucuz, bir arama için ücret almayın) ve kabloları ekipmanıyla çalmasını isteyin.