Climatiseur gainable sur gaine: subtilités de choix et d'installation
Un climatiseur gainable moderne avec ventilation forcée fournit non seulement une température confortable dans la pièce, mais aussi une ventilation. De plus, des modules supplémentaires du système de préparation de l'air vous permettent d'éliminer la poussière, de régler l'humidité de l'air.
Un ioniseur, un filtre ultraviolet biologiquement actif, s'intègre facilement au système. D'accord, il est très tentant de normaliser immédiatement le microclimat intérieur. Examinons de plus près le système de climatisation de canal.
Le contenu de l'article:
Caractéristiques des climatiseurs de canal d'appareil
Traditionnellement, l'air réfrigéré est fourni par les canaux dans les installations de production, les grands magasins, les bureaux et les navires. Cependant, les climatiseurs à ventilation forcée pour une maison ou un appartement sont installés moins fréquemment.
Cela est dû au fait que la version à cloison commune est plus facile à installer. Mais si vous souhaitez offrir les meilleures conditions climatiques dans les pièces, un système split ne suffira pas.
Par exemple, pour une pièce de 25 mètres carrés. 60 mètres cubes sont nécessaires. m d'air frais par heure. Même pour les systèmes de séparation murale coûteux avec ventilation forcée, ce paramètre est deux fois moins élevé. Il est impossible d'intégrer des filtres efficaces supplémentaires, des humidificateurs dans les modules muraux. C’est pourquoi seulement systèmes de canaux.

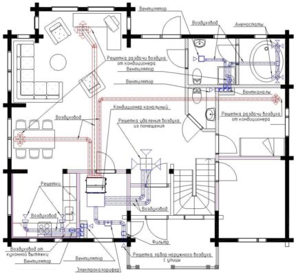
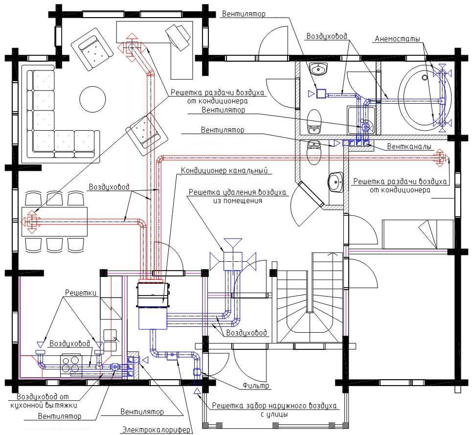
Le climatiseur à canal se compose de deux unités. Dans la rue, une unité avec compresseur est installée. Un évaporateur avec un circuit d'échange de chaleur est placé dans l'espace inter-plafond ou dans la buanderie.
Ils installent un climatiseur gainable entre le faux plafond et le plafond, dans le dressing ou dans la buanderie. L'unité d'alimentation est installée là où les sons provenant du fonctionnement de l'équipement ne créeront pas de problèmes.Pour cette raison, le bruit dans les pièces à vivre est beaucoup moins pendant le fonctionnement du système de canaux, par rapport à tout autre type de climatiseur.
Le flux d'air refroidi est réparti entre les pièces le long des conduits d'air isolés cachés dans l'espace inter-plafond. En plus du refroidissement, le système de conduits peut fournir de l'air frais dans les volumes requis.
D'accord, cette approche est optimale. Pas besoin de mettre la grille sur les fenêtres, la quantité de poussière dans la pièce est réduite, il est plus facile de régler l'humidité relative.

Comme vous pouvez le voir, l'utilisation d'un climatiseur de type monocanal est suffisante pour refroidir toutes les pièces d'un appartement, d'une maison, d'un bureau ou d'un magasin.
Il suffit de calculer correctement les proportions d'échange d'air, de sélectionner l'unité de puissance du refroidisseur de la puissance requise, de planifier l'intégration des unités de traitement d'air supplémentaires.
La climatisation
La première chose à laquelle vous devez faire attention est production de chaleur. Selon ce paramètre, un appareil est sélectionné en fonction du volume de toutes les pièces à refroidir.
Deuxième moment - la pression de l'air. Les longs conduits avec des coudes résistent au flux d'air. Plus les canaux sont longs, plus la pression d'air que vous devez créer est grande. Distinguer les systèmes basse pression (jusqu'à 50 Pa), moyenne pression (jusqu'à 100 Pa) et haute pression (de 100 à 250 Pa).
Des blocs d'une pression de 100 Pa conviennent à un appartement. Certains modèles ont un pressostat. C'est pratique, car vous pouvez régler la pression en fonction du conduit existant, peu compte tenu des paramètres des canaux.
Le moment suivant est air frais. Tous les climatiseurs gainables ne fournissent pas ventilation de la pièce. L'unité de ventilation d'alimentation est équipée de radiateurs. Ils préparent l'air de la rue pendant la saison froide.
De l'air froid doit également être chauffé afin d'éviter la formation de condensation sur les parois des conduits.
Puissance de chauffage - Un autre paramètre important à considérer lors du choix de l'équipement. Dans les régions du sud, une unité avec ventilation forcée de 5 kW convient pour un appartement de quatre pièces.

Si vous prévoyez d'installer un filtre supplémentaire dans le canal, vous devez choisir un climatiseur avec une pression d'air de 15 à 30% supérieure au paramètre recommandé.
Détermination des paramètres d'équipement nécessaires
Au tout début est déterminé puissance de climatisation. En pratique, ce paramètre est repris du passeport du climatiseur de tout système. Ensuite, une proportion est établie en tenant compte des autres volumes des locaux.
Par exemple, un système mural divisé d'une capacité de refroidissement de 3,5 kW fournit un refroidissement de la pièce jusqu'à 40 mètres carrés. m. Pour un appartement de 120 mètres carrés. m. une unité d'une capacité de trois fois plus, 28-30 kW, sera nécessaire.
Le calcul rapide présente des inconvénients. Des facteurs tels que l'éclairage solaire des fenêtres, les méthodes d'ombrage des pièces et le degré d'isolation thermique des murs et des plafonds ne sont pas pris en compte. L'erreur peut être compensée par une petite marge dans le paramètre considéré.
La pression d'air requise est plus difficile à calculer. Pour ce faire, esquissez canalisation. Branchement, la longueur totale des canaux est déterminée. Tenez compte de la résistance des filtres supplémentaires, des systèmes d'ionisation de l'air.
En outre, vous devez également tenir compte de la quantité d'air frais. Habituellement, ils mélangent 20 à 30% de l'air de la rue.

Toutes les données sont transférées à un ingénieur qui connaît les caractéristiques des climatiseurs gainables d'un modèle particulier. Après avoir regardé le croquis des canaux, le spécialiste sélectionnera un système avec une pression d'air suffisante.
En règle générale, pour quatre chambres d'une superficie totale de 140-200 mètres carrés. Les modèles avec une pression d'air de 100 Pa conviennent.
Quel conduit est le meilleur?
Les conduits d'air passent rarement exactement comme indiqué dans la documentation ou les croquis. Parfois, vous devez contourner le faisceau, souvent les distances sont indiquées avec une erreur. De telles erreurs n'ont pas beaucoup d'importance si un tuyau ondulé est utilisé. Il est moins cher que les gaines à parois lisses, il est plus facile à monter.
Mais il y a aussi des inconvénients. Les canaux flexibles s'affaissent entre les points de suspension. Au lieu de fixation, la pince comprime le tuyau, réduisant la section transversale du canal. Tout cela et la surface ondulée des parois de l'ondulation offrent une résistance significative au flux d'air. Une situation peut se produire lorsque le flux d'air vers le radiateur de l'unité intérieure sera insuffisant.
Dans ce cas, l'automatisation fonctionnera et éteindra le compresseur. Ainsi, il est préférable d'utiliser des conduits de tuyaux à parois lisses. Ils offrent non seulement moins de résistance au flux d'air, mais deviennent également moins pollués. Oui, et nettoyez-les beaucoup plus facilement.
De plus, l'isolation des canaux est un facteur important influençant non seulement l'efficacité du système de climatisation, mais également la réduction du bruit dans les pièces. Un conduit en acier galvanisé est beaucoup plus facile à isoler qu'un tuyau ondulé flexible.

Séparément, nous notons que le polymère pour la ventilation ne convient pas. Les tuyaux en matériaux polymères ont un coefficient de dilatation thermique 10 fois supérieur à celui de l'acier. Pour cette raison, le polymère est difficile à assortir avec les structures de support en acier. Et l'odeur du plastique ne peut être exclue.
Installation de climatisation
Manière la plus simple monter les conduits et blocs - confier l'installation de l'équipement à une organisation spécialisée qui garantit la qualité du travail dans le contrat.
Mais même ainsi, il sera nécessaire de contrôler un certain nombre de points:
- le projet devrait comprendre des panneaux facilement amovibles pour un accès rapide aux filtres et aux unités du système de préparation de l'air;
- la fixation du climatiseur gainable, l'alimentation en ventilation, les conduits ne doivent pas entraîner de vibrations du plafond suspendu. Les éléments d'appui doivent être réalisés séparément, sans utiliser de profil de structure de suspension. Ensuite, le système fonctionnera en silence;
- Les vannes électriques doivent être accessibles après la fin des travaux.
Lors de l'installation du système de drainage du climatiseur gainable, les éléments doivent être vérifiés et comparés à ceux spécifiés dans les instructions du fabricant. Sinon, une fois le système éteint, de l'eau peut pénétrer dans la pièce, ce qui est pertinent pour les systèmes à haute pression.
Que considérer lors de l'installation?
Pour conduire les canaux, un foret diamant spécial de grand diamètre sera nécessaire. Les trous d'un diamètre supérieur à 200 mm ne peuvent pas être réalisés avec un perforateur conventionnel dans les panneaux.
Vous pouvez marquer les renfoncements vous-même. Invitez ensuite des spécialistes avec une foreuse au diamant (si un tel équipement n'est pas à la ferme), ils feront des trous rapidement, sans déranger le bruit des voisins.

S'il y a suffisamment d'expérience, vous pouvez acheter des conduits d'air prêts à l'emploi et les combiner en un seul système, ou vous pouvez commander la fabrication de conduits d'air selon des croquis commandés dans un atelier travaillant avec de l'étain.
Les boîtes ou conduits ronds en acier galvanisé sont fabriqués sur des machines, des joints roulants. Il sera utile de vérifier chaque article à la réception du kit.
Compte tenu de toutes les recommandations de l'article, un artisan expérimenté peut réaliser lui-même le reste du travail.
Il est utile de respecter les instructions:
- L'unité intérieure du climatiseur doit être placée dans des bureaux ou dans le grenier, si la température de l'air ne descend pas en dessous de 10 ° C. Sinon, l'unité doit être isolée.
- À la jonction des canaux, des accélérateurs sont installés. La section transversale totale des trous dans les inductances doit être de 20 à 30% plus grande que la section transversale du conduit d'entrée.
- Pour réduire le bruit dans les systèmes avec une pression supérieure à 150 Pa, un silencieux est installé à la sortie de l'unité intérieure - une courte section du conduit avec une section plus grande que la ligne principale.
- L'unité extérieure est montée soit sur le toit du bâtiment, soit sur le mur. Après l'installation, des experts sont invités. Ils vérifieront l'étanchéité des connexions et rempliront le système de réfrigérant.
- Lors de la planification des travaux d'installation, tenez compte des termes de la garantie. Souvent, l'installation d'un climatiseur à canal n'est requise que par les représentants officiels du fabricant.
Le fonctionnement du climatiseur est affecté par des surtensions. Un stabilisateur de tension ou au moins une coupure doit être fourni.
Conclusions et vidéo utile sur le sujet
Dans la vidéo, ils montrent des systèmes de conditionnement de canaux et parlent du fonctionnement de la ventilation:
La climatisation canalisée avec un système de ventilation d'alimentation offre de meilleures conditions climatiques dans la pièce que les systèmes split traditionnels.
Si vous étudiez les instructions du fabricant et suivez les conseils de professionnels, vous pouvez éviter les erreurs lors de l'installation d'un climatiseur gainable. Une partie du travail complexe devrait être confiée à des spécialistes et le reste devrait se faire de manière indépendante. Dans le même temps, le coût d'installation de l'équipement sera comparable à l'installation de systèmes de séparation murale dans chaque pièce séparément.
Avez-vous de l'expérience en installation de climatisation et de ventilation dans un appartement ou une maison? Quelles difficultés avez-vous rencontrées? Veuillez partager les informations dans les commentaires de notre article.
