Disposition de la ventilation des tuyaux d'égout: la construction de conduits à partir de produits polymères
Une ventilation bien faite dans une maison privée est la clé d'un microclimat sain et confortable dans les locaux résidentiels et la durabilité des structures du bâtiment. Convenez que le budget joue également un rôle important. Si dans un bâtiment solide, vous avez besoin d'un système coûteux, alors dans une maison d'été, il est le plus souvent facultatif.
Les conduits de ventilation de l'appareil utilisent une variété de matériaux. Parmi eux, l'acier galvanisé recommandé par SNiPs, les produits en polymère et en amiante, l'ondulation, la maçonnerie, les blocs de béton et de céramique. Cependant, dans les chalets, la ventilation des tuyaux d'égout est construite plus souvent que les options énumérées.
Nous parlerons des avantages et des inconvénients d'une telle solution. Nous vous présenterons les options testées dans la pratique pour sa mise en œuvre. Les artisans indépendants trouveront de précieuses recommandations sur la construction d'un réseau de ventilation.
Le contenu de l'article:
Tuyaux d'égout: avantages et inconvénients
Il semblerait que vous faites de la ventilation, achetez des tuyaux de ventilation. De plus, les magasins proposent une large sélection de différents fabricants. Cependant, à y regarder de plus près, il s'avère que les tuyaux de ventilation en plastique à similitude externe sont 2, voire 5 fois plus chers que les tuyaux d'égout.
Tout d'abord, c'est bien sûr la couleur. Le plus souvent, les tuyaux de ventilation sont réalisés en blanc, ce qui est certainement plus esthétique dans le cadre d'une intégration interne à l'intérieur. La couleur des tuyaux du ventilateur est grise. Cependant, cet avantage n'est pas significatif si le conduit de ventilation passe à travers le mur, est cousu avec un conduit ou simplement peint dans la couleur des murs.

Regardons le matériau de fabrication.Les tuyaux en plastique qui sont ventilés, cet égout sont constitués de:
- chlorure de polyvinyle (PVC);
- polypropylène (PP);
- polyéthylène (PET ou HDPE, LDPE).
Autrement dit, tous les avantages des produits en plastique sont inhérents aux deux pipelines:
- légèreté;
- facilité d'installation;
- une variété d'accessoires;
- étanchéité;
- surface intérieure lisse;
- résistance aux chocs;
- insensibilité à tout type de processus de corrosion;
- résistance aux environnements agressifs;
- propriétés antibactériennes;
- isolation électrique;
- durabilité.
Un grand nombre de raccords pour la création de canalisations, à la fois d'égout et de ventilation, vous permet de poser des systèmes de différentes configurations.

Nous avons énuméré les avantages, abordons maintenant les lacunes. Dans l'ensemble, ils sont également communs à tous les pipelines en plastique. Le principal inconvénient est la combustibilité. Conformément aux règles de sécurité incendie, aucun matériau inflammable dans les conduits de ventilation ne doit être utilisé.
Lors de la pose tuyau en plastique de tous les tuyaux, le propriétaire de la maison reçoit un canal d'incendie avec un excellent tirage constant dans toute la maison. C'est pourquoi, aux fins de la sécurité incendie, en particulier pour les maisons en bois, il y a toujours une recommandation: matériaux incombustibles - étain, galvanisé, céramique, béton, maçonnerie.

Certaines difficultés dans la construction du système de ventilation entraîneront des différences de diamètre des tuyaux. Tous les systèmes de ventilation standard sont affûtés pour des diamètres de 100 mm, 125 mm, 150 mm, 200 mm. Et ce sont les conduits d'air, les raccords, les fixations et, surtout, pour les systèmes forcés - les équipements de ventilation (ventilateurs).
Les diamètres standard des tuyaux d'égout sont: 110 mm, 160 mm, 200 mm. Autrement dit, ils ne coïncident pas avec le diamètre de l'équipement de ventilation.

Ainsi, pour créer un système de ventilation naturelle à tous égards (sauf pour la combustibilité), les tuyaux et raccords d'égout conviennent. Cependant, si vous devez accoster avec un conduit de ventilation existant ou si vous prévoyez d'utiliser des ventilateurs et d'autres équipements de ventilation, vous devrez résoudre ce problème.
Si la différence de diamètre est de 1 à 2 mm, vous pouvez simplement mettre l'appareil sur le scellant. Si la différence est plus importante, vous devrez acheter un accouplement de la bonne taille pour rejoindre la paire. Une autre différence que les fabricants soulignent tuyaux de ventilation - la possibilité d'électrifier les pipelines de ventilateur.

Lorsque le flux d'air se déplace sur la surface intérieure du tuyau, une charge électrique statique apparaît qui attire la poussière.
De plus, cela est vrai lorsque l'appareil hottes dans la cuisinelors de la combustion, la suie, les particules d'huile dans l'air sont aspirées dans la ventilation. Tout cela se dépose sur la surface intérieure des tuyaux et coke de poussière, rétrécissant le diamètre du passage de travail.
Les fabricants de tuyaux de ventilation utilisent un traitement antistatique dans leur fabrication. Cependant, si vous y réfléchissez, dans le cas de la cuisine, il est peu probable qu'un agent antistatique aide, mais dans une ventilation normale, il n'y a pas tellement de dépôts de poussière.

En tout cas, il n'y a pas de photos terrifiantes sur les forums propriétaires consacrées à ce problème avec des passages complètement bouchés par la poussière et la saleté. Par conséquent, cet aspect peut être attribué au domaine du marketing des histoires d'horreur.
Exigences du système de ventilation
Les exigences pour le système de ventilation d'une maison privée sont universelles, c'est-à-dire qu'elles ne dépendent pas des matériaux à partir desquels il est monté.
La ventilation naturelle des conduites d'égout devrait fournir les volumes d'air suivants:
- pour locaux résidentiels jusqu'à 20 m² - 3 mètres cubes par heure et par personne;
- pour un local résidentiel de 30 m² et plus - 30 mètres cubes d'air par heure et par personne;
- pour les cuisines équipées de cuisinières électriques - plus de 60 mètres cubes;
- pour les locaux techniques dans lesquels se trouve une chaudière à gaz - 140 mètres cubes;
- chaufferie avec générateur de chaleur au gaz naturel - renouvellement 3 fois;
- pour le bain et les toilettes - 25 mètres cubes par heure;
- Blanchisserie, séchage - 90 mètres cubes par heure;
- garde-manger, dressing - multiplicité 0,2;
- étude, bibliothèque - 0,5 volume par heure.
Lorsque vous utilisez des tuyaux d'égout, vous devez prendre en compte:
- le plastique a une plage de températures de fonctionnement assez limitée - pas plus de 70 degrés, donc les tuyaux d'égout ne peuvent pas être utilisés pour la ventilation des saunas, des bains, des ateliers;
- compatibilité avec les ventilateurs et autres équipements par diamètre de joint;
- le plastique est instable, c'est-à-dire il peut se dilater lorsqu'il est chauffé et revenir à sa taille précédente lors du refroidissement, vous devez donc prévoir la présence de sections de compensation, par exemple, à partir de l'ondulation;
- la nécessité d'une installation dans certains domaines de l'isolation (dans le grenier);
- combinaison de canalisations de ventilation avec des éléments de toit pour une installation sur le dessus de la couverture de toit.
Pour appareil système de cave forcée, dans le grenier ou le grenier, dans les locaux d'habitation, les cuisines et les salles de bain, des calculs sont effectués en tenant compte des performances des ventilateurs et autres équipements.
Calcul des tuyaux pour l'installation de ventilation
Lors du calcul pour créer un système de ventilation efficace, 2 tâches sont résolues:
- la productivité de l'ensemble du système est calculée;
- la quantité requise de matériaux est calculée.
Tout d'abord, le diamètre requis des conduits en plastique est calculé pour toutes les sections.
Pour déterminer la section transversale des conduits de ventilation, les actions suivantes sont effectuées:
- le volume des locaux est calculé en fonction des dimensions linéaires de chacun: hauteur, longueur, largeur (les données sont multipliées);
- les données reçues sont résumées;
- la quantité d'air nécessaire est déterminée pour le remplacement en 1 heure dans les salons, une chaufferie, une chaufferie et des salles de bains. Pour un calcul rapide, vous pouvez accepter la norme: mise à jour du volume total d'air dans les bâtiments résidentiels une fois par heure;
- le résultat est arrondi à un plus grand nombre;
- le diamètre des conduits est déterminé par le tableau, en tenant compte de la vitesse du flux d'air et de leur volume.
Pour installer la sortie d'air de la cuisine et de la chaufferie, vous devez utiliser des tuyaux d'un diamètre de 150 mm ou 200 mm.

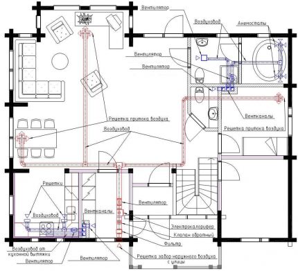
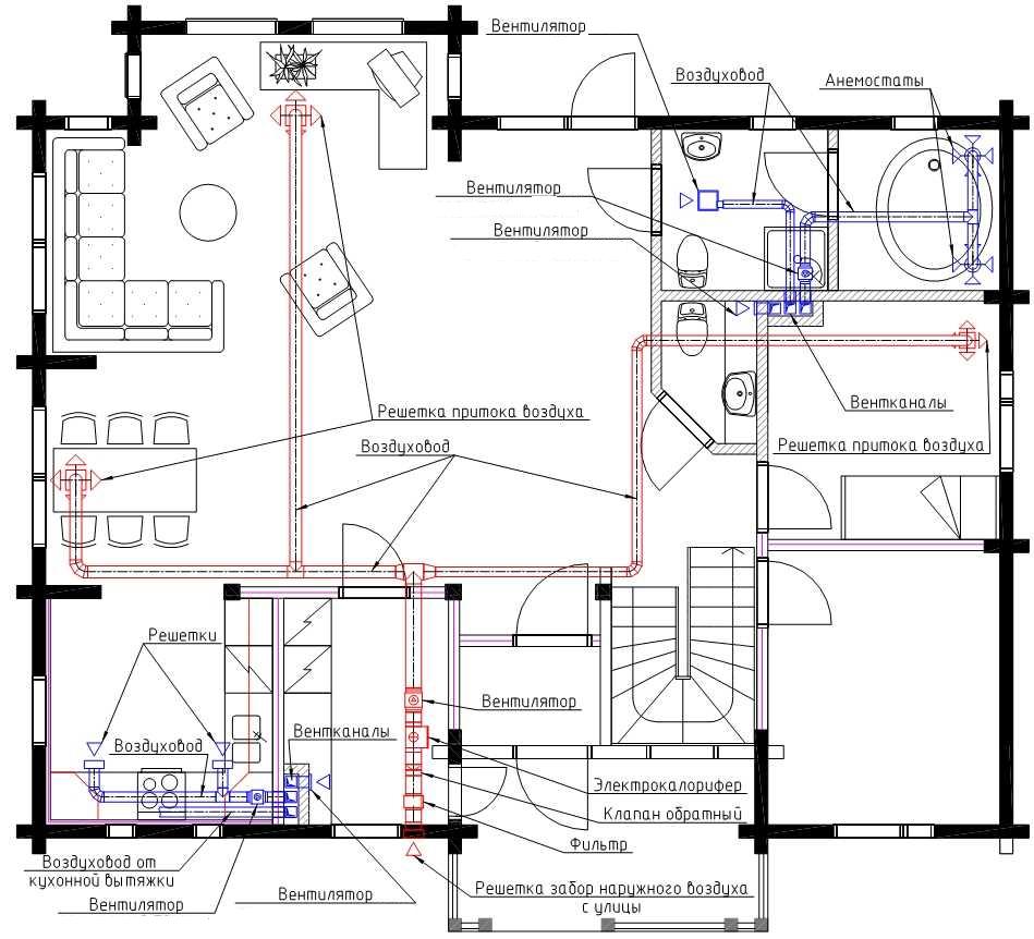
Caractéristiques de l'appareil de ventilation d'une maison privée
Dans les maisons privées, les systèmes de ventilation naturelle sont disposés beaucoup plus souvent - ils sont moins chers et plus faciles. Souvent, un seul élément peut être noté pour l'élimination forcée des gaz d'échappement - hotte, avec les calculs de l'appareil qui nous familiariseront avec l'article recommandé.
Alors, comment organiser le mouvement des flux d'air, par exemple, dans une maison à un étage:
- Les vannes automatiques doivent être installées dans les profils de fenêtre ou dans les murs extérieurs, car les fenêtres modernes sont étanches à l'air.
- Entre la cuisine et la salle de bain (si elles sont à proximité) dans la cloison a immédiatement placé un bloc de 3 puits verticaux menant à travers le grenier jusqu'au toit.
- Pour le passage de l'air sous les portes intérieures, des espaces jusqu'à 1 cm de large sont aménagés. S'il n'y a pas d'espace, les grilles d'admission sont montées près des portes ou dans le battant de porte.
- La hotte est connectée à un canal séparé. En plus de la fonction principale, il effectue un supplément - prend une partie de la charge - peut éliminer jusqu'à 100 mètres cubes d'air. Cela peut être pris en compte lors du calcul du diamètre des tuyaux pour la ventilation de la cuisine.
- 2 puits séparés mènent à la cuisine et à la salle de bain.
- En raison du tirage naturel dans ces 2 canaux, l'air des quartiers d'habitation se précipitera dans le couloir, et de celui-ci vers les grilles d'échappement.
À l'avance, vous devez faire un plan détaillé de pose des autoroutes et des virages. Les conduits doivent être posés le long du chemin le plus court entre l'entrée d'air et l'échappement. Sur le schéma, les ouvertures d'échappement dans les murs et les passages à travers le plafond, les points d'ancrage doivent être marqués.
Les conduits de ventilation doivent avoir un minimum de coudes et de branches, et la hotte doit être placée strictement verticalement. La longueur des sections horizontales ne doit pas dépasser 3 mètres et les conduits d'air doivent en outre être fixés avec des attaches.

Pour un appareil de ventilation naturelle, la hauteur du conduit d'évacuation doit être d'au moins 5 m. Sinon, la traction sera faible. Sinon, les ventilateurs devront être installés dans les canaux des étages supérieurs, ce qui traduira le circuit en un circuit combiné, c'est-à-dire type partiellement mécanique.
L'entrée d'air frais peut être:
- infiltration - à travers les fenêtres, les fentes, les ventilateurs dans les systèmes de fenêtres;
- contrôlée - grâce à des systèmes de contrôle du climat.
Un conduit d'évacuation est généralement placé à 250 mm sous le plafond.
Fonctions d'assemblage du système
Pour obtenir une plus grande étanchéité, il est plus pratique d'assembler les canaux en blocs, puis de les monter en blocs assemblés. C'est uniquement une question de commodité de construction. Il est préférable de commencer la pose avec l'installation de canaux individuels dans la cuisine, dans la salle de bain ou dans la salle de bain.

Les trous dans les planchers sont faits pour que le tuyau puisse facilement entrer en place. Initialement, le trou avec le tuyau peut être fixé avec un chiffon, puis la fixation est fixée avec une mousse de montage.
Les raccords de tuyauterie couramment utilisés sont:
- tés (sur les sections interface / branchement du système);
- flexions et genoux (dans les zones de virages de canal);
- adaptateurs (lors du raccordement de tuyaux de différentes sections).
Installation de verrouillage des ventilateurs clapets anti-retour, les récupérateurs sont effectués avant la fixation définitive des évents. La fixation définitive aux structures avec des attaches ou des pinces est réalisée après assemblage de l'ensemble du site. Avant de resserrer les pinces pour la dernière fois, le système est vérifié pour son fonctionnement.
Exigences d'agrégation de liens
Le canal de cuisine ne peut pas être combiné avec d'autres. Ne combinez pas un conduit d'évacuation de cuisine avec hotte. La hotte doit avoir son propre conduit. Dans de nombreux modèles modernes de hottes de cuisine, une unité à distance est installée dans le grenier.
Seuls les mêmes types de canaux sont combinés - il s'agit d'une salle de bain, d'une salle de bain, de locaux techniques et d'une buanderie. Vous pouvez combiner les tuyaux d'échappement de plusieurs salles de bain, mais avec l'installation de clapets anti-retour pour empêcher le transfert des odeurs d'une toilette à l'autre.

Il n'est pas recommandé de disposer des conduits de ventilation dans les murs extérieurs - de la condensation s'y formera en raison de la différence de température. Lors de la connexion tuyaux et raccords en polymère il est préférable de sceller en outre les sites d'installation du brassard avec du silicone pour une plus grande étanchéité et durabilité des joints.
Il n'est pas souhaitable de poser des conduits dans les murs porteurs intérieurs. Ils vont certainement affaiblir considérablement les structures sur lesquelles une charge considérable est répartie.
Aucun conduit de ventilation ne peut être conduit dans la cheminée. Si le canal des tuyaux en plastique passe près de la cheminée, l'installation d'un écran thermique en matériau incombustible sera nécessaire.
Passage de conduits de ventilation à travers le toit
L'option la plus simple à faire sortie du tuyau de ventilation à travers le toit - tirez-le à travers la crête. Pour les toits en pente, la meilleure solution serait d'installer un tuyau de ventilation près de la crête.
Quelle doit être la hauteur du tuyau de ventilation:
- s'il est situé à côté de la fumée, il doit être égal à sa hauteur;
- sur un toit plat, elle devrait s'élever de plus d'un demi-mètre;
- si le tuyau est à un mètre et demi de la crête, il doit être d'un demi-mètre ou plus au-dessus de la crête;
- si le tuyau est situé d'une crête à une distance de 1,5 mètre à 3 mètres, il doit être à une hauteur au ras de la crête;
- si elle est à plus de 3 mètres de la crête, elle peut être inférieure à la crête, la hauteur est déterminée en construisant un dessin avec un angle de 10 degrés par rapport à la crête;
- de la tête du tuyau de ventilation à la fenêtre la plus proche doit être d'au moins 3,5 mètres.
Plus précisément, la hauteur du tuyau peut être calculée par son diamètre. Toutes les données nécessaires se trouvent dans le tableau ci-dessous.

Le moyen optimal de sortir plusieurs conduits à travers le toit est de les combiner en un conduit de ventilation. Il peut accueillir jusqu'à 6 tuyaux.
Il est beaucoup plus facile de réaliser et de sceller une ouverture dans le toit pour une structure verticale commune que de couper plusieurs trous pour la sortie de tuyaux ronds.
Pour que les tuyaux de la rue ne gèlent pas dans les systèmes d'alimentation et d'échappement, ils sont gainés d'isolant et doublés. De plus, les tuyaux dans un grenier non chauffé ou traversant des pièces non chauffées sont nécessairement isolés. Des matériaux hygroscopiques sont utilisés pour l'isolation thermique: laine minérale, isolant polyuréthane ou polyéthylène.
Aujourd'hui, l'isolation en polyéthylène est très populaire. Le polyéthylène expansé est une coque-coque finie pour les tuyaux. Pour les isoler, il suffit de les mettre sur le tuyau et de les coller le long de la couture. Certains fabricants produisent également une isolation en mousse à base collante.

Après la pose de l'isolation thermique, la fixation finale aux poutres porteuses ou à la structure du toit est effectuée.Après la fixation finale, un déflecteur ou tout autre dispositif de protection est installé sur le toit pour protéger l'embouchure des tuyaux de ventilation de l'eau atmosphérique, de la suspension poussiéreuse, des branches transportées par le vent et d'autres contaminants.
Étapes de montage du système de ventilation
La séquence d'assemblage du système de ventilation:
- Marquage - sur les murs et les plafonds a marqué les lieux de passage de la communication avec les points de montage des appareils.
- Montage des appareils sur des emplacements pré-marqués.
- Collecte d'une colonne montante à évent commun.
- Collection de conduits d'air individuels de l'intérieur.
- Installation de conduits semi-assemblés et de contremarche.
- Connexion des branches du système de ventilation.
- Composés d'étanchéité.
- Installation de ventilateurs, vannes et autres dispositifs qui augmentent la traction.
- La sortie des tuyaux à travers le toit.
- Isolation des sections de conduits dans les pièces non chauffées.
Ainsi, la construction d'un système de ventilation à partir de tuyaux d'égout ne présente pas de différences fondamentales avec l'installation de systèmes de ventilation à partir de tuyaux spéciaux - ventilation.
Conclusions et vidéo utile sur le sujet
Un exemple d'assemblage d'un système de ventilation dans une vidéo:
La vidéo suivante présentera les détails de la construction d'un système de ventilation dans une maison privée:
Le problème de l'utilisation de tuyaux d'égout pour le système de ventilation d'une maison privée est dû à leur coût abordable, leur bonne étanchéité et leur facilité de montage. La ventilation par bricolage des tuyaux d'égout en plastique ravira les résidents de la maison avec leur efficacité et leur durabilité pendant longtemps.
Vous voulez partager votre propre expérience dans la construction d'un système de ventilation à partir de tuyaux d'égout ordinaires? Avez-vous des informations utiles et des subtilités technologiques qui peuvent être utiles aux visiteurs du site? Veuillez laisser des commentaires dans le bloc ci-dessous, poser des questions, publier une photo sur le sujet de l'article.

