Pompe à eau haute pression: principe de fonctionnement, types, règles de sélection et de fonctionnement
Les habitants des villages de banlieue dont les territoires ne sont pas reliés aux autoroutes centrales d'approvisionnement en eau résolvent le problème de l'approvisionnement en eau en mettant en place des systèmes autonomes. Dans la mise en œuvre de la tâche, une pompe à eau haute pression joue un rôle clé. Son travail principal est de stabiliser la pression dans le système.
Nous vous dirons quel assortiment de pompes à eau le marché propose et selon quels critères choisir l'équipement. Nous vous présenterons les principaux fabricants du segment. Ici, vous découvrirez les caractéristiques de conception de la technologie qui sous-tend la division en espèces.
Pour une perception claire de l'information, nous avons complété le texte avec des diagrammes utiles, des collections de photos et des guides vidéo.
Le contenu de l'article:
But et types d'unités
Peu importe où l'eau est prélevée - de la masse d'eau la plus proche, un puits spécialement équipé, eh bien, elle peut être automatiquement alimentée sur le site à l'aide d'une pompe conventionnelle.
Mais pour le fonctionnement normal des appareils électroménagers pression d'eau dans le système doit être d'au moins 2,5 atmosphères et en même temps ne pas dépasser 6 atmosphères. Et ce paramètre ne peut être atteint qu'en installant un système de maintenance à pression constante. À cette fin, utilisez une variété d'options pour les pompes à haute pression pour l'eau.
Quand faut-il une pompe haute pression?
Instrument d'amélioration et de soutien pression de l'eau dans un système autonome utilisé lorsque la pression est si basse qu'il n'est pas possible d'utiliser de l'eau pour le fonctionnement des appareils électroménagers.
L'installation de la pompe est acceptable, mais pas particulièrement recommandée pour stabiliser les paramètres de pression dans le circuit de l'appartement, si les résidents connaissent une véritable pénurie d'eau.

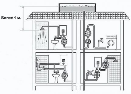
L'utilisation de l'appareil sera pertinente si pression du système n'est pas supérieure à 1 - 1,5 atmosphère. L'appareil de petite taille peut être installé à la fois sur une canalisation commune et sur la sortie d'une unité domestique séparée. Par exemple, en se connectant à un tuyau qui alimente en eau une chaudière ou une machine à laver.
Dans le premier cas, vous devrez acheter un appareil puissant avec de bonnes performances, dans le second vous pourrez le faire avec l'installation d'une petite pompe automatique de faible puissance.
Le fonctionnement de l'unité peut être assuré par:
- Commande manuelle - suppose un fonctionnement continu de l'appareil, indépendamment du fait que l'eau soit actuellement fournie, mais à condition que l'appareil soit éteint manuellement par la force. Ils sont utilisés dans l'aménagement de "planchers chauds", où le maintien de la pression dans les circuits de chauffage au bon niveau est constamment requis.
- Mode automatique - l'appareil est mis en marche par un système d'automatisation, par exemple à l'ouverture de la grue. Le fonctionnement est régulé par un capteur de débit spécial: au moment de fermer le robinet, la pompe cesse de fonctionner.
La fonction principale du système de réglage est d'allumer l'unité lorsque la pression baisse et de l'éteindre lorsqu'elle atteint le paramètre défini. Après tout, l'abaissement de la pression dans la conduite et son augmentation excessive détruisent les joints des tuyaux et ont un effet néfaste sur le fonctionnement des appareils électroménagers.
Mesures alternatives de surpression
Cependant, l'installation d'une pompe conçue pour stimuler la pression sera complètement inutile si la source a un faible débit. Cela n'aidera pas, et si le système est bloqué de temps en temps. La solution optimale dans cette situation sera l'utilisation d'une station de pompage auto-amorçante.
La station de pompage est équipée sur la base de la même catégorie de pompes équipées ou non d'injecteurs. En plus complété par un accumulateur hydrauliquedestiné à l'approvisionnement en eau. Extérieurement, il ressemble à un réservoir ordinaire, seule une membrane en caoutchouc avec de l'air est posée à l'intérieur. Gère un ensemble d'équipements et d'appareils d'un pressostat d'eau.

L'installation d'une station de pompage auto-amorçante est également efficace lorsque la pression dans le sous-sol de la maison est normale, mais elle n'est pas du tout située au-dessus.
À l'avenir, l'eau accumulée pourra être consommée indépendamment de la présence d'eau dans le système, ce qui est particulièrement important en cas d'interruptions fréquentes de son alimentation. Un inconvénient important de telles installations est la conception encombrante en raison de la présence d'un réservoir hydraulique et du bruit de l'équipement pendant le fonctionnement.
Au lieu d'un réservoir hydraulique, vous pouvez utiliser un réservoir de stockage conventionnel dans lequel l'eau s'accumulera pendant la période de livraison avec une pression normale.Vous pouvez l'installer sur un survol élevé ou sur le toit de la maison, et pendant les interruptions, utilisez la réserve.

Types et action des pompes haute pression
Avant de décider d'installer un dispositif de pompage stimulant, l'état du pipeline doit être évalué. Il est possible que le déficit de pression soit dû à des tuyaux obstrués par des sédiments. Si vous ne pouvez sortir d'une situation difficile qu'en installant l'appareil, vous devez vous familiariser plus en détail avec leurs spécificités techniques.
Le principe de fonctionnement des pompes haute pression, quel que soit le type de corps de travail et le type de construction, est le même. Le dispositif en cours de fonctionnement de l'unité de travail crée un espace de vide à l'intérieur de la cavité, grâce auquel l'eau est absorbée.

En vente sont des modèles de type universel, adaptés à l'eau de toute température, et ceux qui ne peuvent être utilisés que dans des environnements froids ou chauds.
Il existe deux types d'unités selon la méthode de refroidissement d'un moteur en marche: avec un rotor sec et avec un rotor humide.
Unités de rotor sec
Les modifications avec un rotor sec sont difficiles à confondre avec des homologues humides. Ils ont une forme asymétrique avec un net avantage en direction de la partie puissance de l'appareil. Le fait est que son moteur est équipé d'un dispositif de refroidissement à palettes, car il n'est pas lavé au cours du travail par l'eau.
En raison de la forme asymétrique et du déplacement de l'axe vers le moteur, les modèles «secs» sont équipés de dispositifs en porte-à-faux pour une fixation supplémentaire sur le mur.

En raison du fait que le moteur de ces modèles est séparé de la partie hydraulique à la fin de l'axe par un joint d'huile, ils servent beaucoup plus longtemps que ceux «humides». Certes, le produit d'étanchéité, comme le roulement, a tendance à s'user et doit être remplacé périodiquement.
Pour cette raison, les unités équipées d'un rotor sec nécessitent un entretien plus fréquent et une lubrification régulière des pièces frottantes. Un autre inconvénient est que les appareils «secs» sont bruyants, donc le lieu de leur installation doit être soigneusement étudié.
Dispositifs de rotor humide
Les unités en circulation nécessitent un refroidissement en raison de l'eau pompée. Dans ce cas, le rotor de l'appareil est placé dans un milieu aqueux et est isolé par un volet étanche du stator.
Les unités à rotor humide se distinguent par de faibles émissions sonores. Pompes de circulation avec un rotor humide sont conçus pour équiper les systèmes de chauffage, mais sont souvent utilisés pour les systèmes d'alimentation en eau pour le chauffage des locaux résidentiels.

Les paliers lisses utilisés dans l'assemblage de l'ensemble ne nécessitent pas d'entretien supplémentaire. Cependant, les pompes «humides» servent moins et perdent au profit des unités «sèches» selon les paramètres de la pression générée. Il y a des restrictions dans le sens de l'installation - c'est possible exclusivement horizontalement.
Un inconvénient important de ce type de pompe est sa vulnérabilité lors du travail avec de l'eau sale, dont les inclusions étrangères peuvent désactiver l'appareil.
Division par la méthode de création d'une chambre à vide
Le mécanisme de fonctionnement de ce type d'appareil est basé sur la réaction de déplacement. Le processus de pompage est effectué sous l'influence du redimensionnement de la chambre de travail. L'amplitude du vide résultant dépend directement du degré d'étanchéité de la chambre de travail.
La quantité de vide peut être ajustée.Pour cette raison, la pression à certains endroits du système peut augmenter ou, au contraire, diminuer.

L'arbre est un outil de travail de premier plan du mécanisme. La roue équipée de pales effectue des mouvements de rotation. Sous l'action des pales se déplaçant en cercle, le liquide situé dans la chambre de travail est capté. En tournant, une force centrifuge se forme. Elle conduit également à la formation d'un anneau liquide. L'espace vide formé à l'intérieur de l'anneau est un vide.
Selon les méthodes de création d'une chambre à vide, les pompes à haute pression pour l'eau sont centrifuges, vibratoires et à vortex.
Dispositifs de type centrifuge
Centrifuge pompe pompes - le type le plus courant de dispositifs de pompage pouvant fournir une haute pression dans le système. Ils pompent l'eau en raison de la rotation de la roue fixée à l'intérieur du carter en forme de spirale. La roue est constituée de deux disques fixés entre lesquels les aubes sont fixées dans le sens opposé à l'écoulement du fluide entrant.

Dans le processus de rotation, une force centrifuge se forme, ce qui stimule le déplacement des écoulements d'eau depuis le centre de la chambre, le pliant en sections distantes. Pour cette raison, le niveau de pression au centre de la roue rotative est réduit et l'eau commence à s'écouler à l'intérieur du boîtier.
Les appareils centrifuges dans la plupart des versions sont équipés d'accumulateurs hydrauliques. Ils sont connectés à des conduites sous pression à l'aide de tuyaux de différents diamètres.

L'équipement de type centrifuge est capable de fournir une alimentation en eau ininterrompue à haute pression. La seule condition de fonctionnement est que lorsque l'unité est démarrée, il est nécessaire de remplir le boîtier avec de l'eau. La variété centrifuge a ses limites: elle ne peut pas pomper de l'eau à plus de 8 m de profondeur, mais en complément du système de surpression de plusieurs pompes et réservoirs, elle convient parfaitement.
Pompes électromagnétiques à vibrations
Le principe de fonctionnement des pompes à vibration repose sur la capacité d'un aimant à s'attirer alternativement sur lui-même puis à libérer le piston d'ancrage en tandem en raison de l'action du courant alternatif. Changer la polarité de l'armature fait des mouvements alternés. En une seconde, la position de l'ancre peut changer plusieurs dizaines de fois.

En raison des vibrations vibratoires, l'eau est d'abord aspirée dans la chambre de travail, puis poussée à travers la valve dans le tuyau de refoulement.L'unité vibrante peut être associée à une pompe centrifuge ou pomper une alimentation en eau dans un réservoir de stockage.
Modèles de pompes Vortex
Dans la cavité du logement de ces unités se trouve un disque plat équipé de lames fixes radialement. La rotation de la roue avec des pales périphériques crée ainsi un vide.

Les appareils Vortex sont réputés pour leur puissance d'aspiration élevée. Ils n'ont pas peur de la présence de bulles d'air dans l'eau. Mais ils sont vulnérables à la présence de particules en suspension dans un liquide et ont donc une portée limitée. Étant donné que les vortex se décomposent rapidement lors du pompage de l'eau sale, ils ne sont pas recommandés pour une utilisation dans l'aménagement de puits de sable et de puits.
Principaux fabricants et modèles populaires
Parmi les marques mondiales de confiance les plus populaires, il convient de souligner:
- "Grundfos" - La société danoise s'appuie sur des pompes qui ont un système de fonctionnement en circulation, qui diffèrent en petits volumes.
- "CatPums" - Une caractéristique des équipements fabriqués sous cette marque est la faible pulsation des mécanismes à la pression la plus élevée.
- "Wilo" - L'entreprise allemande est spécialisée dans la production de petites stations de pompage équipées d'accumulateurs hydrauliques intégrés.
- "Sprut" - Une caractéristique des pompes pour augmenter la pression de cette marque est l'exigence de pureté et de température de l'eau.
Les fabricants listés ci-dessus fabriquent leurs produits selon une technologie éprouvée qui garantit la fiabilité des équipements de pompage. Ils sont protégés contre les surcharges, les cycles et la marche à sec.
La gamme de prix des modèles de pompes à faible puissance varie entre 30 et 50 cu Des modèles plus productifs équipés d'un système d'automatisation peuvent être achetés dans la région de 70-100 cu Les stations de pompage coûteront environ 80-150 cu

Parmi les modèles du segment des prix moyens, ils ont fait leurs preuves:
- "Sprut 15WBX-8" - une conception unique avec un rotor sec a une capacité de 480 l / h avec une consommation d'énergie de 90 watts. Un petit appareil de petite taille est placé directement sur le tuyau.
- Euroaqua 15WB-10 - l'unité électrique vortex résiste facilement à un liquide contenant de l'air ou du gaz.
- Cristal 15GRS-10 - le modèle est réputé pour sa faible consommation d'énergie et son rendement élevé, il se caractérise par la possibilité de chauffer le débit d'eau à un indicateur de 65 degrés.
N'économisez pas et n'achetez pas de faux chinois. Réparer leurs maîtres ne sont pas pris. Les fabricants peu scrupuleux les assemblent de telle manière que la défaillance d'un élément individuel entraîne immédiatement la nécessité d'un remplacement complet de l'unité.
Caractéristiques du choix de l'équipement
Lors du choix pompe à pression Il convient de se concentrer sur un certain nombre de paramètres.
Détermination des performances de l'unité
Ce paramètre dépend de la tâche assignée à la pompe et du débit d'eau requis. Lors du calcul de la consommation totale d'eau, les besoins des ménages et des ménages sont pris en compte, en se concentrant sur les indicateurs totaux de la consommation maximale d'eau de tous les points de consommation fonctionnels pour une unité temporaire.

Les performances des pompes dans le segment des prix moyens sont suffisantes pour augmenter la pression d'au moins 1-1,5 atmosphère. Si cela ne suffit pas, le système est complété par des pompes de surpression ou engrenages stabilisateurs de pression.

Lors du choix d'une unité, il faut également tenir compte du moment où la productivité du dispositif de pompage ne dépasse pas la productivité du puits ou du puits. Sinon, avec un vidage rapide de la source et sa reconstitution intempestive, l'équipement fonctionnera simplement «à sec». Et cela peut conduire à sa panne.
Pression de tête recommandée
Ce paramètre définit la hauteur en mètres à laquelle l'unité peut soulever l'eau. Lors de la détermination de la pression requise, il faut tenir compte de la distance horizontale de l'alimentation en eau et des pertes de pression standard pendant le transport à travers le pipeline.
Si ce paramètre est calculé selon une formule simplifiée, alors sa valeur est prise égale à un dixième de la longueur totale du tronc horizontal. Par exemple, un dixième de la longueur d'un tuyau raccordé à la pompe d'irrigation espaces verts.
Par exemple, lors de l'équipement d'un puits d'une profondeur de 10 mètres pour alimenter en eau une maison située à 12 mètres de la prise d'eau, à condition qu'il soit placé à une hauteur de 4 mètres du sol, la tête de l'unité est calculée en additionnant les valeurs: 10 + 4 + (12:10) = 15,2 mètres.
Mais pour obtenir des calculs plus précis, il faut également prendre en compte le diamètre de la canalisation et la perte de pression lors du levage de l'eau à travers les tuyaux, ainsi que son passage dans les coudes et les nœuds. Après tout, avec une pression insuffisante, la pression de sortie sera faible. Pour cette raison, lors de l'organisation des systèmes d'admission d'eau, des pompes sont sélectionnées pour maintenir la pression dans le système entre 2 et 6 bars.

Lors du choix de l'équipement, il convient également de considérer:
- plage de température de fonctionnement;
- niveau de bruit créé pendant le fonctionnement.
Des modèles électriques et des unités à carburant liquide sont en vente. Les premiers sont alimentés uniquement par le secteur. Ils peuvent être biphasés et triphasés. Les seconds - sont équipés d'un moteur à combustion interne. Ils utilisent du carburant diesel ou de l'essence comme carburant.
La présence d'un système d'automatisation augmente considérablement le coût des équipements. Mais le prix élevé des mécanismes automatisés avec un haut niveau de protection électrique est entièrement rentable, car les appareils de ce type répondent plus subtilement aux situations changeantes et consomment moins d'électricité.
Conclusions et vidéo utile sur le sujet
Revue vidéo de la pompe pour augmenter la pression:
Une variante de l'agencement du système utilisant une installation qui augmente la pression de l'eau:
La gamme d'équipements de pompage est présentée sur le marché dans une large gamme. Mais les experts recommandent de l'acheter dans les magasins de l'entreprise. Ils vous aideront à choisir la meilleure option, en fonction des conditions techniques de l'installation et vous fourniront un service de garantie, ce qui est particulièrement important lors de l'achat d'équipements coûteux.
Vous voulez parler de la façon de choisir une pompe haute pression, ou de l'application de ce type d'équipement dans la pratique. Veuillez écrire dans la boîte de commentaires ci-dessous. Ici, vous pouvez poser des questions ou rapporter des faits intéressants.

Ici, la construction de ma nouvelle maison touche à sa fin. Et il est temps de décider du choix de la pompe. Si je comprends bien, j'ai besoin d'une pompe à eau de type submersible. En ce moment, je me suis installé sur le choix d'un modèle de vibration, je pense qu'il est parfait pour moi. Plus d'informations sur l'installation elle-même. Mais en général, je n'en ai pas vraiment besoin, car le maître va l'installer. Et je ne comprends pas vraiment ça. En général, les informations sont très utiles et intéressantes. Bonne chance
Est-il réaliste d'installer une telle pompe dans un appartement? Nous avons une pression d'eau froide de 0,5 à 0,8, pas plus. Tout d'abord, la légalité de la connexion est intéressante.
Bonjour Si le problème de pression est dû au rétrécissement des tuyaux ou au colmatage par la rouille / la saleté, la pompe n'aidera pas.
Art. 25-29 du chapitre 4 du RF Housing Code (réorganisation et réaménagement des locaux d'habitation) - ici, à mon avis, ces articles régissent des actions telles que la réorganisation du système d'ingénierie, qui peut entraîner une détérioration du fonctionnement de l'ensemble du système de la maison.
En général, selon les normes, votre pression est très faible, bien sûr - elle ne correspond à aucune norme. Vous devriez écrire une déclaration au Code criminel et exiger que tout soit réparé. Et donc, il est possible lors d'une assemblée générale de résoudre le problème de l'installation d'un réservoir d'accumulation avec une pompe sur la colonne montante, si le problème n'est pas dans les tuyaux.