Exigences pour l'installation d'une chaudière à gaz dans une maison privée: conseils d'installation et règles pour un fonctionnement sûr
Convenez que la sécurité de votre maison en ignorant les exigences d'installation d'une chaudière à gaz dans une maison privée échouera. C'est bien ça? Le seul problème est qu'il est difficile de comprendre les documents de profil, car le champ d'application est réglementé par des dizaines de SNiP, GOST.
Mais ce problème peut et sera aidé par cet article. Dans lequel on lui explique comment installer correctement la chaudière, qui deviendra la base de son fonctionnement en toute sécurité.
Le contenu de l'article:
Cadre réglementaire
Une mauvaise utilisation de l'équipement à gaz entraîne souvent des conséquences négatives. Par conséquent, l'État a réglementé ce domaine dans les moindres détails.
Et, au vu de cette fonctionnalité, un, même un document volumineux, ne pourra pas contenir toutes les informations nécessaires.

À la suite de toutes sortes d'instructions, il y en a vraiment beaucoup. Par exemple, certains problèmes connexes régissent:
- SP-401.1325800.2018, qui établit les règles de conception de toutes sortes de systèmes de consommation de gaz dans les bâtiments résidentiels;
- SP 62.13330.2011, où il est indiqué quelle devrait être la pression du gaz, comment poser les tuyaux vers la chaudière, etc.
- GOST avec des chiffres P 52318-2005; P 58121.2-2018; 3262-75. Où il est indiqué quels tuyaux et éléments de connexion peuvent et doivent être utilisés lors de l'installation d'une chaudière à gaz. De plus, l'acier et d'autres types de gazoducs sont décrits. Et aussi leurs caractéristiques sont indiquées;
- GOST 27751-2014; SP 20.13330. Ces documents définissent les exigences relatives à la charge sur les gazoducs externes et internes utilisés pour installer les chaudières;
- SP 402.1325800.2018, qui définit les règles de raccordement des chaudières aux réseaux électriques;
- SP 28.13330, et dans certains cas GOST 9.602-2016, qui décrit les méthodes de lutte contre la corrosion;
- SNiP 21-01-97. Ce document présente les mesures de sécurité à respecter lors de l'exploitation des bâtiments, y compris ceux chauffés par des chaudières à gaz. Et aussi fait la division des matériaux de construction en combustibles, non combustibles. Et ces informations sont importantes lors de l'équipement de la pièce dans laquelle la chaudière sera placée.
En outre, vous devez vous familiariser avec les règles énoncées dans SP 60.13330.2016 (Ce document est une version mise à jour des normes et règlements de construction bien connus 41-01-2003). Après tout, c'est dans ce règlement qu'il est indiqué que pour chauffer un logement, on peut utiliser des sources de chauffage individuelles et ce qu'elles devraient être.
Et ce n'est pas tout ce que vous devez savoir pour un placement correct garanti de la chaudière et un fonctionnement en toute sécurité.

Et si, par exemple, la question se pose de savoir pourquoi vous devez connaître les mesures de sécurité ou les charges des tuyaux pendant la construction. Ensuite, il faut se rappeler que la chaudière installée sera autorisée à fonctionner. Et, lorsque les règles établies énoncées dans le document pertinent ne sont pas respectées, les lacunes identifiées devront être corrigées.
Dans le cas où la chaudière à gaz achetée est installée dans sa propre maison en bois et que les exigences relatives à la taille de la fondation ne sont pas respectées, ce qui doit à tout moment dépasser les dimensions de la chaudière d'au moins 30 cm. Ensuite, au lieu de profiter du confort, vous devrez démonter la structure et effectuer un travail sur un nouveau.
Comment installer la chaudière?
Cela ne vaut pas la peine de commencer l'installation d'une chaudière à gaz équipement de chaufferie. Et pas même de déterminer le modèle de la chaudière, mais de déterminer s'il est possible de le faire du tout.
Pourquoi devriez-vous contacter Gorgaz (Raigaz) afin d'obtenir les spécifications techniques, et en même temps, l'autorisation de réaliser la conception de la chaufferie.
Contactez gorgaz par écrit. Il est nécessaire de soumettre une candidature à laquelle, sans faute, sont joints:
- des copies de documents confirmant que le demandeur est propriétaire de l'immeuble et du terrain adjacent;
- plan de situation mis en. Cet élément n'est pertinent que si la chaufferie sera située dans un bâtiment séparé, qui n'existe pas encore.
Le demandeur devra également prouver son identité.

Le document soumis doit indiquer la demande de conditions techniques et indiquer le débit de gaz prévu. Si sa valeur exacte n'est pas connue et que le propriétaire de l'immobilier n'a pas les connaissances nécessaires pour effectuer le calcul, alors ce service peut être négocié avec les représentants de gorgaz. Mais pour cela, vous devrez soumettre une demande séparée.
Les travailleurs du gaz sont tenus d'émettre des conditions techniques dans les 10 jours établis. Mais la réalité est que le timing dépend de la charge de travail des spécialistes d'un fournisseur de gaz donné.
Étapes d'installation de l'équipement
Après avoir reçu les spécifications techniques, vous pouvez passer à la tâche d'installation de la chaudière. L'ensemble de la procédure comprend 4 étapes.
Ceux-ci comprennent: la création d'un projet, la coordination d'un projet, l'installation d'une chaudière, la vérification de l'équipement. Ignorez les étapes ci-dessus, vous ne pouvez pas changer leur place.
Étape numéro 1 - conception de l'installation
En effet, cette étape de l'installation de la chaudière à gaz vise à déterminer la liste exacte des règles et normes qui devront être suivies.

Il y en a beaucoup, mais tout se résume à faire en sorte que le système de chauffage, dont la chaudière fera partie, puisse:
- assurer le chauffage de toutes les pièces du bâtiment à des températures normalisées (pour les locaux résidentiels ce chiffre est de 18-24 ° C), et tout au long de la période de chauffage;
- chauffer uniformément toutes les pièces;
- fournir une stabilité hydraulique et thermique. En termes simples, cela signifie que le système de chauffage dans son ensemble, comme la chaudière elle-même, doit être fiable et stable tout au long du cycle de vie, quelles que soient les conditions de fonctionnement.
Ces exigences ne sont pas générales - ce sont des normes spécifiques et strictes énoncées dans le SP 60.13330.2016, et elles sont fondamentales.
Pour comprendre: si la chaudière ne fournit pas de chauffage à air à des températures confortables, la règle qui dit quelle devrait être la taille minimale d'une chaudière à gaz existante dans une maison privée particulière sera-t-elle importante?
Par conséquent, les performances d'une chaudière à gaz doivent être déterminées en tenant compte:
- les zones des locaux que l'unité chauffera;
- perte de chaleur du bâtiment;
- conditions climatiques de la région.
Au début, vous devez faire attention à ce qui est interdit de faire lors de l'installation de la chaudière.

À savoir, il est impossible de placer un équipement à gaz sur des surfaces en matériaux combustibles. Par exemple, sur une base en bois. Il est dangereux et donc interdit d'installer des chaudières sur les balcons, loggias, sous-sols et autres endroits où la procédure de ventilation est difficile.
S'il est prévu d'utiliser du gaz de carbone liquéfié, il est également interdit de placer la chaudière au rez-de-chaussée. Les locaux utilisés à des fins récréatives sont les locaux les plus inappropriés pour installer du matériel de chauffage. De plus, les portes de la chaufferie ne doivent pas entrer dans les salles de repos - cela doit également être pris en compte lors de la conception.
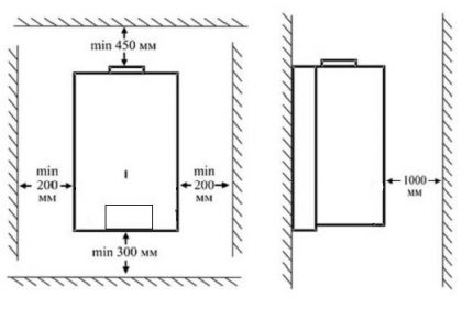
Le local dans lequel la chaudière est installée doit répondre à un certain nombre d'exigences, à savoir:
- la superficie ne doit pas être inférieure à 4 m²;
- le volume minimum de la pièce est de 7,5 m³. De plus, une telle norme n'est pertinente que pour les chaudières dont la puissance ne dépasse pas 30 kW. Si la caractéristique indiquée des unités est supérieure, le volume minimal de la chaufferie doit être de 13,5 m³. Et avec une puissance de 60 kW - 15 m³;
- la hauteur de la pièce doit être d'au moins 2,2 m avec une puissance de chaudière allant jusqu'à 30 kW. Si les performances dépassent la valeur spécifiée, la hauteur minimale sera de 2,5 m;
- la pièce doit être équipée d'une porte d'une ouverture de 0,8 m.
Une attention particulière lors de l'équipement d'une chaufferie doit être accordée aux fenêtres. Ce qui devrait fournir à la pièce un niveau d'éclairage suffisant pour effectuer les opérations nécessaires au contrôle de la chaudière, et servir également à la ventilation des locaux. Le dernier point est critique.
Par conséquent, l'exigence principale est que les fenêtres des chaudières soient équipées sans faute. Dans le même temps, la surface vitrée doit être de 0,03 m² pour chaque 1 m³ d'espace.

Seules les fenêtres à charnières conviennent à l'installation, qui, de plus, s'ouvrent nécessairement vers l'extérieur. Cette caractéristique de conception dans les situations critiques permettra une ventilation rapide, par exemple en cas de fuite de gaz. Et dans un certain nombre de situations, les conséquences de l'explosion seront réduites ou nivelées.
Dans la chaufferie déprimé:
- eau - pour fournir un système de chauffage avec un liquide de refroidissement;
- Assainissement, qui est nécessaire pour vidanger le liquide de refroidissement.
La pièce où la chaudière sera installée ultérieurement doit être équipée systèmes de ventilation et désenfumage.
De plus, le tuyau d'évacuation des produits de combustion doit être au-dessus du niveau du toit. Dans certains cas, une telle règle peut ne pas être respectée, mais l'opportunité d'une telle décision devra être prouvée.

Toutes les exigences ci-dessus s'appliquent également aux maisons en bois. La seule différence est qu'avec une puissance de chaudière supérieure à 60 kW, le volume minimal autorisé d'une pièce doit être de 27 m³. Dans le même temps, l'installation doit être effectuée sur une fondation en matériaux incombustibles, qui devrait également protéger les murs en bois contre les effets des températures élevées.
Vous devez savoir qu'il y a beaucoup d'exigences pour la pièce, son équipement et son alimentation en gaz. Par conséquent, la conception doit être effectuée par des spécialistes. Nous vous proposons également de vous familiariser avec les projets de chaufferie pour une maison privée. Plus de détails - allez à le lien.
Étape 2 - approbation du projet
Si au stade de la création sont déterminées les exigences et les normes qui rendront le fonctionnement du système de chauffage efficace et sûr, alors lors de la coordination, le contrôle de l'exactitude de leur choix est effectué.
La procédure spécifiée est effectuée par des personnes responsables de gorgazs (ryegaz). De plus, leur tâche n'est pas d'identifier les lacunes et de rejeter le projet. Par conséquent, la plupart des règles répertoriées dans le paragraphe précédent peuvent être ajustées.

Par exemple, si la superficie de la pièce est légèrement inférieure aux 4 m² requis et qu'il n'y a pas de possibilité de l'augmenter, l'installation de la chaudière sera autorisée. Mais pour compenser cette lacune, la surface vitrée devra être agrandie. Des ajustements similaires sont utilisés dans de nombreux autres cas.
Et la solution optimale sera celle qui est fournie même au stade de la création du projet. Comme cela réduit le temps nécessaire pour installer la chaudière, cela réduit également les coûts. Mais pour prendre la décision optimale, non seulement des connaissances sont nécessaires, mais aussi une expérience que seuls les spécialistes ont, ce qui doit être pris en compte.
Néanmoins, la caractéristique décrite de la coordination n'est pertinente que pour les cas où la maison a déjà été mise en service.
Si le logement est encore en construction, les règles doivent être strictement respectées. Et, s'il n'y a pas de telles opportunités, les normes de conception stipulent qu'une chaufferie à gaz dans une maison privée ne peut pas être placée, c'est-à-dire qu'une extension ou un bâtiment séparé doit être utilisé à ces fins.
Étape 3 - installation d'une chaudière à gaz
La particularité de cette procédure est qu'il est nécessaire de respecter strictement les normes et exigences utilisées pour créer le projet. Puisque vous pouvez payer leur interprétation gratuite plus tard, au stade de la vérification.

Toute personne peut installer la chaudière, c'est-à-dire qu'elle n'a pas besoin d'être des spécialistes d'organisations spécialisées. Mais il ne faut pas oublier que cela ne dispense pas du respect de la technologie, des mesures de sécurité et de toutes les autres exigences.
Étape 4 - Bilan de santé
Vérifier le fonctionnement de l'équipement et l'exactitude de son installation est une étape obligatoire avant de démarrer l'équipement.L'audit est conçu pour identifier toutes les violations et le non-respect des exigences afin de prévenir d'éventuelles conséquences négatives.
Les collaborateurs de Gorgaz effectuent les contrôles nécessaires qui, sur la base des résultats des contrôles et du premier lancement, établissent un acte confirmant que les exigences d'installation sont respectées.
Et pour commencer le fonctionnement à part entière du système de chauffage, vous devrez suivre la dernière règle - prendre l'autorisation reçue de gorgaz.
Conseils pour un fonctionnement sûr des chaudières
Lors de l'utilisation d'équipements de chauffage, il convient de rappeler que la mise en œuvre régulière de quelques règles simples et universelles permettra d'éviter les problèmes.

Avant premier lancement assurez-vous qu'il n'y a pas de fuite de gaz, qui est déterminée par l'odeur spécifique et désagréable. Ensuite, vous devez ventiler la pièce et vérifier la présence de traction. De plus, assurez une alimentation en air sans entrave vers la chaudière, ce qui réduira la probabilité d'atténuation de la flamme.
Ne pas appuyer d'objets contre le radiateur. Dans la chaufferie, il est interdit de stocker des objets, substances, liquides explosifs et dangereux. Par exemple, du bois de chauffage, des conteneurs contenant de l'essence, du papier et similaires. Il est également interdit de stocker des bouteilles de rechange pour le gaz liquéfié dans la chaufferie.
Le fonctionnement de la chaudière à gaz doit être contrôlé régulièrement. Lors de l'arrêt de l'unité pendant une longue période, par exemple en basse saison, il est nécessaire de fermer la vanne de gaz et l'alimentation en eau. Il est également nécessaire de débrancher l'appareil du secteur.
La chaudière ne peut être nettoyée qu'à l'état éteint et hors tension. La mise en service et tout autre travail responsable doivent être évités par des personnes qui ne possèdent pas les connaissances, les compétences et les outils spéciaux appropriés.
Personnes non préparées - les enfants et les personnes âgées ne doivent pas être autorisés à utiliser la chaudière. Il est également impératif de se rappeler que lorsqu'une fuite de gaz est détectée, l'utilisation de la chaudière doit être arrêtée immédiatement et un service de gaz doit être informé d'un dysfonctionnement.
Conclusions et vidéo utile sur le sujet
Le premier matériel vidéo permet de se familiariser avec les règles d'installation des chaudières murales:
Le matériel suivant fournit des informations sur les exigences d'installation des chaudières au sol:
De nombreux règlements administratifs énoncent des centaines d'exigences qui doivent être prises en compte lors de l'installation d'une chaudière dans votre maison. Mais la plupart d'entre eux ne sont pas des dogmes. Et, s'il n'est pas possible de se conformer précisément à une règle, elle peut en outre être contournée légalement. Mais ces questions, afin de maintenir le niveau de sécurité approprié, devraient être traitées par des spécialistes.
Et quelles difficultés avez-vous rencontrées lors de l'installation d'une chaudière à gaz et comment avez-vous réussi à y faire face? Veuillez partager votre expérience avec les autres visiteurs de notre site. Laissez vos commentaires, posez des questions dans le bloc ci-dessous.
