Comment connecter une chaudière à gaz Ariston: recommandations pour l'installation, le raccordement, la configuration et la première mise en service
Les chaudières à gaz sont produites par différentes sociétés, ce qui s'accompagne de la livraison d'équipements sur le marché qui nécessitent une approche individuelle de l'installation et du fonctionnement. Mais je n'ai pas envie de surpayer l'appel d'un spécialiste pour les travaux d'installation, non? Mais comment connecter la chaudière à gaz Ariston vous-même, en tenant compte des caractéristiques individuelles de l'équipement acheté?
Nous essaierons de vous aider à faire face à cette tâche - dans notre publication, l'installation, le raccordement et le réglage d'une chaudière à gaz sont envisagés. La séquence des travaux lors de la première mise en service de l'équipement est également indiquée. Le matériel présenté est complété par des photos visuelles et une vidéo.
Le contenu de l'article:
- La procédure de connexion de la chaudière Ariston
- Étape # 1 - Étudier les exigences d'installation du fabricant
- Étape # 2 - préparation et installation de la chaudière sur le mur
- Étape # 3 - exécution des connexions hydrauliques
- Étape # 4 - Organisation de l'injection d'air et de la cheminée
- Étape # 5 - raccordement de la cheminée / du conduit
- Étape # 6 - connexion de l'équipement au secteur
- Première mise en service et réglage de la chaudière
- Conclusions et vidéo utile sur le sujet
La procédure de connexion de la chaudière Ariston
Les chaudières murales sont peut-être les plus courantes parmi les équipements à gaz domestique - elles sont le plus souvent choisissez d'installer à la maison acheteurs potentiels.
Ainsi, la chaudière murale à gaz moderne du modèle Ariston Net vous permet de: démarrer, arrêter et contrôler le fond de température du chauffage et de l'eau chaude sanitaire. De plus, toutes ces actions peuvent être effectuées de n'importe où et à tout moment grâce à l'utilisation d'un smartphone ou d'un ordinateur personnel familier.

Le système assure une surveillance constante de la consommation d'énergie, qui s'accompagne d'importantes économies de gaz. Grâce à un logiciel spécial, le propriétaire de l'équipement reçoit des notifications de dysfonctionnements en temps réel.
De plus, si vous activez la télécommande, il devient possible de résoudre la plupart des problèmes à distance. Cependant, considérons d'abord comment installer correctement une chaudière à gaz à usage domestique de la marque Ariston, ainsi que les caractéristiques de son raccordement, ses réglages et la procédure lors de la première mise en service.
Étape # 1 - Étudier les exigences d'installation du fabricant
A en juger par les exigences du fabricant de chaudières Ariston, l'installation des équipements est l'apanage des spécialistes.
D'où la conclusion correspondante - l'installation indépendante et la première inclusion d'une chaudière domestique à gaz Ariston est théoriquement impossible (ou plutôt inacceptable). De plus, la première mise en service de l'équipement est interdite sans un représentant du service du gaz.
Le fabricant rappelle également au futur utilisateur la qualité de l'eau avec laquelle fonctionnera la chaudière murale à gaz. A noter: si la qualité de l'eau (composition chimique) ne répond pas aux exigences techniques, l'opérabilité des équipements à gaz n'est pas garantie par le constructeur pendant la période de garantie établie.

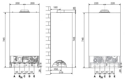
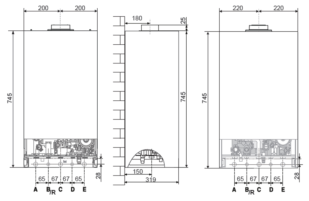
En plus des points de connexion technologiques indiqués dans le diagramme ci-dessus, il existe quatre autres points de connexion dans le cadre de la conception de la chaudière à gaz Ariston:
- Drain de soupape de décharge.
- Eau d'appoint du réseau.
- Canal de vidange du système.
- Retour de la chaudière.
La chaudière à gaz Ariston est conçue pour être incluse dans les schémas d'alimentation en eau chaude et de chauffage, adaptés aux spécifications techniques.
Le fonctionnement de l'équipement est considéré comme inacceptable si le mode de fonctionnement ne correspond pas à l'usage prévu du système. Il est également inacceptable, selon les exigences du fabricant, d'effectuer lui-même des réparations.
Étape # 2 - préparation et installation de la chaudière sur le mur
L'installation de l'unité principale (chaudière à gaz) est effectuée sur un mur avec un haut degré de résistance. Les vibrations transmises le long de la structure du mur où la chaudière à gaz Ariston est installée ne sont pas autorisées.
Les canalisations raccordées à l'équipement doivent être protégées des éventuels dommages mécaniques, ainsi que les fils électriques alimentant la chaudière à gaz.
Les locaux à installer doivent être sélectionnés en tenant compte des conditions techniques et sanitaires prévues:
- un niveau d'éclairage suffisant;
- ventilation efficace;
- conceptions fortes.
Enfin, lors du processus d'installation, les règles de sécurité établies doivent être respectées.

Avant de commencer l'installation du système, il est nécessaire d'effectuer les opérations:
- rinçage des circuits ECS et chauffage;
- vérifier le gaz pour le type de carburant;
- vérifier que la conception du conduit de fumée est conforme à la norme requise;
- vérifier la qualité (composition chimique) de l'eau.
Les chaudières Ariston de conception typique «C», dotées d'une chambre de combustion étanche, soutenant la fonction d'alimentation en air extérieur, ne sont pas limitées par les exigences de ventilation et les dimensions de la salle de travail.
Le fonctionnement normal de la chaudière à gaz Ariston se poursuit à une température de fonctionnement minimale de +5 ° C à l'intérieur de l'atelier. Dans le même temps, il est recommandé de protéger la chaudière de l'impact possible des facteurs externes et des précipitations.
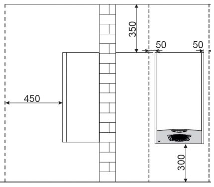
La chaudière domestique à gaz Ariston est montée sur un mur solide, construit sur la base d'un matériau incombustible, qui peut supporter le poids total de l'équipement.L'emplacement de la chaudière à gaz doit être sélectionné en tenant compte de l'exposition aux distances minimales autorisées (schéma ci-dessus) aux objets à proximité. Ces exigences sont conçues pour fournir un accès pour une maintenance pratique.
Étape # 3 - exécution des connexions hydrauliques
Selon les paramètres techniques du fabricant, la pression maximale admissible à l'intérieur des tuyaux de l'alimentation en eau du système est autorisée à pas plus de 6 atmosphères. Si cette limite de pression d'eau du réseau centralisé est dépassée, il est nécessaire d'installer en plus un détendeur dans le système.

Le dimensionnement des conduites d'eau et des appareils de chauffage qui composent le circuit de chauffage est réalisé par la pression résiduelle. Le niveau de cette pression est calculé en fonction du débit d'eau requis. Dans ce cas, les caractéristiques techniques de la pompe de circulation sont également prises en compte.
Le manuel d'utilisation nécessite de connecter le tuyau de vidange (fourni) au point de sortie de la soupape de sécurité. La soupape de vidange de la soupape de sécurité est reliée au siphon de vidange selon le schéma, ce qui permet d'observer visuellement le fonctionnement de la soupape de sécurité.
La conception de la chaudière à gaz Ariston prévoit la connexion d'un chaudière indirecte afin de produire de l'eau chaude. La température de l'eau chaude est régulée par défaut avec un capteur NTC. Si le contrôle de la température est organisé via un thermostat, vous devrez régler les paramètres de contrôle de la chaudière à gaz.
Étape # 4 - Organisation de l'injection d'air et de la cheminée
La conception de la chaudière à gaz Ariston permet l'organisation de l'installation selon le schéma "B" (l'air ambiant est utilisé) et selon le schéma "C" (l'air extérieur est utilisé).
Afin d'éviter la pénétration de produits de combustion dans le système de conduits, une exécution soigneuse des joints de montage est requise. Il est nécessaire d'installer le module d'échappement des fumées en tenant compte de l'exclusion de la violation des joints et d'empêcher la pénétration des fumées dans le conduit.

Selon les instructions du fabricant, les sections horizontales des conduits de fumée sont montées avec une pente d'environ 3%, dirigées loin de la chaudière. Donc empêché condensation.
L'installation d'équipements à gaz selon le schéma «B» nécessite l'organisation d'une ventilation et d'une prise d'air efficaces dans les salles de travail.
Dans les pièces où l'apparition de vapeurs corrosives est possible dans l'air, il est autorisé d'utiliser uniquement l'installation selon le schéma «C» (entrée d'air extérieur). Ces exigences offrent une protection contre la corrosion pour les chaudières à gaz Ariston.
Installation d'un système coaxial (double) (évacuation des gaz et alimentation en air), le fabricant nécessite de réaliser des accessoires et accessoires d'origine.
Il est inacceptable d'aménager une cheminée à proximité immédiate avec des matériaux inflammables. Il est également interdit d'installer une cheminée à travers des structures réalisées à base de matériaux inflammables. Si l'ancienne chaudière est remplacée par une nouvelle, toutes les pièces des modules de ventilation et d'évacuation doivent être remplacées.
Étape # 5 - raccordement de la cheminée / du conduit
Il existe plusieurs options pour raccorder la cheminée, selon la configuration de l'équipement à gaz:
- système coaxial (tuyau dans tuyau);
- système séparé;
- cheminée monocanal.
Pour le raccordement d'une chaudière à gaz selon le schéma «pipe in pipe», des matériaux et composants à haute résistance aux condensats sont utilisés.En savoir plus sur l'installation d'une cheminée coaxiale à cet article.
Les kits de cheminée / conduit ne figurent généralement pas sur la liste des équipements de chaudière à gaz Ariston. En conséquence, des kits supplémentaires sont commandés pour une connexion spécifique.

De nombreuses chaudières à gaz de la marque Ariston sont fabriquées en tenant compte de l'alimentation en air et de l'évacuation des gaz à travers un système coaxial dont les diamètres des tuyaux sont de 60 et 100 mm. Ou une version séparée peut être utilisée avec des tuyaux pour des diamètres de 80 par 80 mm. La sélection de la configuration des gaz d'échappement et du conduit s'accompagne d'une traînée aérodynamique supplémentaire.
Étape # 6 - connexion de l'équipement au secteur
Pour assurer une sécurité totale, le fabricant requiert l'intervention d'un spécialiste qualifié pour connecter et vérifier toutes les connexions électriques de la chaudière à gaz Ariston. Le fabricant annule la garantie de l'équipement si un réseau d'alimentation de faible qualité est utilisé et système de mise à la terre.

Le système d'alimentation est conçu pour le paramètre de consommation électrique maximale d'une chaudière à gaz. Pour connecter l'équipement utilisé des conducteurs électriques ayant une section d'au moins 0,75 mm2. Un fonctionnement correct et sûr de la chaudière à gaz fournit une mise à la terre fiable.
Les paramètres de puissance doivent être mis en conformité avec les normes du réseau 230V / 50 Hz, en respectant la polarité et la présence du conducteur de mise à la terre. Le conducteur de mise à la terre doit être utilisé plus longtemps par rapport au conducteur de phase et au neutre. Connexion filaire - strictement permanente, sans utilisation de prises et de fiches, réalisée par machine bipolaire.
Première mise en service et réglage de la chaudière
Une fois l'installation et la connexion terminées, vous pouvez procéder à la configuration et au test de l'équipement.
Première course
L'action initiale qui accompagne le premier lancement d'une chaudière à gaz de marque Ariston est remplissage du circuit de chauffage de l'eau. Dans ce cas, il est nécessaire d'installer les vannes d'air des radiateurs à l'état de fonctionnement (ouvert).
Les mêmes actions visant à purger l'air du système s'appliquent à la pompe de circulation de la chaudière. Lorsque le circuit est rempli d'eau, l'air est retiré du système et la pression de l'eau sur le manomètre atteint 1 à 1,5 atmosphère, le robinet de la ligne de remplissage est fermé.

À l'étape suivante de la mise en service de la chaudière à gaz, ils effectuent des actions liées à l'alimentation en gaz.
La procédure est approximativement la suivante:
- ouvrir les portes et fenêtres de la salle de travail;
- exclure la présence de flammes nues;
- Vérifiez le circuit du brûleur et le système de contrôle pour les fuites.
Le contrôle d'étanchéité de l'unité de commande et du brûleur s'effectue en ouvrant brièvement (pas plus de 10 minutes) la vanne d'arrêt principale de la conduite de gaz. Dans ce cas, l'électrovanne et l'obturateur manuel de la chaudière sont installés en position fermée. Avec cette position du système, le débitmètre de gaz doit afficher un résultat nul (pas de fuite).
Manipulation du panneau de commande
L'équipement de chauffage au gaz moderne est équipé d'un panneau de commande où l'utilisateur peut définir les paramètres souhaités de l'unité. Ensuite, nous considérons plus en détail comment mettre en place une chaudière à gaz domestique de la marque Ariston.

En fait, les actions de l'utilisateur sur le panneau de commande sont évidentes ici:
- Allumez l'appareil en activant le bouton ON / OFF.
- Marquez les paramètres de fonctionnement sur l'écran.
- Marquez l'affichage des fonctions du mode service.
Ensuite, les paramètres de gaz sont vérifiés, pour lesquels le panneau avant de la chaudière est démonté, la plaque du panneau de commande est abaissée et les manipulations de test sont effectuées avec le manomètre de mesure connecté aux tuyaux de prise de pression.
Ces opérations sont l'apanage des spécialistes du service gaz.. Une exécution indépendante n'est pas recommandée, car il est nécessaire de connaître clairement la fonctionnalité de l'équipement.

La chaudière démarre ensuite en mode test via la fonction système «Ramoneur». Pour entrer en mode test, le bouton Reset doit être activé et maintenu enfoncé pendant au moins 5 secondes. Quittez le mode test en réactivant la touche de réinitialisation.
Test de puissance maximale / minimale
Ce type de test prévoit également la sélection de la pression de commande à des points spécialisés de l'équipement avec une mesure ultérieure des paramètres sur le manomètre. Il est nécessaire de déconnecter le tube de compensation de la chambre de combustion. Encore une fois, le mode «Ramoneur» est activé, activé via le panneau de commande.
De même, la chaudière est testée pour la puissance minimale. Certes, la vis de réglage du modulateur est également utilisée s'il est nécessaire de corriger la pression de service minimale de la chaudière. Pour cette raison, une vidéo est publiée ci-dessous, où le modulateur est pour une raison quelconque appelé un moteur.
Mise en service de l'équipement
Le processus de démarrage de l'appareil prévoit les actions utilisateur suivantes:
- Activez le bouton ON / OFF.
- Sélectionnez le mode veille.
- Maintenez le bouton Mode enfoncé pendant 3 à 10 secondes.
- Attendez le passage du cycle d'élimination de l'air (environ 7 minutes).
- Ouvrez le robinet de la conduite de gaz.
- Activez le mode de fonctionnement de l'eau chaude sanitaire avec la touche «Mode».
Si toutes les actions ont été réalisées par le maître d'une entreprise spécialisée, il vérifie alors la conformité de la pression de gaz lors du fonctionnement de l'unité et établit l'acte correspondant.
Et offre également une formation sur fonctionnement sûr équipements au gaz et met la chaudière en garantie.
Conclusions et vidéo utile sur le sujet
Une vidéo sur les caractéristiques du premier lancement de la chaudière Ariston, en particulier, le réglage de service de la pompe de circulation est présentée. En fait, c'est le travail de spécialistes, mais comme le montre la vidéo, vous pouvez le faire vous-même:
Les chaudières murales à gaz d'une série d'équipements modernes de la marque Ariston sont une technique assez compliquée, même à des fins domestiques. D'où la conclusion logique sur l'installation et la mise en service d'une chaudière à gaz Ariston - la mise en service initiale du système doit être confiée à des spécialistes. Les coûts, bien sûr, sont inévitables, mais d'un autre côté, le bon fonctionnement du système de gaz est garanti.
Avez-vous installé et configuré vous-même une chaudière à gaz de la marque Ariston ou confié ce travail à des spécialistes? Partagez votre expérience avec d'autres visiteurs de notre site dans la section commentaires - ajoutez une photo de votre chaudière, racontez les moments difficiles que vous avez rencontrés lors du processus d'installation de l'équipement vous-même.
