Aménagement d'un puisard: règles d'organisation et d'étanchéité
L'absence d'un système d'égouts centralisé devient la raison de l'installation de toutes sortes d'installations de traitement locales dans les zones suburbaines. Mais parfois, au lieu d'une structure autonome coûteuse, l'installation d'un simple puisard suffit. De plus, faire face à sa construction est tout à fait possible en soi.
Dans l'article, nous avons affiché des informations détaillées sur la façon de terminer l'agencement d'un puisard sur un site, quelles règles et normes doivent être suivies lors de l'organisation d'une structure de drainage. Nous avons décrit les solutions les plus populaires et les plus pratiques, et avons également fourni des instructions étape par étape pour leur mise en œuvre.
Le contenu de l'article:
Types de puisards modernes
Aujourd'hui, la charge fonctionnelle de la fosse de drainage a considérablement augmenté, car la présence d'un système d'égouts domestique et d'un système d'alimentation en eau froide élémentaire augmente plusieurs fois le volume des drains.
À cet égard, de nouvelles modifications des systèmes d'assainissement sont apparues, plus volumineuses et améliorées en termes de traitement des déchets.

Rappelez-vous à quoi ressemblait la fosse de drainage - un petit puits dans lequel tous les déchets ont été méthodiquement versés jusqu'à ce qu'ils soient complètement remplis. Les parois du puits étaient tapissées de planches, disposées avec des pierres ou renforcées avec d'autres matériaux improvisés. Lorsque le niveau des eaux usées est devenu maximal - ils ont appelé une machine de puisard pour le pompage.

Bien sûr, il n'était question ni d'écologie ni de protection de l'environnement contre la pollution à cette époque.Mais aujourd'hui, tout le monde veut garder le sol propre sur le site, ils surveillent donc strictement l'étanchéité des installations de traitement.
Les fabricants choisissent des matériaux qui ne nécessitent pas une longue installation ou une imperméabilisation spéciale. Les réservoirs volumétriques en polymère servent d'exemple de modèles modernes.

Les structures monolithiques en béton à une et deux sections, ainsi que les installations à un, deux ou même trois puits en béton, n'ont pas perdu de leur popularité. Le choix s'explique par la relative facilité d'installation (coulage) et une durée de vie décente (jusqu'à 30 ans).

Le sentiment de poser une mine avec une brique a disparu, car l'installation de plusieurs anneaux est beaucoup plus facile que de créer une brique pleine. La principale qualité des nouveaux appareils est l'étanchéité, qui protège le sol de la pollution par les effluents.
Sélection d'un lieu en tenant compte des normes sanitaires
Lors de la construction d'un nouveau puisard, il faut être guidé par les exigences énoncées dans SNiP. Bien sûr, pour plus de facilité d'utilisation, j'aimerais le placer plus près de chez moi.
Cependant, la distance entre la fondation et le réservoir doit être d'au moins 10 m. Les circonstances de force majeure associées à une violation de l'étanchéité de la fondation et du réservoir de stockage sont prises en compte.

Lors de la planification, notez également que la clôture délimitant les limites du site ne doit pas être à moins de 4 m et la chaussée ne doit pas être à moins de 5 m.
Le plus grand intervalle - jusqu'à la source d'eau (puits ou puits) - au moins 25 m, avec un sol sablonneux meuble - jusqu'à 50 m. S'il y a un plan d'eau avec de l'eau stagnante (étang ou lac) à proximité, alors il doit être pris en compte - 30 m.
Anneaux en béton - type de matériau actuel
Béton armé anneaux pour fosses septiques et la construction de puits d'eau potable est si demandée que de nombreuses usines ont commencé à se spécialiser dans leur production.
De plus, en plus des parties principales, ils fabriquent des anneaux équipés d'un fond, de cols individuels, de plafonds et de segments supérieurs avec une trappe. Considérez deux options pour la construction de puisards, avec et sans fond.
Puits d'absorption du béton
Une cuve ouverte sans fond, c'est-à-dire un puits absorbant, est une version combinée ressemblant à une cuve de stockage classique, mais agissant sur le principe d'un élément filtrant d'une fosse septique.

Il existe des conditions dans lesquelles la construction d'une structure de fond «ouverte» doit être évitée:
- le niveau des eaux souterraines doit être au moins à 100 cm sous la base du puits d'égout, sinon le fluide résiduaire se mélangera avec les horizons des eaux souterraines, ce qui entraînera une pollution du sol avec des substances nocives;
- le type de sol doit répondre aux exigences de filtration, c'est-à-dire qu'il doit être perméable: sableux, graveleux ou caillouteux à forte teneur en sable. La roche, le limon et l'argile n'ont pas de propriétés similaires et peuvent au fil du temps devenir une barrière insurmontable au ruissellement.
Sous réserve des conditions, vous pouvez construire vous-même un puits.

Demande de service:
- Creuser une fosse à une profondeur égale à la hauteur totale des anneaux (2 ou 3) plus un demi-mètre pour la couche de drainage et 20-30 cm pour disposer le cou.
- Pose de la base du filtre à partir de matériaux en vrac - sable, cailloux, gravier, gravier. Par exemple, la couche inférieure est du sable, la couche supérieure est du gros gravier. Pour l'efficacité du nettoyage, une base en béton perforé ou un géotextile peut être utilisé.
- Montage en anneau à l'aide d'une grue.
- Connexion d'égout dans un trou préalablement fait par un perforateur;
- Bonne imperméabilité - scellement des joints, joints, joints;
- remblayage et tasser le sol autour du périmètre de la fosse.
Une attention particulière doit être portée. étanchéité de puisard. Il est préférable de fixer le tuyau à l'aide d'un té, puis de sceller tous les joints avec du mastic.

Même lorsque vous utilisez des anneaux en béton avec une connexion de verrouillage, ils doivent être scellés de l'intérieur et de l'extérieur. De l'extérieur, vous pouvez utiliser du rouleau de bitume collé, qui est posé en plusieurs couches, de l'intérieur - une combinaison Penetron et Penecritus ou mortier de ciment Aquabarrier.
Pour assurer le processus de pompage, dans la partie supérieure, il est nécessaire d'équiper la trappe d'un couvercle isolé hermétiquement fermé.
Réservoir de stockage d'anneaux
Un niveau élevé d'eau souterraine (une occurrence assez courante) ne permet pas l'installation de puits d'égout sans fond, donc un simple réservoir de stockage serait l'option la plus réussie. Vous pouvez utiliser un réservoir en plastique ou un grand fût en polymère, mais nous considérerons un projet d'anneaux en béton.

De manière pratique, presque toutes les pièces peuvent être achetées prêtes à l'emploi. Le coût d'un anneau de puits d'un diamètre de 110 cm (épaisseur de la paroi - 16 cm, hauteur - 89 cm) - de 1500 à 2000 roubles., Extension de 6 centimètres - 250-300 roubles. etc., par conséquent, la structure entière en un montant ne dépassant pas 10 000 roubles.
Si vous souhaitez économiser un budget, vous pouvez faites vous-même des anneaux en béton armé.
Le progrès:
- Dispositif de fosse (50-80 cm plus large que le puits) avec la pose simultanée de tranchées pour les tuyaux d'égout.
- Installation et isolation le pipeline.
- Remblayage et battage coussins de sable et de gravier (30-40 cm d'épaisseur).
- Installation de fond en béton (strictement horizontal, avec contrôle de niveau); au lieu de l'élément fini, vous pouvez construire une chape renforcée.
- Pose d'anneaux en béton à l'aide d'une grue.
- Imperméabilisation des joints ruban en caoutchouc, solution concrète avec l'ajout de verre liquide.
- Revêtement des coutures internes mastic bitumineux, imperméabilisation bitumineuse à collage externe. Remblayage.
- Montage sur plaque supérieure avec un trou pour la trappe, fixant le couvercle.
L'un des produits du traitement des déchets bactériens est le gaz méthane dangereux. Pour éviter sa concentration et en même temps permettre l'accès de l'air aux drains, le puits est équipé d'un tuyau de ventilation.
En utilisant des anneaux en béton, vous pouvez construire une fosse septique à deux chambres, plus en Cet article.
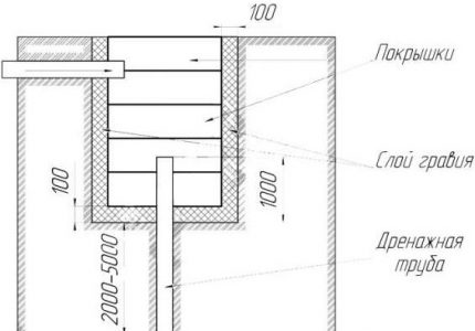
Option économique de pneus en caoutchouc
Les avantages de ce projet sont l'accessibilité, la rentabilité, la facilité d'installation et les inconvénients sont la fragilité, le manque de bonne étanchéité et la conception «ponctuelle». Il est impossible de réparer ou de modifier la structure installée.

La première étape est l'excavation et la construction de la fosse. La profondeur peut être calculée en connaissant le nombre de pneus, la largeur - en mettant un produit sur le sol et en dessinant un cercle autour de lui, en ajoutant 30 à 40 cm.Lorsque la fosse est prête, il est nécessaire de faire un trou de drainage. Il est foré au centre de la fosse à l'aide d'une perceuse.
Un tuyau est inséré dans le trou de façon à ce qu'il s'élève au-dessus de la base d'environ 100 à 120 cm Un approvisionnement en mètre empêche le drainage de se boucher avec de grosses particules solides qui s'accumulent au fond.
Pour que le liquide pénètre librement dans le drain, ses côtés sont en outre perforés et l'extrémité supérieure est recouverte d'un filet de protection. Le fond autour du tuyau est recouvert de gravier ou de gravier.

Les pneus sont empilés les uns sur les autres, enduisant les joints de scellant. Dans environ 2 ou 3 pneus, un trou est coupé par le haut et l'extrémité du tuyau d'égout menant de la maison est insérée, le point de connexion est également soigneusement scellé.
Par le haut, la structure est fermée par un couvercle fait maison en plastique ou en bois avec une petite découpe (diamètre = 10 cm) pour le tuyau de ventilation.
Des informations complémentaires sur l'opportunité d'une telle décision, la sélection et la préparation des pneus, ainsi que la construction d'un puisard à partir de ceux-ci, sont présentées dans l'article - Fosse de drainage de bricolage des pneus: instructions étape par étape pour organiser
Installer un récipient en plastique
Principal plus montage d'un réservoir de polymère - manque d'activités de construction supplémentaires. Il suffit de creuser une fosse, de fixer des canalisations d'égout, d'enfouir - et le puisard est prêt. Le transport d'un conteneur en plastique n'est pas non plus difficile, car, contrairement aux structures en béton, il a un faible poids.

Un fût en métal convient également, mais il est inférieur aux conteneurs en plastique dans ses caractéristiques, car il est sensible à la corrosion, par conséquent, il rouille assez rapidement et échouera.
Avant l'installation dans la fosse, le conteneur doit être préparé - une perforation sur toute la surface est effectuée. Pour ce faire, nous forons des trous en damier avec une perceuse électrique, l'intervalle entre les trous est de 15-20 cm.La perforation est nécessaire pour que l'appareil puisse drainer naturellement le liquide, c'est une sorte de filtre.

Dans la partie supérieure ou latérale (selon l'approvisionnement du tuyau d'égout), nous découpons un trou et installons une bride. Nous enduisons soigneusement tous les joints et joints avec des mastics polymères spéciaux.
Vous pouvez utiliser du mastic de bitume, qui joue le rôle d'imperméabilisation supplémentaire. Il est souhaitable que les tuyaux et raccords soient également en plastique.
Pour protéger le réservoir des particules de sol, nous utilisons des géotextiles. Il résiste bien à la fonction de filtrage, ne se prête pas à la décomposition et à l'usure rapide. Nous enveloppons le réservoir de tous les côtés avec des géotextiles roulés, le fixons au col avec un cordon synthétique.
Nous installons le canon dans la fosse de fondation préparée, le fixons aux communications. La pente des tuyaux permet aux drains de s'écouler naturellement dans le réservoir. Nous remplissons l'espace libre sur les côtés avec un mélange de sable et de gravier, saupoudrer de terre sur le dessus. Le nettoyage de la mini-fosse septique doit être effectué en se concentrant sur le degré de remplissage.
Le processus d'installation d'un réservoir de stockage pour le pompage complet des effluents semble quelque peu différent. Il s'agit d'une immersion dans le sol d'un récipient absolument scellé, utilisé pour accumuler des masses brunes et mixtes.
En cours d'accumulation, égale à environ un tiers du volume, ils sont appelés en tant que collecteur de déchets pour vider le lecteur.
Construction d'une fosse en béton coulé
Les conteneurs préfabriqués ne sont pas toujours adaptés en forme ou en taille.En outre, le coût des fosses septiques volumétriques de haute qualité ne convient pas à tout le monde.Par conséquent, ils pratiquent toujours une telle méthode de construction d'un puisard que la construction d'un réservoir en béton monolithique à une ou deux chambres. Nous prendrons connaissance des instructions pour sa fabrication.
Comment creuser une fosse de fondation
Pendant la construction, vous ne pouvez pas vous limiter à une structure à chambre unique, car il n'y aura pas de différence fondamentale ou de complexité supplémentaire lors de la construction du deuxième compartiment. Nous devrons creuser une fosse deux fois plus grande et préparer plus de matériaux de construction pour le coffrage et le coulage.
Le premier compartiment de la fosse septique est destiné à la clarification des drains, le second - à la filtration.

La première étape consiste à creuser une fosse de fondation de la taille requise. Il existe deux options pour l'excavation - manuellement ou à l'aide de matériel de construction. La première méthode est longue, mais plus précise, la seconde est rapide, mais coûteuse et peu adaptée au coffrage ultérieur.
Le fait est que pour supporter des boucliers en bois, même les bords de la fosse sont nécessaires. Si le sol est suffisamment solide et stable, la structure du coffrage peut être réalisée d'un seul côté.
La deuxième chambre de la fosse septique est filtrante, par conséquent, la partie de la fosse doit être approfondie et équipée d'un coussin de sable et de gravier d'environ 30 cm d'épaisseur. Les murs doivent être nivelés, mais si le sol est meuble, vous devrez construire une structure à deux côtés, comme une fondation.
La construction de coffrages en bois
Afin que l'environnement humide souterrain affecte le moins possible la structure en béton, avant l'installation du coffrage, la fosse est recouverte de géotextiles roulés. Nous plaçons la toile pour que le mouvement fluide soit dirigé vers le sol. Les pièces séparées doivent être attachées ensemble et les bords doivent dépasser d'environ 40 cm vers l'extérieur.
De l'extérieur, nous montons une charpente métallique: des barres d'acier, des fils épais, des mailles d'anciens lits conviennent au renforcement. Les pièces métalliques peuvent être remplacées par de la fibre de verre. Lors du remplissage, il est nécessaire de s'assurer que la solution recouvre complètement les éléments en fer, sinon la corrosion entraînera des fissures.
Les panneaux et les planches eux-mêmes ne tiendront pas, par conséquent, pour les fixer, les entretoises doivent être construites à partir de barres ou de sections métalliques. Dans les endroits où les tuyaux sont adjacents, les hypothèques doivent être consenties à l'avance.
La distance entre le coffrage et la paroi de la fosse est d'environ 20-25 cm (future épaisseur de paroi de la fosse septique). Si la structure est à double face, cette distance est maintenue entre les deux murs sur tout le périmètre.

Coulage et imperméabilisation du béton
Nous préparons la solution selon le schéma suivant: pour chaque 200 kg de ciment - 300 kg de sable, 100 l d'eau, 2,5 l de superplastifiant (sous forme liquide). Si une charge est nécessaire, ajoutez une petite quantité de pierre concassée d'une petite fraction.
Le béton n'est jamais coulé sur tout le volume. Si vous voulez que la structure soit durable et dure des années, remplissez-la de couches dont chacune n'a pas une épaisseur supérieure à 40-50 cm, sinon des vides se formeront dans le matériau, ce qui entraînera une destruction rapide de la structure. Pour rendre la masse plus dense, utilisez un vibrateur.
Les experts recommandent d'équiper le trop-plein d'un té, ce qui réduira le risque de colmatage et empêchera les grosses particules de pénétrer dans le deuxième compartiment du filtre.
Lors de la solidification de la masse de béton, de petites fissures apparaissent, qui doivent être recouvertes de la même solution. Après séchage complet, vous pouvez augmenter l'étanchéité des chambres et réaliser une étanchéité interne supplémentaire.
La dernière étape du bétonnage est l'appareil de l'étage supérieur. Il est installé après que les murs ont complètement séché (une période de 10 jours à 2 semaines est requise).
Procédure:
- installation d'un profilé métallique - coins;
- pose de la base - ardoises plates ou planches en bois;
- revêtements de sol ruberoid suivis de renforcement;
- coulée de béton.
N'oubliez pas que vous avez besoin de 2 trous pour les trappes (selon le nombre de caméras).
Remblayage et design extérieur
Avant le remblayage, nous réalisons l'étanchéité - nous appliquons sur toutes les surfaces en béton, internes et externes, une couche de mastic bitumineux. Il protégera le béton de l'humidité et de la destruction rapide.
Dans les régions du nord, une isolation thermique supplémentaire est nécessaire. Pour isoler les chambres des côtés extérieurs le long des murs, nous posons des morceaux de mousse ou mousse de polystyrène extrudé, puis l'espace restant est recouvert de terre.

N'oubliez pas le tuyau de ventilation. Pour sortir, aménagez un trou séparé ou équipez une trappe. Un fonctionnement plus efficace de la fosse septique est assuré par un ensemble de deux tuyaux, dont l'un pompe de l'air frais, et le second sert à éliminer les gaz accumulés.Les tuyaux doivent s'élever de 40 à 60 cm au-dessus du sol.
Des instructions détaillées sur la construction d'une fosse septique en béton monolithique sont décrites. ici.
Conclusions et vidéo utile sur le sujet
Les vidéos de formation sont une excellente occasion de compléter vos connaissances avec des informations intéressantes et utiles.
Conseils pratiques - les étapes du dispositif de cloaque:
Fosse septique compacte à faire soi-même à partir de pneus:
Fosse en béton monolithique - instruction vidéo et aperçu:
Comme vous pouvez le voir, il n'est pas difficile de fabriquer vous-même un réservoir de stockage ou une simple station d'épuration; certains types de puisards peuvent être équipés même par une seule personne.
Cependant, n'oubliez pas que la consultation d'un expert dans le domaine des systèmes d'égouts augmentera les chances de créer la construction la plus fonctionnelle et la plus efficace.
Partagez avec vos lecteurs votre expérience dans la construction et l'aménagement du puisard. Veuillez laisser des commentaires sur l'article et poser vos questions. Le formulaire de commentaires se trouve ci-dessous.

Un système excellent et fiable, d'ailleurs, dans cet article tout est décrit en détail. À notre chalet d'été, nous utiliserons certainement l'expérience et les recommandations utiles reçues sur cette ressource Internet. L'essentiel est d'équiper correctement le puisard pour qu'il n'y ait plus de problèmes à l'avenir. Et connaissant les détails de la construction du système, aucun problème avec l'arrangement ne se posera.
Une fois, avant de lire votre matériel, j'ai pensé que le puisard n'était qu'un trou creusé. Maintenant, je prévois de construire une maison, et j'ai aimé l'idée avec des réservoirs en plastique ou des anneaux. Je suis plus enclin à un tank, pour l'argent, très probablement, il devrait sortir beaucoup plus économiquement que les bagues. Oui, et la livraison coûtera moins cher, et même sous sa propre puissance, vous pouvez apporter. Il n'y a pas de comparaison de prix pour un tel plaisir?
Si nous parlons d'un puisard complet non seulement pour les drains «gris», mais aussi pour les drains «bruns», l'option des pneus en caoutchouc est tout simplement irrespectueuse envers soi-même, les voisins et l'environnement. L'étanchéité d'une telle conception est presque impossible à réaliser, elle affectera négativement le sol, pouvant tomber dans les eaux souterraines. En général, je pense que c'est une option uniquement pour les eaux usées domestiques «grises».