Tuvalet kurulumu nasıl seçilir: satın almadan önce tasarımlara ve ipuçlarına genel bakış
Geleneksel tuvaletlere ek olarak, asılı yapılar büyük bir popülerlik kazanarak odanın kullanışlı alanının optimum kullanımına izin verdi. Ve estetik açıdan, zemin modellerinden çok daha iyi görünüyorlar. Katılıyor musun
Sıhhi teçhizat pazarı, her biri kendi kurulum ve işletme özelliklerine sahip çeşitli seçenekler sunmaktadır. Tuvalet kurulumunun nasıl seçileceğini, hangi özelliklerin ve parametrelerin dikkate alınması gerektiğini göstereceğiz.
Ek olarak, süspansiyon sisteminin çalışmasını açıklıyoruz, artılarını ve eksilerini belirtiyoruz ve aynı zamanda en iyi sıhhi tesisat üreticilerini adlandırıyoruz. Materyal, kurulum seçimi konusunda bir uzmanın tavsiyesi ile bir video içerir.
Makalenin içeriği:
- Kurulum sistemi nedir?
- Sistem bileşenleri
- Tuvalet kurmanın artıları ve eksileri
- Banyoların iç kısmında modern modeller
- Tasarım gereği kurulum çeşitleri
- Genel tuvalet kurulumları
- Askı fikstürlerinin en iyi üreticileri
- Ekleri Satın Almadan Önce İpuçları
- Tuvalet kurulumu hakkında dört yanlış anlama
- Konu hakkında sonuçlar ve faydalı video
Kurulum sistemi nedir?
Bu isim, duvara monte edilen çelik bir yapıya karşılık gelir. Gerekli armatürlerin, klozet veya diğer hijyen cihazlarının (lavabo, bide) tutturulduğu bir çerçevedir.

Tüm teknik iletişimler, iç mekana güzel, düzgün bir tasarım veren yanlış alçıpan ile kapatılmıştır. Asılı bir tuvalet ve boşaltma için düğmeli bir panel minimumda kalır.
Sistem bileşenleri
Eksiksiz bir kit aşağıdaki bileşenlerden oluşur.
tesisat. Bu önemli eleman, genellikle korozyona dayanıklı bir kaplamanın uygulandığı dayanıklı çelikten yapılmış bir yapıdır. Klozetin ve / veya diğer tesisatların hidrolik boruları çerçeveye sabitlenir ve bağlantı bileşenleri (kaplinler, montaj saplamaları) monte edilir.
Kalitesi ve dayanıklılığı büyük ölçüde bu bileşene bağlı olduğundan, sistemin çalışmasında önemli bir rol oynayan yapıya bir tuvalet tankı monte edilir.
Korozyonu ve sızıntıyı önlemek için, tank genellikle yüksek kaliteli plastikten yapılır ve çalkalama valfini döşemek için silikon veya geliştirilmiş kauçuk kullanılır.
Dairenin taşmasına neden olabilecek suyun taşmasını önlemek için acil drenaj sağlanır. Modern sıhhi tesisat üreticileri, tankın çalışması sırasında gürültü seviyesinin 17 dB'yi geçmemesi gereken Avrupa standartlarına uygundur.
Klozet. Kurulum sistemlerinin modern tasarımları, kural olarak evrenseldir: çeşitli markaların hijyenik cihazları için uygundur. Asma modellere ek olarak, çerçeveler aynı zamanda zemin armatürlerinin bazı versiyonları için, yani “gizli tank” ile yapılan değişiklikler için de kullanılır.
Satışa sunulan hijyen ürünleri çeşitli renklere (geleneksel beyazdan siyah ve asit parlak renklere), dekorasyona ve tasarıma sahiptir. Çoğu model geleneksel olarak toprak veya porselenden yapılmıştır, ancak diğer malzemelerden seçenekler bulabilirsiniz: akrilik, metal, cam.
Bir model seçerken, dikkat etmeniz önerilir klozet kapağı: sıradan veya "yarım kaldırmalı" olabilirler. İkinci seçenek, ani çökme sırasında tesisatın mekanik hasar görmesini önleyen düzgün kapanmayı garanti eder.

Yıkama düğmesi. Kurulum sisteminin küçük ama önemli bir bileşeni, yıkama düğmeli harici bir paneldir.
Bu öğede çeşitli değişiklikler olabilir:
- gömme durdurma modu ile - bu durumda, panele tekrar basılarak yıkama durdurulabilir;
- iki yıkama seçeneği ile - ekonomik, tankın yarısının boşaltılmasını içerir ve tam bir tahliye ile ortaktır;
- temassız - kızılötesi ışınlar tarafından tahrik edilir.
Gömme paneller renk ve tasarım açısından önemli ölçüde değişebilir, genellikle tuvaletin veya banyonun gerçek bir dekorasyonudur.
Tuvalet kurmanın artıları ve eksileri
Asma yapıların avantajları ve dezavantajları vardır.

Yararları aşağıdaki faktörleri içerir:
- Zemin alanının optimum kullanımı - Asılı tesisat normal tuvaletlerden daha az yer kaplar.
- Odanın görsel olarak genişletilmesi. Hijyen cihazlarının küçük boyutları ve bir tank eksikliği, eşyaları yığmaktan kaçınmanıza izin verir.
- estetikçünkü tüm teknik detaylar duvarda gizlidir.
- temizlik. Asılı tuvalette, bakterilerin sıklıkla biriktiği bir bacak yoktur. Buna ek olarak, zemini tamamen açık bırakır, bu da odayı temizlemeyi kolaylaştırır.
- ekonomi. Birçok modelde, suyu boşaltan, tüketimini azaltan cihazlar bulunur.
- Düşük gürültü. Kurulum sistemlerinin kullanımı, tasarımın ek bir ses emici katmanı olduğundan, tankın çalışmasıyla ilişkili gürültüyü azaltmanıza izin verir.
- güvenilirlik. Bu tür tasarımlar uzun süreli kullanım için tasarlanmıştır. Birçok üretici 10 yıl garanti veriyor, gerçekte modeller daha uzun süre hizmet verebilir.
Açıkçası, bu tür sıhhi tesisat cihazlarının birçok avantajı vardır.
Askıdaki modellerin dezavantajları şunları içerir:
- Yapının montajı, işte özen ve titizlik gerektirir. Takarken, birçok nüansı dikkate almak önemlidir: çerçevenin yüksekliği, duvardaki konumu ve diğer özellikler.
- Yanlış duvar, örneğin evde sıhhi ekipmanların merkezi bir şekilde değiştirilmesi durumunda gerekli olabilecek genel iletişimlere serbest erişimi engeller. Böyle bir ihtiyaç ortaya çıkarsa, bölümü açmanız, kaplamayı veya diğer yüzeyleri sökmeniz ve ardından hasarlı alanı tekrar onarmanız gerekecektir.
- Bir kurulum sistemine sahip asma tuvaletler geleneksel hijyen seçeneklerinden biraz daha pahalıdır.
Sıhhi tesisat cihazlarını seçerken, yukarıda listelenenlerin sizin için ne kadar önemli olduğunu değerlendirerek öncelik vermeniz gerekir. asılı sıhhi tesisat özelliklerive sonra bilinçli bir seçim yapın.
Banyoların iç kısmında modern modeller
Duvar tipi tuvaletlerin çeşitli modelleri, klasikten yüksek teknolojiye ve art deco'ya kadar her türlü stilde bitmiş tuvaletlerin / banyoların iç kısımlarına mükemmel uyum sağlar.
Bununla birlikte, mağazaya gitmeden önce, sadece tercih ettiğiniz tasarımın değil, aynı zamanda sıhhi tesisatın yerleştirileceği yeri de düşünmelisiniz, çünkü bu faktör hijyenik bir cihazın seçimine bir iz bırakmaktadır.
İç mekana tuvalet kurmak için çeşitli kurulum seçenekleri vardır.
Standart düzen. Duvarlardan birine yakın geleneksel kurulum için, çeşitli üreticiler tarafından yapılan sıradan çerçeveler (çerçeve veya monte edilmiş) uygundur.
Bölmenin her iki tarafına montaj. Bu durumda, sıhhi tesisat kitinin bileşenlerini duvarın her iki tarafına da asabileceğiniz üç boyutlu bir yapı tercih etmek daha iyidir.
Bu durumda, çalkalama anahtarı bölümün üst kenarına önden değil yatay olarak monte edilir.Bu tip kurulum özellikle kır evlerinde, kır evlerinde, kır evlerinde bulunan ahşap zeminler için uygundur.
Sistemin köşe versiyonu. Küçük alanlar için ideal köşe montajı.

İki yükleme seçeneği kullanabilirsiniz:
- Köşe montaj modülü satın alın.
- Standart bir çerçeve seçin, ancak köşeye yerleştirilmesi için özel montaj parçaları satın alın.
Duvarların kavşağındaki benzer yapılar havadar görünüyor ve minimum yer kaplıyor.
Bir adada veya bir pencerenin altında. Bu seçenek, pencerenin altındaki duvar bölümünü en iyi şekilde kullanmanızı veya odayı bölgelendirmenizi sağlar. Böyle bir yerleşim için, yüksekliği 82 cm'yi aşmayan küçük çerçeve sistemlerinin seçilmesi tavsiye edilir.
Hat kurulumu. Bu durumda, birkaç sıhhi tesisat parçasını aynı anda birleştiren tek bir kurulum tasarımı kurulur: klozet, lavabo, bide.

Bu şekilde, odayı tek bir tarzda tasarlayarak gerekli tüm ekipmanları bir seferde kurabilirsiniz.
Tasarım gereği kurulum çeşitleri
Sadece teknik özelliklerde değil, aynı zamanda kurulum nüanslarında da farklılık gösteren iki ana benzer yapı türünü ayırt etmek gelenekseldir.
1 numara. Blok (monte edilmiş) model ve özellikleri
Bu en basit ve en uygun maliyetli kurulum sistemidir, ancak kullanımda önemli bir sınırlama vardır - sadece rulman ana duvarına monte edilebilir. Tasarım plastik bir tank, ankrajlı montaj plakaları, tuvaleti sabitlemek için tasarlanmış bir dizi saplamayı içerir.
Blok Kurulumu Yükleme
Menteşeli yapı duvarda yapılmış bir niş içine yerleştirilir. Çerçeveyi uygularken, kurulumun yüksekliğini belirlemek önemlidir ve daha sonra doğru yerlerde montajı takmak için etiketleri işaretleyin.

Delikler, üzerine vidalı bir tankla asılan dübellerin tıkandığı bir zımba ile delinir. Takılan contalarda güvenilirlik kontrolü yaptıktan sonra, drenaj tankı iletişime bağlanır.
Hijyen cihazının kasesini asmak için gerekli pimler önceden yapılmış deliklere yerleştirilir. Daha sonra bloğun altındaki boşluk bir tuğla ile döşenir: yanlış ve ana duvarlar arasında boşluklar varsa, tuvalet bölmeye basar, bunun sonucunda bitişi (örneğin fayanslar) çatlayabilir.
Son aşama, deliğin bir drenaj düğmeli bir panel tarafından kapatılan bir revizyon penceresinin sağlandığı su geçirmez bir alçıpan ile (genellikle iki kat halinde) sızdırmazlığıdır. Tuvalet, tüm kurulum çalışmalarının sonunda asıldı.
2. Çerçeve Kurulum Özellikleri
Daha karmaşık, çok yönlü, maliyetli bir seçenek çerçeve yapısıdır. Bu, montajı ve üzerine asılan sıhhi tesisat armatürlerini monte etmek için gerekli olan, bağlantı elemanlarının gerekli olduğu korozyona dayanıklı kaplamalı güçlü bir çelik çerçevedir.

Benzer bir sistem, duvarların malzemesi ve mukavemetlerinden bağımsız olarak herhangi bir odaya monte edilebilir. Bununla birlikte, bölümlerin kalitesinin bağlantı elemanlarını doğrudan etkilediği unutulmamalıdır. Bir yatak tavanı ile, tüm yükün duvara düştüğü duvar montajını tercih etmek daha iyidir.
Montajı bir alçıpan veya köpük blok bölümüne yerleştirmeye karar verirseniz, zemin seçeneğini seçmeniz önerilir: bu durumda çerçeve özel ayaklara monte edilir.
Modelin hem dikey hem de yatay yüzeyler için dört delikle sabitlenmesini sağlayan birleşik bir modifikasyon da vardır.
Bacakların yardımıyla tüm çerçeve kurulum sistemlerinin yüksekliği ayarlanabilir (yaklaşık 20 cm), bu çok uygundur, çünkü bu işlev, cihazı zemin kaplamasından gerekli mesafede kurmanıza izin verir.
Bu tür tasarımların mükemmel işlevselliğini de not edebilirsiniz. Takarken, duvara bir raf veya çıkıntının montajını sağlayabilirsiniz.
Montaj çerçevesi yapıları
Başlangıçta, duvara tutturulabilen veya zemine monte edilebilecek çerçevenin tutturulduğu yeri belirlemelisiniz. Aynı zamanda, tuvaletin bulunacağı yüksekliği belirlemeniz gerekir.
Bundan sonra, tank monte edilir. Su bağlantı borusu, giriş bağlantısına bağlıdır.
Ömrü, tuvaletin ve drenaj tankının servis süresinden çok daha kısa olan esnek eyelin kullanmamalısınız.

Tuvaletin kanalizasyon çıkışı, oluk veya doğrudan kullanarak yükselticiye bağlanır. Prosedürün sonunda, yaklaşık 3 litre su dökerek bağlantının gücünü kontrol etmek önemlidir.
Son adım, gerekli deliklerin kesildiği, ardından drenaj düğmesinin takıldığı ve yanlış duvarın tamamlandığı çift bir alçıpan (GKVL) ile kurulumu bitirmek.
Blok ve çerçeve sisteminin kurulum teknolojileri hakkında daha fazla bilgi bu makale.
Genel tuvalet kurulumları
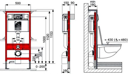
Bir kurulum seçerken, parametrelerine dikkat etmelisiniz. Bu, özellikle sistemin kurulumu için belirli bir konum ayrılmışsa önemlidir.
Blok sistemlerinin standart versiyonu aşağıdaki boyutlara sahiptir:
- genişlik - 50 cm;
- derinlik - 10-15 cm;
- yükseklik - 1 m.
Tipik bir çerçeve yapısı genellikle aşağıdaki parametrelere sahiptir:
- genişlik - 50-60 cm;
- derinlik - 15-30 cm;
- yükseklik - 0.8-1.4 m.
Sıhhi tesisat pencerenin altına yerleştirmek için çerçeve kurulumlarını seçerken, 80-82 cm yüksekliğindeki daha düşük modifikasyonları tercih etmek daha iyidir, duvarlardaki yükü azaltan düşük geniş yapılar, ahşap bölmeli evlerde kullanılması tavsiye edilir.
Müşterilerin ihtiyaçlarını daha iyi karşılamak için, birçok şirket standart dışı model değişiklikleri üretmektedir.
Bir Alman şirketinin ürün yelpazesinde TECE sadece 8 santimetre derinliğe sahip bir kurulum var. İspanyol üretici tarafından 9 cm'lik biraz daha geniş bir sürüm yayınlandı Roca.
Bir İtalyan şirketi tarafından 30 cm genişliğinde minyatür tasarım sunulmaktadır miglioreve Hollanda şirketinin büyüklüğünde WiSA Mükemmel 38 cm'lik benzer bir parametreye sahip bir seçenek var.
Askı fikstürlerinin en iyi üreticileri
Tuvalet kurulumu yapan en popüler markalar arasında Türk Vitraİspanyolca Roca, lehçe Cersanitünlü Alman şirketleri TECE, Viega, GroheRus markası IDDISünlü İsviçre markası Geberit, Hollandalı bir şirket WiSA Exellent, italyan miglioreÇek Alcaplast.

İlgili forumlardaki katılımcıların anketlerine göre, aşağıdaki beş kişi belirlendi üst üreticileri asma yapılar:
- İlk yer şirket tarafından alındı Geberitbenzersiz bir dikişsiz tank ile kurulum sistemleri üretiyoruz
- İkincisi şirkete bölünür Grohe/Viega.
- Üçüncüsü Alman üreticiye gitti TECE.
- Dördüncü sırada yer alan firmalar Cersanit ve WISA.
- Beşinci bütçe notunu aldı Alcaplast.
Ürünlerin dayanıklılığına ve kalitesine ek olarak, katılımcılar modellerin tasarımına, özellikle düğmelerin güzelliğine dikkat çekti. Onlara göre, şirketler tarafından üretilen paneller özel özgünlük ve çeşitlilik ile ayırt edilir. Tece, Geberit ve Vierga.
Sıhhi tesisat satın alırken, yüksek kaliteli cihazların bile yanlış kurulum, düşük su kalitesi, çalışma kurallarının ihlali gibi faktörlerden dolayı başarısız olabileceğini hatırlamak önemlidir.
Ekleri Satın Almadan Önce İpuçları
Askıdaki sıhhi tesisat montajı için aşağıdaki bileşen setini satın almalısınız:
- Kurulum sistemi. Modifikasyon seçimi doğrudan duvarların kalitesine bağlıdır: bir blok sadece güçlü destekleyici yapılar için uygundur, çerçeve bir alçıpan veya köpük blok bölümleri ile uyumludur. Önemli bir nokta, sıhhi tesisat armatürlerinin planlanan yeridir.
- Asılı (zemin) kase İstenilen kapaklı klozet. Satın alırken, kitin bağlantı elemanları ve düz dirsek montajı için tasarlanmış bir adaptör içerip içermediğini kesinlikle satıcıdan öğrenmelisiniz. Olumsuz bir cevap durumunda, ek olarak satın alınmaları gerekecektir (aynı şirketin ayrıntılarını seçmeniz önerilir).
- Tank ve anahtar floş bitmiş kitte bu tür elemanlar yoksa ayrı olarak satın alınmalıdır.
- Ses yalıtım contaları. Boşaltılan suyun seslerini ortadan kaldıran ek ses yalıtımı sağlayacak önemli bir bileşen.
Sıhhi tesisat satın aldıktan sonra, bileşenleri kontrol etmek, talimatlardaki liste ile kullanılabilirliklerini kontrol etmek gerekir.

Bir model seçerken, örneğin hoş olmayan kokuları veya su tasarrufu olasılığını emmek için mevcut ek işlevlere de dikkat etmelisiniz. Ayrıca, satıcının, ayrı olarak satın alınması gerekiyorsa, bu şirketin piyasada bulunan bileşenlerinin nasıl mevcut olduğunu da sormalısınız.
Satın alınan ürünler için garanti kartını sakladığınızdan emin olun.
Tuvalet kurulumu hakkında dört yanlış anlama
Efsane 1. Tüm teknik iletişim sistem içinde bulunduğundan, en basit durumda onarım kurulumu veya münferit bir bileşenin değiştirilmesi, sahte duvarı tamamen yok etmek, kaplamaya veya başka bir cilaya zarar vermek zorunda kalacaktır.

Reddiye. Drenaj sistemine erişim kolaydır - paneli yıkama için bir düğmeyle çıkardığınızda açılan muayene penceresinden. Böyle yapıcı bir çözüm, kesme vanasının ve vananın diğer parçalarının çalışmasındaki eksiklikleri gidermeyi ve değiştirmeyi kolaylaştırır.
Dayanıklı plastikten yapılmış bir tahliye tankının servis ömrünün, kural olarak, tüm sistemin çalışma süresine eşit olduğunu eklemeye değer.
Efsane 2. Tuvalet kurulumunun herhangi bir bileşeni bozulursa, açık pazardan satın almak zor olacaktır.
Reddiye. Asılı sağlık gereçlerinin en popüler modelleri için yedek parça bulmak zor değildir; özel mağazalarda yaygın olarak temsil edilmektedir. Şüpheniz varsa, satıcıya belirli bir markanın ayrıntılarının piyasada ne kadar mevcut olduğunu önceden sorabilirsiniz.
Efsane 3. Duvar tipi tuvaletler güvenilmez ve kırılgandır. Böyle bir sıhhi tesisatın aşırı kilolu insanlar için uygun olması olası değildir.
Reddiye. Bu sıhhi tesisat kategorisi, çelikten yapılmış sağlam bir çerçeveye monte edilmiştir. Çerçeve, sağlam ve sağlam olmasını sağlayan duvara güvenilir bir şekilde yerleştirilmiştir.Bu tür ürünlerin üreticileri, 200-400 ağırlığına ve bazı modellere - 800 kilograma bile dayanabileceklerini garanti eder.
Efsane 4. Asılı bir tuvalet kurmak için, kullanılabilir alanın bir kısmı duvar yükseltileceği için çok fazla alan gerekir.
Reddiye. Asılı sıhhi tesisat doğrudan duvara karşı yerleştirilmiştir, bu nedenle kurulum genellikle geleneksel bir hijyenik cihaz modelinin tankını alan yeri alır.
Yapıyı iletişim ile bir niş içine yerleştirirken, tuvaletin veya banyonun boş alanını biraz arttırmak bile mümkündür.
Konu hakkında sonuçlar ve faydalı video
Aşağıdaki videoda, tuvalete kurulumun doğrudan bir uzmandan seçilmesine ilişkin ipuçlarını duyabilirsiniz:
Asılı tuvaletler ve diğer hijyen ürünleri güvenilirliği, rahatlığı ve çekici görünümü birleştirir. Onların yardımıyla, herhangi bir sıhhi odanın iç kısmını dönüştürebilir, havadarlık ve zarafet verebilirsiniz.
Eklenecek bir şey var veya tuvalet için kurulum seçimi hakkında sorular vardı - yayın hakkında yorum bırakabilirsiniz. Yorum formu alt bloktadır.

Son zamanlarda banyoda ve buna göre tuvalette onarımlar yapıldı. Oda küçük ve bir köşe duvara asılı tuvalet seçmeye karar verdi. Birincisi, normalde olduğu kadar yer kaplamıyor ve ikincisi ilginç ve modern görünüyor. Kurulumu ile ilgili herhangi bir sorun yok ve çok fazla sorun yok, sadece özel montaj parçaları satın almanız gerekiyor. Yanında bir bide kuruldu - bir eşin hevesi. Onarımdan memnun kaldık. Yani böyle bir tuvalet kurmak isteyenler ve emin olmayanlar için - korkmayın, her şey daha basit değildir.
Asılı bir tuvalet yerden tasarruf sağlar. Aynı boyutlarda sıradan bir klozetin ne kadar daha kompakt göründüğüne şaşırdım. Kurulumu kolay olduğu ortaya çıktı, ana sorun dekorasyon. çünkü Borulara erişmek istedim, sonra sahte duvar dekoratif hale getirildi, böylece her an kendi başıma hareket edebilsin. Bana oldukça kuruşa mal oldu.
Kurulumun 40 cm derinliğinde dolaplar yapmak istiyoruz Soru oldukça basit: bu uzunlukta bir çapa satın almak veya herhangi bir kurulum yapmamak (standart cm 20'de yapıldığı için)?