Tuvalet için köşe montajı: seçim ipuçları ve montaj kuralları
Modern dairelerin çoğunda yeterli banyo alanı yoktur. Banyonun küçük boyutlarına rağmen, temel fonksiyonel nesnelere sahip olmalıdır: küvet, lavabo ve klozet. Küçük bir odada, sıhhi tesisat cihazlarını standart bir şekilde yerleştirmek imkansızdır.
Genellikle küçük bir banyoyu donatmak için kullanılan tuvalet için köşe montajı, sorunun çözülmesine yardımcı olacaktır. Bu malzemede benzer bir tasarımın ne olduğu hakkında konuşacağız ve bir köşe tuvaletin kendi kendine kurulumunun sırlarını paylaşacağız.
Makalenin içeriği:
Köşe montajı: pratiklik ve konfor
Sıhhi tesisat armatürleri sürekli geliştirilerek benzersiz bir tasarım elde edilir duvara monte tuvalet. Askıdaki sıhhi ekipmanların pratik kullanımı daha belirgin konfor ve kullanım kolaylığıdır.
Tuvaletin kurulumunun güvenilirliği, kurulumla sağlanır - özel bir montaj elemanı.
Uygulamada, aşağıdaki kurulum sistemleri kullanılır:
- direkt, tuvaleti duvar düzlemine monte etmek için;
- köşe, yapıyı odanın köşesine monte etmek için.
Her iki kurulum tipi de, temeli dikdörtgen çelik bir çerçeve olan güvenilir, sağlam yapıların kurulumudur.

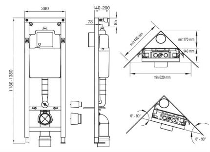
Açısal tasarım özellikle modern tüketicileri ilgilendirir. Sistemin ayırt edici bir özelliği, dört ek bindirmenin varlığıdır.Ana çerçeveden 45 derecelik bir açıyla yapının üstünde ve altında bulunurlar. Bu ekleme sayesinde köşe montajı, sıhhi tesisatın banyoya rasyonel olarak yerleştirilmesini ve blok yapılar oluşturmanızı sağlar.
Ek pedlerin varlığı, kurulum seçeneklerini önemli ölçüde genişletir. Tüketici, sistemi zemine ve duvarlara (veya bunlardan birine) sabitleyerek kurulum gerçekleştirebilir, ancak sabitleme sadece bir noktada yapılabilir.
Tuvaleti odanın köşesine monte ederken, açı boyutu 90 derecelik göstergeden biraz farklıysa, pedler gerekli miktarda ayrılabilir ve ekipmanın duvara güvenli ve sıkı bir şekilde oturmasını sağlar.
Köşe versiyonunun önemli bir ayırt edici özelliği tahliye tankıdır. Eleman, düz tanklı düz çerçevelerin aksine, üç yüzlü bir şekle sahiptir. Bu formdaki bir tankın kullanılması, sistemin boyutlarını ve görünümünü olumlu yönde etkileyecektir.
Köşe tipinin avantajları ve dezavantajları
Açısal tasarım ve standart sistem arasındaki ana fark, drenaj tankının alışılmadık şeklidir. Bu modelin drenaj tasarımının kasesi, elemanın toplam hacmini korurken bir üçgen şeklindedir.
Yabancı yapımı modeller de bir köşeye monte edilirken, tahliye tankı üçgen şeklinde değildir ve klozet kapağı, her iki tarafa dönerek oturmasını kolaylaştıran bir daire şeklinde yapılır.

Kurulum sırasında, köşe kurulumunun drenaj tasarımı, banyonun 2 duvarı arasında oluşturulan köşeye tutturulur.
Bu sistemlerin birçok avantajı vardır:
- Gerekli cihazları küçük bir banyoya kompakt bir şekilde yerleştirmenize ve orijinal bir oda tasarımı oluşturmanıza yardımcı olurlar.
- Odanın köşelerinde bulunan sıhhi tesisat armatürleri, odayı yuvarlamanızı ve merkezi kısmında değerli ek alan açmanızı sağlar.
- Ayrı bir banyo durumunda, köşe tuvalet kullanımı, gerekirse bir bide veya lavabo yerleştirmenizi sağlar.
- Açısal sistem görsel olarak kırılgan bir tasarım izlenimi verir. Buna rağmen, bu formun bir kurulumu 0,5 tona kadar bir yüke dayanabilir.
- Modelin ek bir avantajı, yüksekliği 4 cm ayarlamak için kullanışlı bir işleve sahip olmasıdır.
Katı malzemeden yapılmış bir tahliye kabı, patlayamayacağı veya çatlayamayacağı için özellikle dayanıklıdır.

Tuvaletin açısal kurulumunda, optimum tasarımı seçerken dikkate alınması gereken birkaç dezavantaj vardır. Standart bir banyoya kurmaya çalışırsanız, yetersiz miktarda boş alan olacaktır.
Sonuç olarak, dairenin sahibi alanda önemsiz bir kazanç ve operasyonun rahatsızlığı alacak: ekipmanı amaçlanan amaç için kullanma sürecinde, oturan kişinin bacakları duvara yaslanacak.

Menteşeli tip bir ürün kurarken, duvarın klozetin ağırlığını, tam tahliye tankını ve tuvaleti tasarladığı amaç için kullanan kişinin ağırlığını taşıması gerektiği unutulmamalıdır. Alçıpan için bu çok zor bir görev olabilir.
Bir alçıpan duvarda gerçekleştirmek için köşe montajının kurulumunun gerekli olduğu durumlarda, cildin altına önceden ahşap bir ipotek yerleştirilir.

Seçim yaparken nelere dikkat etmeliyim?
Güvenilir ve kullanışlı bir seçim yapmak köşe tuvalet bir tankla, belirli parametrelere dikkat etmeniz gerekir.
Bilgi ile, ürünün daha fazla kullanımı sırasında rahatsızlık ve rahatsızlığa neden olmayacak en iyi sıhhi tesisat ekipmanı modelini alacaksınız.

Tuvaleti konumlandırma yolları
Tuvaletin gelecekteki kurulum yeri önceden belirlenmelidir. Bir model seçerken, banyoda nasıl bulunacağını açıkça anlamalısınız:
- Tuvalet, banyonun duvarına paralel olarak yerleştirilebilirken, tahliye tankı hafifçe yana kaydırılacaktır.
- Tuvaleti odanın köşesinin açıortayına monte edebilirsiniz, daha sonra tank 45 veya 90 derecelik bir açıyla yerleştirilir.
Banyo yükselticisi duvar boyunca yerleştirilirse, açısal bir yapının kurulumu daha karmaşık hale gelir. Hortum veya oluk şeklinde ek kabloların kullanılması, sorunun çözülmesine yardımcı olacaktır.
Sıhhi tesisat donatımı bağlantısı
Köşe tuvaleti başarıyla kurmak için, önce sıhhi tesisat ekipmanlarını iletişime bağlamanın mümkün olduğundan emin olmalısınız. Soğuk su, köşe modeline iki olası yoldan biriyle getirilebilir: alt veya yan.

Ekipmanın kurulumu sırasında ek bağlantıların kullanılmasına gerek kalmaması için, başlangıçta banyoda mevcut iletişime karşılık gelen bir model seçmek gerekir.
Açısal sıhhi tesisat tiplerinin tasarımı
Genellikle bir banyo belirli bir tarzda tasarlanmıştır veya belirli bir renk şeması buna karşılık gelir. Bu durumda, sıhhi tesisat ekipmanının görünümü için gereksinimleri dikkate alarak tuvaletin açısal modelini seçmelisiniz.

Modern üreticiler, standart modele özel bir şıklık ve özgünlük kazandıracak çeşitli tasarımcı aksesuarları ve elemanları sunmaktadır: kakmalar, şeffaf kapaklar, dekoratif süsler ve çok daha fazlası.
Tuvalet seçeneklerini seçme
Köşe tuvalet kaseleri çeşitli boyutlarda olabilir. En iyi modeli seçmek için, gelecekteki tuvaletin yerleştirileceği yeri dikkatlice ölçmelisiniz. Bu tür sıhhi tesisat ekipmanlarını kurmak için gereken minimum alan 2 metrekaredir.
Bir tuvalet modeli seçerken, bunun sıhhi tesisatın geri kalanıyla organik olarak görünmesi gerektiğini hatırlamanız gerekir.Tuvalete ek olarak birleşik banyoya bir lavabo ve küvet yerleştirilmiştir.
Hangi imalat malzemesi daha iyidir?
Üretiminde kullanılan malzemeyi dikkate alarak bir köşe tuvalet seçmek gereklidir. Modern yerli ve yabancı üreticiler çeşitli malzeme paletleri sunmaktadır. Klozetler geleneksel fayans, temperli cam, porselen ve dayanıklı plastikten yapılmıştır.

Tüketiciler arasında en pratik ve popüler olanı bir fayans veya seramik modeli olarak kabul edilir. Ürünün ana avantajlarından biri görsel çekiciliği ve çok yönlülüğüdür. Estetik seramik klozet, modern bir banyo tasarımına mükemmel uyum sağlar.
İmalat şirketi önemli mi?
Açısal bir klozetin güvenilir bir tasarımını almak istiyorsanız, ancak satın alma işleminde önemli miktarda harcama yapma şansınız yoksa, yerli ürünleri tercih edin. İthal sıhhi teçhizat, dış çekiciliği ve daha yüksek maliyeti ile ayırt edilir.

İtalya, Almanya ve İsviçre'den Rusya'ya tedarik edilen yüksek talepli sağlık gereçleri modern tüketiciler arasında yüksek talep görüyor.
Açı montajı için en popüler sıhhi ekipman üreticileri arasında, ticari markalar altında yüksek kaliteli ürünler üreten yabancı şirketlere dikkat etmek gerekir:
- Geberit (İsviçre).
- Grohe (Almanya).
- Viega (Almanya).
Ayrıca, kalite tesisatının birçok sevgilisi Roca, Vitra, Gustavsberg, Villeroy & Boch, Cersanit, Laufen markalarının ürünlerini tercih ediyor.
Asma yapıların çok fonksiyonlu olması
Üreticiler, şu anda gerekli olan köşe tuvalet modellerini, sıhhi tesisat alıcılarının dikkatini çeken uygun ek işlevlerle giderek daha fazla donatıyorlar. Örneğin, hijyenik duşa sahip modern bir köşe tasarımı satın alabilirsiniz.

Çeşitli ek özellikler, ürünün çalışması sırasında konfor ve rahatlık seviyesini önemli ölçüde artırır. Ek özelliklere sahip sıhhi tesisat ekipmanlarının yüksek fiyatına rağmen, bu tür ürünlere olan talep sürekli artmaktadır.
Tesisatlı ekipmanın maliyeti
Estetik bir açısal klozet fiyatı, kare tahliye tanklarına sahip geleneksel sıhhi tesisat modellerinin maliyetinden önemli ölçüde farklıdır. Banyonun köşesine kurulum için şık bir tuvalet size 2 kat daha pahalıya mal olacak.
Standart model bugün 3000 ruble maliyeti. 20.000 rubleye kadar, köşe yapısı 6.000 ruble aralığında tüketicilere sunulmaktadır. 30.000 rubleye kadar.

Yukarıdaki tüm bilgileri bir araya getirdikten sonra, açısal tasarımın belirli bir banyo için uygun olup olmadığını dikkatlice düşünmeniz gerekir. Satın alma ve kurulumunda herhangi bir engel yoksa, özel bir sıhhi tesisat fikstür mağazasına gidebilir ve gereksinimlerinizi karşılayan bir tuvalet modeli satın alabilirsiniz.
Kurulum türleri ve nüansları
Açısal tuvalet modelinin kurulum özellikleri kurulum işleminden önemli ölçüde farklıdır standart tuvalet. Bu tasarımın çalışması için, kanalizasyon sisteminin getirilmesi özel bir şekilde gereklidir.Eski vakfın evinde bulunan bir dairenin sahibiyseniz, yükseltici odanın duvarına paralel olarak bulunur. Bu durumda, açısal bir tuvaletin montajı bazı zorluklar yaratacaktır.
İle sorunu çözebilirsiniz oluklu boru veya özel uzatma kablosu. Bu ek elemanları kullanarak köşe yapısını ortak bir kanalizasyon sistemine bağlayabilirsiniz.
Bu amaçla küçük uzunlukta bir oluk kullanmak en uygunudur. Tıkandığında, temizlemeniz gerekir, bu nedenle boru ne kadar kısa olursa, temizleme işlemi o kadar kolay olur.

Bazı durumlarda, tuvalet özel bir yüksekliğe monte edilir - önceden monte edilmiş bir kaide. Bu estetik için değil, bu sıhhi tesisat ekipmanına doğru soğuk su temini için gerekli değildir.
Köşe tuvaleti zemine güvenli bir şekilde sabitlenebilir veya duvardan asmak bir banyo. Bunun için kurulum kullanılır - ekipmanların bir köşeye kurulmasına izin veren asma bir yapı çerçevesi.
Gerekli malzemeler ve aletler
Bir köşe tuvaleti montajı üzerine yapılacak kurulum çalışmasının başarılı bir şekilde uygulanması için ihtiyacınız olacak:
- darbeli matkap;
- su temini için hortum;
- oluklu boru;
- Mastiğin;
- yapıyı yüzeye sabitlemek için cıvatalar.
Sızdırmazlık maddesinin banyoya monte edilen tuvaletin tonuna göre seçilmesi önerilir. Aksi takdirde, tasarımcının tüm çabalarını bozabilirsiniz.
Zemin montajı
Kurulumun ilk aşamasında, ekipman haznesinin ve kanalizasyonun açıklıklarının ayarlanması gerekir. Bu amaçla, kullanılan oluklu borunun bir ucu kanalizasyon deliğine ve diğer ucu sıhhi teçhizatın deliğine monte edilmelidir.

Bir sonraki adım, yapıyı özel bir podyumda veya yatay bir zemin yüzeyinde sabitlemektir. Bunu yapmak için, ilk olarak bağlantı elemanları için yeri işaretlemelisiniz. Delikler bu işaretlerde bir zımba ile yapılır. Ardından tuvaleti cıvatalarla yere vidalayın.
Ekipman güvenli bir şekilde sabitlendikten sonra, drenaj tankı monte edilir. Tahliye deliklerinin hizalanması önemlidir. Silikon contayı kaydırmak kesinlikle yasaktır, çünkü klozet tabanı ile tank arasındaki su akışına karşı korumayı yok etmek mümkündür. Şimdi vidaları sıkabilirsiniz.

Daha sonra, özel bir esnek hortum kullanarak, su kaynağı tuvalete bağlanır. Boşluklar tabanında kalırsa, sızıntıyı önlemek için dikkatlice sızdırmazlık maddesi ile kaplanmalıdır. Şimdi su bağlayabilir ve tankta sızıntı olup olmadığını kontrol edebilirsiniz. Tahliye sırasında leke gözlenmezse, tuvalet doğru şekilde monte edilmiştir.
Köşe duvara monte edilen tuvaletin montajı
Banyonun köşesine monte edilen menteşeli model, minimum yer kaplar, bu nedenle tüketicilerin seçimi genellikle üzerine düşer. Açısal yapının kurulum sürecini standart ekipmanın kurulumu ile karşılaştırırsak, aralarında çok fazla fark yoktur.

Köşe yapısını monte etmeden önce, iletişim borularını ve hortumlarını getirmek gerekir.Tuvaletin açısal kurulumu sabitlenmelidir, bu nedenle soğuk su kaynağına getirmek için metal bir tüp kullanmak daha iyidir.
Drenajı oluklu bir boru ile donatabilirsiniz.

Tuvalet, özel bir çerçeve tasarımına monte edilmelidir. Yapıyı kurarken ana görev, tesisatın sağlamlığını ve mukavemetini sağlamaktır.
Bunu yapmak için kurulumu ekle ankraj cıvataları ile odanın tabanına ve duvarına. Son aşama sistemi iletişime bağlamaktır.

Askıdaki sıhhi tesisat armatürünü monte ettikten sonra, ürün kabı yerden 40 ila 50 cm yükseklikte olmalıdır. Bu aşamada, kurulum işleminin tamamlandığı kabul edilir.
Açısal kurulumun tasarımcıları, modülün geri çekilebilir desteklerinin kendi kendini frenlemesi için sağladı. Bu, uzmanı gereksiz eylemlerden kurtardığı için sıhhi tesisat ekipmanlarının kurulumunu daha kolay ve daha kolay hale getirir. Modülün iç kısmı, tüm iletişimleri kablolamak için yeterli alan varlığı ile karakterizedir.

Köşe sisteminin bakım ve onarımı
Köşe kurulum sisteminin kurulum teknolojisi, iletişimin ve çeşitli elemanların gizli kurulumunu içerir. Sadece tuvalet kamusal alanda kalır ve evin geri kalanı kaplama panelleri ile kapatılır veya sağlam bir duvarın arkasına gizlenir.
Bu bağlamda, köşe montaj elemanlarının bakım ve onarımı ile ilgili birçok soru ortaya çıkmaktadır. Üreticilere göre, servis, sistemin tüm elemanlarına erişim sağlayan servis kapağı aracılığıyla gerçekleştirilebilir. Kullanılamayan ekipmanı sökmeye ve değiştirmeye yarar.
Üreticiler, duvarın arkasına gizlenmiş drenaj tankının kırılması durumunda, komşuların mülkünün zarar görmeyeceğini garanti eder. Depolama tankının gövdesi katı malzemeden yapılmıştır ve patlayamaz, çatlamaz veya deforme olamaz. Depodaki tahliye mekanizması, bir arıza durumunda su tahliyesi sağlayacak bir acil taşma kanalı ile donatılmıştır.
Konu hakkında sonuçlar ve faydalı video
Açılı bir tuvaleti seçme ve kurma hakkında yararlı pratik ipuçları videoda bulunabilir.
Kurulumun avantajları ve türleri:
Alçıpan bölmeye kurulum:
Kendin yap kurulum kurulumu:
Tuvaletin açısal montajı, herhangi bir banyonun alanını merkezi kısmını serbest bırakarak olumlu bir şekilde değiştirmenize izin verir. Odanın kapasitesini ve işlevselliğini arttırır.
Modern üreticiler çeşitli köşe tasarımları sunmaktadır. Odanın ve iç mekanın özellikleri göz önüne alındığında, en iyi köşe tuvalet modelini seçebilirsiniz. Özel bir drenaj sistemi, kompaktlık, dayanıklılık ve kurulum kolaylığı nedeniyle tasarımlar popülerlik kazanmıştır.
Ev için bir köşe kurulumu mu arıyorsunuz, ancak karar veremiyor musunuz? Yoksa bu yapıları kurma konusunda zaten deneyiminiz var mı? Lütfen yorum bırakın, değerli ipuçlarını paylaşın, aşağıdaki blokta sorular sorun.

Kocam ve ben küçük bir banyo vardı, ama küvet için mümkün olduğunca fazla alan bırakmak istedim çünkü tuvaletin açısal asılı bir varyant durdu. Viega'nın bir modelini seçtik - çok kompakt ve güzel, eğer tuvalet hakkında söyleyebilirsem. Fiyat, elbette, küçük değil, ancak tuvalet bir günden fazla hizmet verecek. Ve kurulum profesyonellere emanet edildi.
Şimdi banyonun köşesine tuvalet takma seçeneklerini düşünüyoruz, en kabul edilebilir seçenek bir köşe tankıdır, daha fazla yer tasarrufu sağlar ve en uygunudur. Sorum farklı bir nitelik taşıyor: asılı tuvaletler çok popüler hale geldi, bu da bir kişi oturduğunda büyük bir kırılma kuvvetinden etkileniyor. Uygulama pratiğine göre, birisi bir şey söyleyebilir, zamanla gevşemez ve fayans veya seramik tuvaletin kendisini kırmaz mı?
İpuçları seçiminiz için çok teşekkür ederim! Satın almak için dükkana gittim.